رفتن به مطلب

معماری روز


ارسال های توصیه شده

ارسال شده در

دستتون درد نكنه

هم مطالب ارائه شده وهم خود پروژه بسيار عالي

  • Like 3
  • پاسخ 1.8k
  • ایجاد شد
  • آخرین پاسخ

بهترین ارسال کنندگان این موضوع

بهترین ارسال کنندگان این موضوع

ارسال شده در
دستتون درد نكنه

هم مطالب ارائه شده وهم خود پروژه بسيار عالي

خواهش میکنم دوست عزیز :icon_gol:

  • Like 2
ارسال شده در

[h=2][/h]

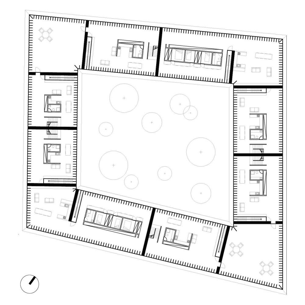
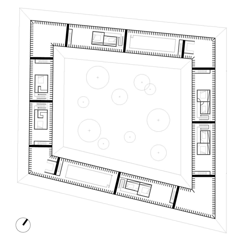
تیرهای چوبی اسكلت، نمایان و متراكم هستند و بویشان فضا را پر می كند و برای ساكنان آرام بخش است.

 

هر خانه به روشی مشابه طراحی شده است؛ از نظر نوع شناسی كلاسیك، طرح مشابه خانه Farnsworth كاری از Mies Van der Rohe یا موردی نزدیك تر به طرح Villa Latapie طرحی از معماران فرانسوی به نام های Lacatonو Vassal اجزاء اساسی و اصلی شامل آشپزخانه، حمام، اتاق خواب و انباری در فضای مركزی جمع شده اند.

 

همانند Villa Latapi، این خانه های از خیابان جدا شده اند اما با یك پنجره ای كه فقط با یك چهارچوب مشخص شده است، به باغ وسیعی چسبیده است.

 

این تیرچه های چوبی نور زیادی را به داخل راه می دهند اما از طرفی، ساكنان حریم خاصی نخواهند داشت.

 

چهار خانه در پروژه ما وجود دارند: خانه بزرگ خانوادگی + كنج: 250 مترمربع؛ خانه بزرگ: 147 مترمربع؛ خانه متوسط: 128 مترمربع و خانه كوچك: 95 مترمربع.

 

بعضی از خانه ها دوبلكس هستند و اتاق خواب ها در طبقه دوم قرار دارند. اتاق-خواب های طبقه بالا با پانل های شیشه ای جدا شده اند و نور به راحتی از آنها می گذرد.

 

بلوك های مركزی شبیه به خانه هایی سفیدو كوچك داخل یك خانه دیگر هستند كه زیر این سقف بزرگ پناه آورده اند.

 

برای از بین بردن شیب كم زمین آن محل، در اطراف خیابان كمی خاكریزی كردیم.

 

سطح بالاتر ساختمان سراسر یكسان است و تنها فضای زیر ساختمان و باغ تغییرات توپوگرافی دارند.

 

این طراحی صرفه جویی های زیادی در مصالح، هزینه های ساخت و همچنین انرژی دارد و مشتاق به تنظیمات فضایی، سازماندهی های مجدد و پیشرفت های ممكن است.

 

بر فرض مثال، كنج های ساختمان، فضاهای عجیب و جالبی هستند كه بعضی مواقع در خانه گنجانده می شوند و برخی اوقات نیز فضای جمعی مشتركی برای مثلاً بازی بچه ها هستند.این خانه ها شما را به خلاقیت دعوت می كنند و به دوران كودكی بازمی گردانند.

 

1338958883-plan-2nd-floor-main-1000x1000.jpg

 

1338958887-plan-3rd-floor-1000x1000.jpg

 

1338958895-section.jpg

 

1338958899-section-light-diagram.jpg

 

1338958877-isometric-program-1000x1000.jpg

 

1338958870-isometric-general-500x1000.jpg

  • Like 4
ارسال شده در

دوسش دارم:w16:

مرسی به خاطر تاپیکای خوبت:icon_gol:

  • Like 2
ارسال شده در
دوسش دارم:w16:

مرسی به خاطر تاپیکای خوبت:icon_gol:

خواهش میکنم آزاده جونم :icon_gol:

ارسال شده در

[TABLE=width: 0%]

[TR]

[TD=colspan: 3]2166634778355188691130201218148697.jpg

[/TD]

[/TR]

[TR]

[TD=bgcolor: #cdcdcd]

[/TD]

[TD=align: center] کشتی تفریحی 41 متری طراحی شده توسط نورمن فاستر و همکارانش برای YachtPlus در حال حاضر در محوطه قایق سازی Rodriquez Cantieri در ایتالیا در دست ساخت می باشد که در ماه سپتامبر اتمام می یابد . طراحی منحصر به فرد فاستر با نام 40 Signature Series یک مفهوم جدید برای نسل جدید صاحبان کشتی های تفریحی می باشد . شکل معاصر و یونیک طرح ، او را بی شک به یک قطعه از معماری مدرن تبدیل می کند . یک تأکید جدید به مسائلی از قبیل کیفیت و کمیت فضا ، تراس بیرونی ، نور و مناظر انجام شده است . در نتیجه این پروژه فضای عرشه بیشتر و فضای داخلی راحت تری را نسبت به خواسته کارفرما برای داشتن تعطیلات زیبا در سراسر جهان و همچنین نهایت استفاده از پنجره های سقف تا کف و همچنین ویوهای گسترده ارائه می کند . فاستر یک حس تداوم بین فضاهای داخلی و خارجی ایجاد کرده . این کشتی از نور طبیعی در هر چهار عرشه مملو است که توسط یک راه پله مارپیچ شیشه ای شفاف به هم متصل می شوند . [/TD]

[TD=bgcolor: #cdcdcd]

[/TD]

[/TR]

[/TABLE]

[TABLE]

[TR]

[TD=class: DataListItem]

2166634778355329551255201232149557.jpg یاچ پلاس از نورمن فاستر

 

[/TD]

[/TR]

[TR]

[TD=class: DataListItem]

216663477835540076740020124014767.jpg یاچ پلاس از نورمن فاستر

 

[/TD]

[/TR]

[TR]

[TD=class: DataListItem]

2166634778355488867230201248148867.jpg یاچ پلاس از نورمن فاستر

 

[/TD]

[/TR]

[TR]

[TD=class: DataListItem]

2166634778355563784310201256143787.jpg یاچ پلاس از نورمن فاستر

 

[/TD]

[/TR]

[TR]

[TD=class: DataListItem]

216663477835564272457020124142727.jpg یاچ پلاس از نورمن فاستر

 

[/TD]

[/TR]

[TR]

[TD=class: DataListItem]

2166634778355721938250201212141937.jpg یاچ پلاس از نورمن فاستر

 

[/TD]

[/TR]

[TR]

[TD=class: DataListItem]

2166634778355812537920201221142537.jpg یاچ پلاس از نورمن فاستر

 

[/TD]

[/TR]

[TR]

[TD=class: DataListItem]

2166634778355909055180201230149057.jpg یاچ پلاس از نورمن فاستر

 

[/TD]

[/TR]

[TR]

[TD=class: DataListItem]

2166634778355992702170201239142707.jpg یاچ پلاس از نورمن فاستر

 

[/TD]

[/TR]

[TR]

[TD=class: DataListItem]

2166634778356074816055201247144817.jpg یاچ پلاس از نورمن فاستر

 

[/TD]

[/TR]

[TR]

[TD=class: DataListItem]

2166634778356176098635201257146097.jpg یاچ پلاس از نورمن فاستر

 

[/TD]

[/TR]

[TR]

[TD=class: DataListItem]

2166634778356312027435201211142027.jpg یاچ پلاس از نورمن فاستر

 

[/TD]

[/TR]

[TR]

[TD=class: DataListItem]

2166634778356416464110201221146467.jpg یاچ پلاس از نورمن فاستر

 

[/TD]

[/TR]

[TR]

[TD=class: DataListItem]

2166634778356512581005201231142587.jpg یاچ پلاس از نورمن فاستر

 

[/TD]

[/TR]

[TR]

[TD=class: DataListItem]

2166634778356605719575201240145717.jpg یاچ پلاس از نورمن فاستر

 

[/TD]

[/TR]

[TR]

[TD=class: DataListItem]

2166634778356743327955201254143327.jpg یاچ پلاس از نورمن فاستر

 

[/TD]

[/TR]

[TR]

[TD=class: DataListItem]

216663477835683808751520123148087.jpg یاچ پلاس از نورمن فاستر

 

[/TD]

[/TR]

[TR]

[TD=class: DataListItem]

2166634778356933540390201213143547.jpg یاچ پلاس از نورمن فاستر

[/TD]

[/TR]

[/TABLE]

 

برای مشاهده این محتوا لطفاً ثبت نام کنید یا وارد شوید.

  • Like 3
ارسال شده در

[TABLE=width: 0%]

[TR]

[TD=colspan: 3]2169634781337966999050201236176997.jpg

[/TD]

[/TR]

[TR]

[TD=bgcolor: #cdcdcd]

[/TD]

[TD=align: center]

برج ماهي پلاستيكي Plastic Fish Tower ؛

تقدير شده در رقابت آسمانخراش 2012 ؛

كيم هونگسئوپ Kim Hongseop، چو هيونبيوم Cho Hyunbeom ، يون سانهي Yoon Sunhee، يون هيونگسو Yoon Hyungsoo ؛

كره جنوبي ،

توده ای از زباله كه 8.1 % حجم كل دريا است،در ميان اقيانوس آرام قرار گرفته است. برج به عنوان قطعه سطل زباله اقيانوس بزرگ آرام Great Pacific Garbage Patch –GPGP- شناخته شده است و برای در بر گرفتن بيش از 100 ميليون تن زباله تخمين زده شده است. زباله ها ی جمع شده در آن مكان خاص به عنوان جريان های اقيانوس ، در منطقه ی نيمه گرمسيری گرد آمده و باعث آسيب جدی برای اكوسيستم و آنهايي كه در درون نوار گسترده اطراف آن قرار دارند، شده است.

برج ماهي پلاستيكي، يك ساختار دايره ای شناور روی سطح اقيانوس است، درون قطعه سطل زباله اقيانوس بزرگ آرام Great Pacific Garbage Patch –GPGP- ، جمع آوری و پردازش مجدد پلاستيك انجام خواهد شد ، كه تخمين مي زند و مي گويد شامل 90% GPGP است و اغلب توسط پرندگان و ماهي ها بلعيده شده ، و باعث مرگ آنها مي شود. حصار بزرگ دور ساختار دايره ای زير آب را تا قطر 1 كيلومتر ، برای تسخير تمام پلاستيك های شناور در راه خود فرا مي گيرد. پلاستيك درون ساختار بازيافت خواهد شد و تكه های پلاستيكی پردازش شده كه مي تواند پرورش ماهي را برای بازگرداندن به اكوسيستم فراهم نمايد. علاوه بر كمك به كاهش آلودگي ، پرورش ماهي دو فايده ی ديگر خواهد داشت: خاصيت شناوری عناصر پرورش ماهي پلاستيكي برای نگه داشتن كل ساختار شناور كافي خواهد بود، چون پلاستيك در حقيقت بسيار سبك است ، و ساختار به عنوان يك جاذبه ی توريستي موقعيت خواهد يافت. آوردن گردشگران به GPGP تا حد زيادی به انتشار گسترده ی اين واقعيت از فاجعه زيست محيطي ساخته ی دست بشر كمك مي كند. گردشگران ، با كشتي هايی كه توسط مواد شيميايي كه از طريق پلاستيكهای پردازش شده درون آسمانخراش جمع آوری خواهد شد- در روش استخراج مواد شيميايي نظر به اينكه هنوز كشف نشده است- تامين سوخت ميشوند، از محل منتقل خواهند شد .

ساختار به خودی خود يك حلقه است كه بالای آب مي آيد و همچنين به زير آب مي رود ، اما تا حد زيادی تو خالي است. حلقه ی بيروني دارای فضاهای مسكوني و تفريح است ، و در فواصل پل های محصور شده در زير آب متصل شده است .سواحل ماهيگيری از پلاستيك بازيافتی ساخته شده، از طريق ميان حلقه باريك شده است، و به حفظ ساختار شناور كمك مي كند.

[/TD]

[TD=bgcolor: #cdcdcd]

[/TD]

[/TR]

[/TABLE]

[TABLE]

[TR]

[TD=class: DataListItem]

2169634781338093641335201249173647.jpg برج ماهي پلاستيكي

 

[/TD]

[/TR]

[TR]

[TD=class: DataListItem]

216963478133822814444520122178147.jpg برج ماهي پلاستيكي

[/TD]

[/TR]

[/TABLE]

 

منبعhttp://www.etoood.com/NewsShow.aspx?nw=2169

  • Like 1
ارسال شده در

[TABLE=width: 0%]

[TR]

[TD=colspan: 3]2171634782420808171295201220188177.jpg

[/TD]

[/TR]

[TR]

[TD=bgcolor: #cdcdcd]

[/TD]

[TD=align: center]

هنگامی که باهاوس از ویمار به دسائو تغییر مکان داد، ساختمان های آموزشی مورد نیاز بودند. خانه های هفت برای تامین مسکن برای اساتید و آتلیه های خصوصی ساخته شدند. در سال 1926 والتر گروپیوس، لازلو مولی-ناگی، لیونل فینینگر، جورج موچه، اسکار شلمر و همچنین پل کله

برای مشاهده این محتوا لطفاً ثبت نام کنید یا وارد شوید.
به همراه خانواده هایشان به این مکان نقل مکان کنند. مستاجر های بعدی هانس مایر، لودویگ میس ون دروهه، جوزف آلبرس، هینرک شپرو آلفرد آرنت بودند.
برای مشاهده این محتوا لطفاً ثبت نام کنید یا وارد شوید.

گرچه گروپیوس موفق نشد ایده اولیه اش مبتنی بر ساخت خانه ها از عناصر کاملا پیش ساخته برای اثبات کارآیی استانداردسازی را اجرا کند اما، وی ترکیب شگفت انگیزی از مکعب های سفید با چیدمان در ارتفاع های متفاوت ساخت.

سمت طرف خیابان تراس های باز و بالکن دارند. مبلمان داخلی ساخت کارگاه خود باهاوس، طراحی شده عمدتا توسط مارسل برئور است. کار نوسازی در سال 1992 آغاز و خانه ها در سال 1996 قسمتی از میراث جهانی یونسکو شدند.


برای مشاهده این محتوا لطفاً ثبت نام کنید یا وارد شوید.
. László Moholy-Nagy and Lyonel Feininger, Georg Muche and Oskar Schlemmer, as well as Wassily Kandinsky and Paul Klee

برای مشاهده این محتوا لطفاً ثبت نام کنید یا وارد شوید.
. Hannes Meyer, Ludwig Mies van der Rohe, Josef Albers, Hinnerk Scheper, and Alfred Arndt

 

[/TD]

[TD=bgcolor: #cdcdcd]

[/TD]

[/TR]

[/TABLE]

[TABLE]

[TR]

[TD=class: DataListItem]

217163478243024651251520124186517.jpg خانه اساتید باهاوس، ترکیبی جذاب از مکعب های سفید رنگ

 

[/TD]

[/TR]

[TR]

[TD=class: DataListItem]

217163478243424028033520124418287.jpg نمای داخلی

 

[/TD]

[/TR]

[TR]

[TD=class: DataListItem]

217163478248933047504020123318477.jpg خانه های اساتید باهاوس، ترکیبی جذاب از مکعب های سفید رنگ

[/TD]

[/TR]

[/TABLE]

 

برای مشاهده این محتوا لطفاً ثبت نام کنید یا وارد شوید.

  • Like 3
ارسال شده در

[TABLE=class: BorderBox]

[TR]

[TD=align: center][TABLE]

[TR]

[TD=align: center][TABLE=width: 0%]

[TR]

[TD=colspan: 3]217263478249284049452520122418497.jpg

[/TD]

[/TR]

[TR]

[TD=bgcolor: #cdcdcd]

[/TD]

[TD=align: center] معمار فرانسوی اوپوس 5 ، یک سالن کنسرت بر بالای یک صومعه سابق مربوط به قرن هفدهم در شمال فرانسه ساخته است . یک پوسته شیشه ای ، بال جنوبی این مجموعه را پوشانده و یک سالن ارکستر با سقفی از آینه های مواج در طبقه بالاتر و یک کتابخانه موسیقی در طبقه اول را ایجاد می کند . ورودی جدید سرسرا در پشت ایوان طبقه همکف قرار گرفته که دارای دیواری شفاف با منظره ای رو به رودخانه برای بازدیدکنندگان می باشد . نمای باقی مانده از ساختار ، بدون پنجره بوده و با پانل های بتنی پوشیده شده اند . صومعه توبه کاران در لوویر -نرماندی- در طول سال ها ، کاربردهای مختلفی را ارائه می کرده و منزلگاه یک کلیسا ، زندان ، دادگاه بوده ، اما در سال 1990 به یک مدرسه موسیقی تبدیل شده است . [/TD]

[TD=bgcolor: #cdcdcd]

[/TD]

[/TR]

[/TABLE]

[/TD]

[/TR]

[TR]

[TD] [TABLE]

[TR]

[TD=class: DataListItem]

2172634782498525911885201252185917.jpg توسعه مدرسه موسیقی لوویر از Opus 5

 

[/TD]

[/TR]

[TR]

[TD=class: DataListItem]

2172634782498881885195201228181887.jpg توسعه مدرسه موسیقی لوویر از Opus 5

 

[/TD]

[/TR]

[TR]

[TD=class: DataListItem]

2172634782499029248810201242189247.jpg توسعه مدرسه موسیقی لوویر از Opus 5

 

[/TD]

[/TR]

[TR]

[TD=class: DataListItem]

2172634782499116733445201251186737.jpg توسعه مدرسه موسیقی لوویر از Opus 5

 

[/TD]

[/TR]

[TR]

[TD=class: DataListItem]

217263478249921471545520121184717.jpg توسعه مدرسه موسیقی لوویر از Opus 5

 

[/TD]

[/TR]

[TR]

[TD=class: DataListItem]

2172634782499365467525201216185467.jpg توسعه مدرسه موسیقی لوویر از Opus 5

 

[/TD]

[/TR]

[TR]

[TD=class: DataListItem]

2172634782499536228080201233186227.jpg توسعه مدرسه موسیقی لوویر از Opus 5

 

[/TD]

[/TR]

[TR]

[TD=class: DataListItem]

2172634782499850036120201251837.jpg توسعه مدرسه موسیقی لوویر از Opus 5

 

[/TD]

[/TR]

[TR]

[TD=class: DataListItem]

2172634782500237208605201243187207.gif توسعه مدرسه موسیقی لوویر از Opus 5

 

[/TD]

[/TR]

[TR]

[TD=class: DataListItem]

217263478250049357891520129183577.gif توسعه مدرسه موسیقی لوویر از Opus 5

 

[/TD]

[/TR]

[TR]

[TD=class: DataListItem]

2172634782500624947460201222184947.gif توسعه مدرسه موسیقی لوویر از Opus 5

 

[/TD]

[/TR]

[TR]

[TD=class: DataListItem]

2172634782500807396720201240187397.jpg توسعه مدرسه موسیقی لوویر از Opus 5

 

[/TD]

[/TR]

[TR]

[TD=class: DataListItem]

2172634782500952035900201255182037.jpg توسعه مدرسه موسیقی لوویر از Opus 5

 

[/TD]

[/TR]

[TR]

[TD=class: DataListItem]

217263478250109242730520129182427.jpg توسعه مدرسه موسیقی لوویر از Opus 5

 

[/TD]

[/TR]

[TR]

[TD=class: DataListItem]

217263478250120081880520122018817.jpg توسعه مدرسه موسیقی لوویر از Opus 5

 

[/TD]

[/TR]

[/TABLE]

[/TD]

[/TR]

[/TABLE]

[/TD]

[TD]

[/TD]

[/TR]

[/TABLE]

برای مشاهده این محتوا لطفاً ثبت نام کنید یا وارد شوید.

  • Like 3
ارسال شده در

برای مشاهده این محتوا لطفاً ثبت نام کنید یا وارد شوید.
بـــــــرج های وِلو (velo tower)

 

این جفت آسمانخراش از حجم های انباشته شده و همچنین چرخش یافته؛ نقطه ی مقابل برنامه ریزی به سوی گونه شناسی برج های معمولی است.

با تغییر مقیاس و تجمیع دو بلند مرتبه، به سوی ارتباطات مدور تنگاتنگ، این پروژه یک گزینه معمارانه و همچنین با رویکردِ شهری است که به بازگویی های سنتی در این منظر شهری(منطقه بین المللی تجاری یانگ سان، سئول، کره جنوبی) پاسخ می دهد. این هشت مؤلفه ی مجزا، به نحوی چرخیده و قرار گرفته اند که مناظر پارک یان سانگ و اشراف به رود هان را در این محدوده، به خود اختصاص داده اند.

باشگاه های داخلی، مراکز تفریحی، استخرها، چشمه های آبگرم و کافه ها همراه با باغ معلق؛ مناظری از سراسر این منطقه را حاصل می کنند. نماها از مدول های ساخته ی بزرگ تشکیل شده. پانصد واحد شخصی در مساحت های ۴۵ تا ۸۲ متر مربعی متنوع هستند. پیدایش فرم این ساختمان از ادغام آخرین پیشرفت های تکنولوژی اعم از تکنولوژی خودرو، هوا فضا و صنایع دریایی حاصل خواهد شد.

مشاهده فیلم برج ها :

برای مشاهده این محتوا لطفاً ثبت نام کنید یا وارد شوید.

تصاویر :

برای مشاهده این محتوا لطفاً ثبت نام کنید یا وارد شوید.
بـــــــرج های وِلو (velo tower)

 

برای مشاهده این محتوا لطفاً ثبت نام کنید یا وارد شوید.
بـــــــرج های وِلو (velo tower)

 

برای مشاهده این محتوا لطفاً ثبت نام کنید یا وارد شوید.
بـــــــرج های وِلو (velo tower)

 

برای مشاهده این محتوا لطفاً ثبت نام کنید یا وارد شوید.
بـــــــرج های وِلو (velo tower)

 

برای مشاهده این محتوا لطفاً ثبت نام کنید یا وارد شوید.
بـــــــرج های وِلو (velo tower)

 

برای مشاهده این محتوا لطفاً ثبت نام کنید یا وارد شوید.
بـــــــرج های وِلو (velo tower)

 

برای مشاهده این محتوا لطفاً ثبت نام کنید یا وارد شوید.
بـــــــرج های وِلو (velo tower)

 

برای مشاهده این محتوا لطفاً ثبت نام کنید یا وارد شوید.
بـــــــرج های وِلو (velo tower)

 

برای مشاهده این محتوا لطفاً ثبت نام کنید یا وارد شوید.
بـــــــرج های وِلو (velo tower)

 

برای مشاهده این محتوا لطفاً ثبت نام کنید یا وارد شوید.
بـــــــرج های وِلو (velo tower)

 

برای مشاهده این محتوا لطفاً ثبت نام کنید یا وارد شوید.
بـــــــرج های وِلو (velo tower)

 

برای مشاهده این محتوا لطفاً ثبت نام کنید یا وارد شوید.
بـــــــرج های وِلو (velo tower)

  • Like 3
ارسال شده در

این ساختمان به عنوان گالری نمایشگاه دائمی و مركز اطلاعات توریستی برای بزرگ‍ترین توسعه‌دهنده چینی است كه شركت MOD طرح نمایشی برای گالری سه‌گانه V را به یك نماد تصویری در خط ساحلیDong Jiang Bay تبدیل كرد.

 

با وجود ویژگی‌های آشكار برجسته‌كاری، DNA ساختمان از تجزیه و تحلیل دقیق از محیط متنی و برنامه‌ریزی شده بسیار معقولانه ظاهر شده است كه منجر به طرح سازه مثلثی گالری سه‌گانه V شد.

 

1328920772-10-vanke-triple-v.jpg

 

1328920747-09-vanke-triple-vjpg.jpg

 

1328920833-12-vanke-triple-v.jpg

 

1328920605-05-vanke-triple-v.jpg

 

1328920811-11-vanke-triple-v.jpg

  • Like 4
ارسال شده در

برنامه شامل سه فضای اصلی بود: مركز اطلاعات توریستی، گالری نمایش و اتاق مذاكره.

 

هركدام از این اتاق‌ها ورودی جداگانه دارند و مركز اطلاعات توریستی و گالری نمایش دو مسیرخروجی جداگانه نیز برای عابرین پیاده دارند.

 

1328920698-09-vanke-triple-v.jpg

 

1328920857-13-vanke-triple-v.jpg

 

1328920901-15-vanke-triple-v.jpg

 

1328920937-17-vanke-triple-v.jpg

 

  • Like 2
ارسال شده در

در امتداد گالری نمایش، به اتاق مذاكره می‌رسیم. این فضا از چشم‌انداز وسیع خط ساحلی استفاده كرده و پیشخوان باری در آنجا برپا كرده است.

 

از نظر فن ساختمان، این سازه برای آب و هوای ساحلی پاسخگوست؛ پانل‌های فلزی در قسمت خارجی و نوارهای چوبی در دیوارهای داخلی و سقف برای طبیعی‌تر جلوه دادن سازه به كار رفته‌اند.

 

1328920980-drawing-01.jpg

 

1328921015-drawing-02.jpg

 

1328921044-ground-floor-plan-1000x706.jpg

  • Like 2
ارسال شده در

پارچه‌ای بر روی ساختمان دفتر و سالن نمایش شیشه‌ای شبیه به توپ گلف کشیده می‌شود که از آن در برابر نور مستقیم خورشید محافظت می‌کند. این عمارت که بین دو بزرگراه قرار گرفته، دفتر مرکزی نورپردازی با نام تجاری iGuzzini است که توسط یک معمار اسپانیایی به اسم Josep Miàs از شركت معماری MiAS به انجام رسیده است.

 

زیرزمین این ساختمان، تاریك و ساخته شده از بلوك‌های بتنی و محل سالن نمایش نورپردازی، انبار، تالار سخنرانی ، اتاق کنفرانس و پارکینگ است. این دفتر اداری پنج طبقه چارچوب فولادی داشته و مرکز توخالی آن با شیشه پوشیده شده است.

 

1318342530-n7x7236-medium.jpg

 

1318342514-n7x7027-28-medium.jpg

 

1318342516-n7x7071-72-medium.jpg

 

1318342519-n7x7136-medium.jpg

 

1318342522-n7x7197-medium.jpg

 

 

 

 

  • Like 3
ارسال شده در

دفتر جدید iGuzzini Illuminazione España S.A. بین دو بزرگراه AP-7 و C-16 بنا شده است. ساختمان شامل دو بخش، هرکدام با عملکردی مجزا است؛ یکی در زیرزمین به دور از نور طبیعی و ساخته شده از بتن و بخش دیگری که کروی شكل و با پوسته‌ای شیشه‌ای است.

 

113.300.1334155667.05-recitymagazine-mias%20architects%20-iGuzzini%20Illuminazione.png

 

1318342525-n7x7220-medium.jpg

 

113.300.1334155708.07-recitymagazine-mias%20architects%20-iGuzzini%20Illuminazione.png

 

113.300.1334155711.06-recitymagazine-mias%20architects%20-iGuzzini%20Illuminazione.png

 

113.300.1334155782.09-recitymagazine-mias%20architects%20-iGuzzini%20Illuminazione.png

 

113.300.1334155711.08-recitymagazine-mias%20architects%20-iGuzzini%20Illuminazione.png

 

1318342524-n7x7211-medium.jpg

  • Like 3
ارسال شده در

با بهره‌گیری از شیب زمین، صحن شامل انباری، پارکینگ، سالن نمایشگاه، سالن سخنرانی، نمایش نورپردازی، اتاق کنفرانس و سیستم‌های مکانیکی است. تمام این فضاها نیاز به مکانی تاریک دارند تا ویژگی‌های نورپردازی مصنوعی را بتوان نشان داد.

 

بیرون طبقات مجهز به یک طبقه بزرگ در فضای باز است که با پانل‌های مختلف پوشیده شده و انعطاف‌پذیری مورد نیاز را برای نمایش‌های مختلف برای نمایشگاه در فضای باز را داراست. در بالای طبقه، چشمگیرترین بخش این مجموعه است كه دفاتر مدیریتی و عمومی و همچنین بخش‌های تحقیقاتی قرار گرفته‌اند.

 

در واقع، دفاتر دور پاسیوی نورگیر با ساختار تک ستونی با پنج دکل فلزی ساخته شده‌اند. انتهای دکل‌ها با کابل‌هایی به ده پایه عمودی متصل شده که محدودیت خارجی منطقه را از بین می‌برد. بنابراین، کل ساختمان بر پایه یک ستون مرکزی است.

 

نمای خارجی دفاتر، طبقه خارجی را می‌پوشاند و نمای داخلی پاسیو شامل پوسته شیشه‌ای جالبی است. بدینگونه، از دفاتر، چشم‌انداز 360 درجه را می‌توان مشاهده کرد.

 

نمای شیشه‌ای که سطوح آفتابگیر هستند با محافظ خورشیدی ساخته شده از ساختار سه بعدی فلزی پوشیده شده است. این نمای پارچه‌ای قابلیت بازتاب اشعه دارد ولی نفوذپذیری بصری ممکن است. این قابلیت هندسی انعطاف‌پذیر بسیار کارآمد است زیرا محافظ خورشیدی شکل طبقات و ساختمان را به خود می‌گیرد.

 

در طول روز، ساختمان از بیرون شبیه به یک حجم مات دیده می‌شود که آسمان در بخش شمالی آن منعکس شده و در بخش جنوبی یک حجم نیم‌کره دیده می‌شود. از داخل، مشاهدات کاملاً متفاوت است زیرا قطعی بین فضای درون و بیرون نیست.

 

و اما در طول شب، تمام این ویژگی‌ها معکوس می‌شود و حجم کروی به یک فانوس دریایی تبدیل می‌شود و داخل ساختمان با شفافیت کامل از تمام نقاط بزرگراهی که از کنار آن می‌گذرد، قابل رؤیت است.

 

113.300.1334155786.11-recitymagazine-mias%20architects%20-iGuzzini%20Illuminazione.png

 

dezeen_iGuzzini-Illuminazione-Espana-SA-Headquarters-by-MiAS-Architects-3.jpg

 

dezeen_iGuzzini-Illuminazione-Espana-SA-Headquarters-by-MiAS-Architects-4.jpg

 

dezeen_iGuzzini-Illuminazione-Espana-SA-Headquarters-by-MiAS-Architects-15.jpg

 

1329481877-1307133394-roof-plan-646x1000.jpg

 

1329481880-1307133442-section-1000x306.jpg

  • Like 3
ارسال شده در

معمار: Christian de Portzamparc

 

این کارخانه که در یکی از باغ های انگور در منطقه سنت امیلیون فرانسه احداث شده است. فرم کلی این کارخانه از یک هندسه منحنی بسیار زیبایی برخودار است.

نکته ی قابل توجه در این بنا ، پرهیز از خطوط صاف است ، که سعی شده حتی در مسیر های رفت و آمد از خطوظ صاف پرهیز شود.

0qvoq3o1wqvruqeusqe2.jpg

 

laqfa8kj8ntvxalh3ff1.jpg

 

dc66ynqaiaaps2v3ul2c.jpg

 

kgudi2pxxh74hg7bcfv.jpg

 

gq3ban2zv4qpzwkzzy2b.jpg

 

 

ljy7rvzxy6sv2xxdl0nv.jpg

 

bjq9ssv0p144dlilp6x.jpg

 

da0rkjekt6nfe8pqot70.jpg

 

tdx5r2q7gs8ugc7qj8o.jpg

 

yh540s4uj4vkw3f2i16.jpg

 

eshshrg7w9zeymnkktps.jpg

 

l38e7hqrm2vn7dd9sa61.jpg

 

cfsz79dgnuqk9vjc9url.jpg

 

bj17ldlilmioxnakcur.jpg

 

44cvm9wdtojt8tquozsr.jpg

 

66cbvqcvldwcgalg1fqk.jpg

 

f2e2b3kto2qdiguzm0e.jpg

 

iogvttfe03pj4ed2x5m.jpg

 

zhy0bkdzz7crsfr1hkg4.jpg

 

6bw7dgdfo281oi8crjc4.jpg

 

c3zbszmmo3fge2rws8i.jpg

 

v7yik8ci1nd530wm24.jpg

 

2dw42hxmfyts98xz9hoc.jpg

 

j3x4aqc55ztx4168cdx.jpg

 

dmq7s6syi9j2epeves.jpg

 

9d732em1fn1r8qd6xza.jpg

 

33bjrrhzflbybjhac5sk.jpg

 

4u3o5q36reywgi6aga1.jpg

  • Like 2
ارسال شده در

[TABLE=width: 0%]

[TR]

[TD=colspan: 3]217363478335301817400520121198177.jpg

[/TD]

[/TR]

[TR]

[TD=bgcolor: #cdcdcd]

[/TD]

[TD=align: center] معماران کالیفرنیا amphibianArc یک ساختمان ترانسفورمر با شکلی تغییر پذیر برای یک شرکت ماشین آلات چینی با نمایی که مانند بال های یک حشره بزرگ آویخته می شوند ، طراحی کرده اند . مرکز نمایشگاهی ، برای سازنده خودروهای صنعتی Zoomlion با رتبه 10 در جهان ، به تقلید از حرکت عقاب ، پروانه ها و قورباغه طراحی شده . پانل های لولایی شیشه ای و فولادی شباهتی به بال های سنجاقک در دو انتهای ساختمان دارند که بر روی بازوهای هیدرولیکی نصب شده اند که مانند ترانسفورماتور به آنها اجازه باز و بسته شدن می دهد .این اشکال حیوانی ، منعکس کننده درک کمپانی از تعادل ظریف بین طبیعت و اختراع مصنوعی و خواسته آنان برای توسعه سازگار با محیط زیست بشر است و همچنین نمادهای فرهنگی – سنتی چینی را منتقل می کنند : نماد رهبری (عقاب) ، کم دوامی و شکنندگی (پروانه) و شکوفایی (سنجاقک) . قرار است این ساختمان چهار طبقه 310 متر مربع مساحت و 26 متر ارتفاع ، در سایت پارک علمی زوم لیون در چانگشا-استان هونان- به منظور نمایشگاه و نمایش محصولات ساخته شود . [/TD]

[TD=bgcolor: #cdcdcd]

[/TD]

[/TR]

[/TABLE]

[TABLE]

[TR]

[TD=class: DataListItem]

2173634783353176152175201217196157.jpg دفتر مرکزی نمایشگاه زوملیون از آمفیبین آرک

 

[/TD]

[/TR]

[TR]

[TD=class: DataListItem]

2173634783353409096250201240199097.jpg دفتر مرکزی نمایشگاه زوملیون از آمفیبین آرک

 

[/TD]

[/TR]

[TR]

[TD=class: DataListItem]

2173634783353493329140201249193327.jpg دفتر مرکزی نمایشگاه زوملیون از آمفیبین آرک

 

[/TD]

[/TR]

[TR]

[TD=class: DataListItem]

2173634783353585979460201258195977.jpg دفتر مرکزی نمایشگاه زوملیون از آمفیبین آرک

 

[/TD]

[/TR]

[TR]

[TD=class: DataListItem]

217363478335369798401020129197987.jpg دفتر مرکزی نمایشگاه زوملیون از آمفیبین آرک

 

[/TD]

[/TR]

[TR]

[TD=class: DataListItem]

2173634783353875121110201227195127.jpg دفتر مرکزی نمایشگاه زوملیون از آمفیبین آرک

 

[/TD]

[/TR]

[TR]

[TD=class: DataListItem]

217363478335421831203520121198317.gif دفتر مرکزی نمایشگاه زوملیون از آمفیبین آرک

 

[/TD]

[/TR]

[TR]

[TD=class: DataListItem]

2173634783354458989990201225198987.gif دفتر مرکزی نمایشگاه زوملیون از آمفیبین آرک

 

[/TD]

[/TR]

[TR]

[TD=class: DataListItem]

2173634783354649358665201244199357.gif دفتر مرکزی نمایشگاه زوملیون از آمفیبین آرک

 

[/TD]

[/TR]

[TR]

[TD=class: DataListItem]

2173634783354767397985201256197397.gif دفتر مرکزی نمایشگاه زوملیون از آمفیبین آرک

 

[/TD]

[/TR]

[TR]

[TD=class: DataListItem]

2173634783355018436605201221198437.gif دفتر مرکزی نمایشگاه زوملیون از آمفیبین آرک

 

[/TD]

[/TR]

[TR]

[TD=class: DataListItem]

2173634783355316444875201251196447.gif دفتر مرکزی نمایشگاه زوملیون از آمفیبین آرک

 

[/TD]

[/TR]

[TR]

[TD=class: DataListItem]

2173634783355997934460201259197937.gif دفتر مرکزی نمایشگاه زوملیون از آمفیبین آرک

 

[/TD]

[/TR]

[TR]

[TD=class: DataListItem]

2173634783356205362590201220195367.gif دفتر مرکزی نمایشگاه زوملیون از آمفیبین آرک

 

[/TD]

[/TR]

[TR]

[TD=class: DataListItem]

2173634783356351183335201235191187.gif دفتر مرکزی نمایشگاه زوملیون از آمفیبین آرک

[/TD]

[/TR]

[/TABLE]

 

برای مشاهده این محتوا لطفاً ثبت نام کنید یا وارد شوید.

  • Like 1
ارسال شده در

[TABLE=width: 0%]

[TR]

[TD=colspan: 3]2177634785032366268295201256216267.jpg

[/TD]

[/TR]

[TR]

[TD=bgcolor: #cdcdcd]

[/TD]

[TD=align: center] معماران اهل لندن Grimshaw کار بازسازی کاتی سارک cutty sark ، یک کشتی حمل چای تاریخی ، را به اتمام رساندند که به تازگی در گرینویچ برای عموم بازگشایی شد . معماران به طور کامل عرشه و بادبان های کشتی را تعمیر کردند -که در یک آتش سوزی در سال 2006 به شدت آسیب دیده بود- و کل کشتی را 3 متر بالاتر از جایگاه خود بردند تا یک سالن نمایشگاه زیر زمینی در پایین آن بوجود آورند . ساختار شیشه ای که در اطراف کشتی می باشد ، یک سایبان سقفی در بالای این سالن شکل می دهد و فضای بین زمین و بدنه را پل می زند . [/TD]

[TD=bgcolor: #cdcdcd]

[/TD]

[/TR]

[/TABLE]

[TABLE]

[TR]

[TD=class: DataListItem]

2177634785032605920925201220215927.jpg کاتی سارک از Grimshaw

 

[/TD]

[/TR]

[TR]

[TD=class: DataListItem]

2177634785032685593560201228215597.jpg کاتی سارک از Grimshaw

 

[/TD]

[/TR]

[TR]

[TD=class: DataListItem]

2177634785032947197910201254217197.jpg کاتی سارک از Grimshaw

 

[/TD]

[/TR]

[TR]

[TD=class: DataListItem]

2177634785033334067680201233214067.jpg کاتی سارک از Grimshaw

 

[/TD]

[/TR]

[TR]

[TD=class: DataListItem]

2177634785033515891980201251215897.jpg کاتی سارک از Grimshaw

 

[/TD]

[/TR]

[TR]

[TD=class: DataListItem]

217763478503365262151020125212627.jpg کاتی سارک از Grimshaw

 

[/TD]

[/TR]

[TR]

[TD=class: DataListItem]

2177634785033806068720201220216067.jpg کاتی سارک از Grimshaw

 

[/TD]

[/TR]

[TR]

[TD=class: DataListItem]

2177634785033923688145201232213687.jpg کاتی سارک از Grimshaw

 

[/TD]

[/TR]

[TR]

[TD=class: DataListItem]

2177634785034049295340201244219297.jpg کاتی سارک از Grimshaw

 

[/TD]

[/TR]

[TR]

[TD=class: DataListItem]

2177634785034424964655201222214967.jpg کاتی سارک از Grimshaw

[/TD]

[/TR]

[/TABLE]

 

برای مشاهده این محتوا لطفاً ثبت نام کنید یا وارد شوید.

  • Like 1
ارسال شده در

[TABLE=width: 0%]

[TR]

[TD=colspan: 3]2176634785017309976100201250219977.jpg

[/TD]

[/TR]

[TR]

[TD=bgcolor: #cdcdcd]

[/TD]

[TD=align: center]

پس از 20 دقیقه پیاده روی در امتداد شیبی ملایم از ایستگاه میتو، برج پیچان موزه هنری میتو، از میان ساختمان ها قد برمی افرازد، برج در سال 1999 افتتحاح شد، متشکل از یک سالن تئاتر، یک گالری و یک سالن کنسرت است، این برج که به وسیله

برای مشاهده این محتوا لطفاً ثبت نام کنید یا وارد شوید.
طراحی شده است، متشکله ایست از 28 چهاروجهی منتظم تیتانیومی که بر روی هم سوار شده اند.

زمانی که سالن تئاتر را مشاهده می کنید، متوجه نزدیکی بیش از اندازه سکو و جایگاه تماشاچیان می شوید و البته این انتخاب تعمدی بوده است تا درگیری مخاطب و اجرا بیشینه شود و البته چیدمان مدور صندلی ها نیز این حس را تقویت می کند. دیواره های سالن تئاتر از اجرهای ابی رنگ ساخته شده اند غرق در نورپردازی های الکتریکی زیباتر به نظر می ایند.

سالن کنسرت مجموعه اما عمیقا کلاسیک و بی نهایت موقرانه طراحی شده است، دیوارهای چوبی سفید و سقف مدوری که با سه ستون عظیم الجثه مرمر مهار شده اند یک پوسته منعکس کننده صدا دارد که می تواند متناسب با نیازها به صورت عمودی به بالا و پایین حرکت کند.

گالری هنرهای معاصر در قامت یکی از فضاهای ورودی جانمایی شده است و با سقف های مرتفعش نور را از سقف تامین می کند گالری از 9 اتاق متفاوت ساخته شده است، که هر یک متناسب با نوع نمایشی که می خواهند ایفا کنند قابل تغییرند. دیوارها سفیدند تا تاثیرشان بر اثار به نمایش درامده به حداقل برسد.

این برج تفسیرهای بی نهایت زیادی به همراه داشته است بر قرار دیدگاه برخی ترکیبی از

برای مشاهده این محتوا لطفاً ثبت نام کنید یا وارد شوید.
و
برای مشاهده این محتوا لطفاً ثبت نام کنید یا وارد شوید.
است و از دید برخی همچون یک قطعه عظیم از نگاتیو فیلمی به هم پیچ خورده بر قوام انچه دیگران می گویند همچون رباتی است اماده بلعیدن شهر، اما در یک نگاه کلی اثر به سبب کارکردی که در احیا بافت داشته است، روایتی است از انچه بر مکان رفته است و نوعی زایش مجدد است از دل ویانه هایی که عمیقا مورد علاقه ایسوزاکی اند.

اتووود پیش از این مصاحبه ای از اراتا ایسوزاکی با داراب دیبا را به منتشر کرده است که می توانید [

برای مشاهده این محتوا لطفاً ثبت نام کنید یا وارد شوید.
] مطالعه فرمایید.

اراتا ایسوزاکی هیچگاه به صورت رسمی عضو

برای مشاهده این محتوا لطفاً ثبت نام کنید یا وارد شوید.
نبود اما تاثیرات عمیقی بر ان ها گذاشت

اتووود پیش از این نوشتاری تحت عنوان "جنبش متابولیسم و زایش تکنوتوپیا؛ از اپیستمه تا تعرض یا چگونه تکنولوژی از خود عبور کرد" را در سه بخش ـ [

برای مشاهده این محتوا لطفاً ثبت نام کنید یا وارد شوید.
]، [
برای مشاهده این محتوا لطفاً ثبت نام کنید یا وارد شوید.
] و [
برای مشاهده این محتوا لطفاً ثبت نام کنید یا وارد شوید.
] ـ به چاپ رسانده و سعی کرده است روایتی فشرده و تحلیلی از چگونگی شکل گیری و بسط جنبش متابولیسم و رویکردهایش در حوزه طراحی ارائه دهد.

[/TD]

[TD=bgcolor: #cdcdcd]

[/TD]

[/TR]

[/TABLE]

[TABLE]

[TR]

[TD=class: DataListItem]

2176634785017506809205201210216807.jpg برج از نمای نزدیک

 

[/TD]

[/TR]

[TR]

[TD=class: DataListItem]

2176634785017683223695201228213227.jpg گالری هنری مجموعه

 

[/TD]

[/TR]

[TR]

[TD=class: DataListItem]

2176634785017871502660201247211507.jpg سالن تئاتر مجموعه

 

[/TD]

[/TR]

[TR]

[TD=class: DataListItem]

217663478501806457624020126214577.jpg سالن کنسرت برج

[/TD]

[/TR]

[/TABLE]

 

برای مشاهده این محتوا لطفاً ثبت نام کنید یا وارد شوید.

  • Like 2

×
×
  • اضافه کردن...