Artaria 13629 اشتراک گذاری ارسال شده در 10 دی، ۱۳۸۹ يكي حفظش نكرده فهميده مطلبو....به اين ميگن مهندس شما لطف دارید مهندس 2 لینک به دیدگاه
ssahel27 12 اشتراک گذاری ارسال شده در 16 دی، ۱۳۸۹ سلام من یه نقشه خونه میخوام برای خونه خومون که صد متر زیربنا باشه کی میتونه به من کمک کنه؟ آخه من و همسرم میخوایم یه خونه بسازیم برا خودمون 2 لینک به دیدگاه
keyvan_m 112 مالک اشتراک گذاری ارسال شده در 17 دی، ۱۳۸۹ با سلام دوستان عمرانی اگر درس هیدرولوژی رو پاس کرده باشد فرمولی برای محاسبه تعیین میزان بارندگی وجود داره که باید انحراف از معیار یا همون واریانس رو محاسبه کنیم می خواستم واریانس رو با ماشین حساب ti-nspire cas with tochpad حساب کنم . اما نتونستم . دوستان خواهش می کنم کمک کنید چطور با این ماشین حساب واریانس حساب کنم 1 لینک به دیدگاه
keyvan_m 112 مالک اشتراک گذاری ارسال شده در 22 دی، ۱۳۸۹ سلام sarbaz121 جان برای درس تحلیل 2 برای مبحث توزیع لنگر من رو یه راهنمایی میکنی برای ضرایب توزیع و انتقال کی0میشه کی1میشه از سختی کاهش یافته کیا باید استفاده کرد تو چه تکیه گاه هایی یه مثال هم بزنی مثلا اول برای قاب بدون درجه ازادی و بعد برای1درجه ازادی میزنی که به ترتیب مراحل رو برای حلش بهم بگی و چطوری لنگرها رو منتقل کنم و کدوم عضو از مثلا یه لنگرسهم میبره فکرکنم منظورمو فهمیدی ممنون زودتر بگی چون برای این درس تنها مبحثی که باید امتحان بدم همینه راستی اگرکنسول هم داشته باشیم بگو. برای دارای درجه ازادی بعد از تحلیل قاب اول چطوری اون دلتاها رو باید بدست بیارم و لنگرمجازی رو باید حدث بزنم برای تحلیل بدون درجش ممنون منتظرم. لینک به دیدگاه
pme 3474 اشتراک گذاری ارسال شده در 4 بهمن، ۱۳۸۹ سلام يعني يه نقشه واسه خونه ي خودتون ميخواين؟ 2 لینک به دیدگاه
keyvan_m 112 مالک اشتراک گذاری ارسال شده در 4 بهمن، ۱۳۸۹ سلاممن یه نقشه خونه میخوام برای خونه خومون که صد متر زیربنا باشه کی میتونه به من کمک کنه؟ آخه من و همسرم میخوایم یه خونه بسازیم برا خودمون سلام دوست گرامی سایت زیر خیلی کمکتون می کنه. برای مشاهده این محتوا لطفاً ثبت نام کنید یا وارد شوید. ورود یا ثبت نام 2 لینک به دیدگاه
Amir R. Haddadi 9164 اشتراک گذاری ارسال شده در 4 بهمن، ۱۳۸۹ سلاممن یه نقشه خونه میخوام برای خونه خومون که صد متر زیربنا باشه کی میتونه به من کمک کنه؟ آخه من و همسرم میخوایم یه خونه بسازیم برا خودمون خب اینجا همه می تونند بهتون کمک کنند ... فقط یه چند تا اطلاعات بیشتر باید بهش اضافه کنید مثل تراکم شهری ... تعداد اتاق خواب . از این دست اطلاعات اگه فقط طرح معماریش می خواهید میتونید از دوستان رشته معماری کمک بگیرید .... 2 لینک به دیدگاه
ARYA68 31 اشتراک گذاری ارسال شده در 4 بهمن، ۱۳۸۹ برای سازه بتنی و طراحی بر اساس aci318-99 داریمحالت (1) سازه شامل قاعده 100-30 نباشد حالت بدون پیچش تصادفی 9 ترکیب بار داریم برای مشاهده این محتوا لطفاً ثبت نام کنید یا وارد شوید. ورود یا ثبت نام حالت (2) سازه شامل قاعده 100-30 نباشد حالت همراه با پیچش تصادفی 17 ترکیب بار داریم 1 برای مشاهده این محتوا لطفاً ثبت نام کنید یا وارد شوید. ورود یا ثبت نام حالت (3) سازه شامل قاعده 100-30 باشد حالت همراه با پیچش تصادفی 33 ترکیب بار داریم برای مشاهده این محتوا لطفاً ثبت نام کنید یا وارد شوید. ورود یا ثبت نام حالت (4) سازه شامل قاعده 100-30 باشد حالت بدون پیچش تصادفی 17 ترکیب بار داریم برای مشاهده این محتوا لطفاً ثبت نام کنید یا وارد شوید. ورود یا ثبت نام سینا جان واقعا دستت درد نکنه مر30 3 لینک به دیدگاه
keyvan_m 112 مالک اشتراک گذاری ارسال شده در 16 بهمن، ۱۳۸۹ سلام دوستان فایلهاروپیوست کردم فقط سریع نگاه کنید باید زودتر تحویل دهم من یه توضیحی میدم والا دستی که بلد نیستم اینا رو طبق یه اموزش با LANDانجام دادم مراحل رو توضیح میدم ببینید من هیچ تنظیمی روی نقشه انجام ندادم مثل اسکیل و غیره فقط نقشه خودم رو اپن کردم و شروع به کارکردم باید تنظیم خواصی کنمش؟ سوالی دارم این اسکیل نقشهه رو میدونی چطورین برحسب متره کیلومتره موندم خودم برای این مورد یه راهنمایی میکنید اول رسم قوسها بود تو نقطهCیه قوس دایره ای رو ترسیم کردم با شعاع25نمیدونم متر هست یا نه.میشه شعاع رو همینطوری داد یا قانون داره تو نقال اتصالBاول یه قوس مرکب از کلتویید و دایره ای با درجه خودش31درجه و ابتدا و انتهای10 رسم کردم و تو نقطهDهم همین قوس رو به درجه44و ابتدا و انتهای15 رسم کردم اینا رو هیچ کدوم رو محاسبه نکردم باید اعدادی که داده میشه رو محاسبه کنم یا فرقی نداره؟ چطوری میتونم سرعت طرح دور وضریب اصطکاک رو برای این قوس اعمال کنم؟ بعدش طول کل مسیر رو بدست اوردم و مسیررو 20تا20تقسیم کردم درادامه هم عرض سواره رو وعرض شونه راه و حریم راه رو دادم که مسیر رو ترسیم کرد. تااینجا درمورد اینا یه توضیحی میدین درمورد اعدادی که برای قوس دادم درست هست یا نه محاسبه داره یا نه؟ درادامه گفته که از گزینه پروفیل برای ترسیم پرفیل طولی و عرضی استفاده کنید اما برنامه من همچین گزینه ای نداره ببین این توضیح رو داده؟ نقل قول: 1-3 رسم پروفیل طولی براي رسم پروفیل طولی باید به قسمتCivil Design مراجعه کنیم .براي این کار روي منوي Menu Palettes-- Project کلیک کردهCivil Desingn را انتخاب می کنیم . مشاهده می شودکه منوهاي جدیدي اضافه می شوند . برای من اینطوری نبود جوردیگه ای زدم اصلا تو پروجکت همچین گزینه ای نبود میگه باید گزینه زیر بیاد هرکاری میکنم نمیاد نقل قول: پنجره ذیل باز می گردد . sample from surface --existing ground-- profile برای مشاهده این محتوا لطفاً ثبت نام کنید یا وارد شوید. ورود یا ثبت نام 2 لینک به دیدگاه
keyvan_m 112 مالک اشتراک گذاری ارسال شده در 17 بهمن، ۱۳۸۹ سلام رضا جان خوبی؟ رضای عزیز امکان دارد که پروژه بنده را نگاهی بیاندازید. با سپاس از شما منتظر شما هستم چون باید به استاد نشان دهم. 2 لینک به دیدگاه
Hidden 982 اشتراک گذاری ارسال شده در 9 اسفند، ۱۳۸۹ سلام دوستان. راستش یه پروژه دارم در رابطه با سقف های طاق ضربی و کامپوزیت برای همین نیاز به عکسهای اجرایی از این دو سقف دارم. طاق ضربی چون استفاده ازش کمتر شده یه خورده گیر اوردنش مشکل شده برا همین از دوستان خواستم اگه عکسی که از اجرای این دو سقف(خیز ،بتن ریزی و....)دارند برام بذارن و اگر کنارش یه توضیح کوچیک داشته باشه که اخرته تشکر:icon_redface: 1 لینک به دیدگاه
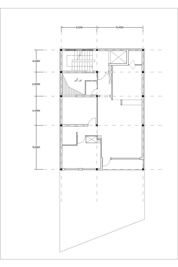
Archi 576 اشتراک گذاری ارسال شده در 28 فروردین، ۱۳۹۰ با سلام خدمت دوستان تالار عمران از شما برای بادبندهای این ساختمان راهنمایی میخواستم منتظر نظرات شما دوستان هستم ممنون 5 لینک به دیدگاه
Artaria 13629 اشتراک گذاری ارسال شده در 29 فروردین، ۱۳۹۰ با سلام خدمت دوستان تالار عمران از شما برای بادبندهای این ساختمان راهنمایی میخواستم منتظر نظرات شما دوستان هستم ممنون سلام من اول چنتا نکته درباره انتخاب نوع و محل بادبندا میگم بعد با توجه به اینا ببینیم کجای پلان برای بادبند مناسبه 1) از مهار بندی در دهانه های کوچک ( زیر 3 متر ) خودداری شود . 2) در قسمتهایی از پلان که موازی خیابان است و ساخمان در آن نواحی دارای بازشو است، بهتر است از مهاربندی استفاده نشود . 3) مهاربندها هرچه از وسط ساختمان دورتر باشند بهتر است . 4) مهاربندی های همگرا به دلیل شکل پذیری کم دیگر استفاده نمیشوند، و اگر استفاده شوند بهتر است به شکل 7 و 8 طرح و اجرا گردند . 5) اگر بتوان در طبقه همکف مهاربندی را گسترش داد، هم نیروی uplift خنثی میشود و هم پایداری سازه در برابر واژگونی تأمین میگردد. 6) از هماربندی های ضربدری حتی المقدور استفاده نشود. ( به دلیل گسیختگی در محل اتصال و در نهایت شکل پذیری کم) 7) مهاربندی ها بهتر است به شکل متقارن در پلان تعبیه شوند تا در ساختمان در اثر بارهای جانبی پیچش به وجود نیاید . 8) سیستمهای واگرا و همگرا هیچوقت در یک جهت با هم ترکیب نشوند . خب با توجه با این موارد : من برای این پلان در راستای شمالی- جنوبی دهانه های 45/3 متری سمت چپ و راست، و در راستای شرقی - غربی ، دهانه 45/5 متری در بالا و دهانه 21/4 متری ( در صورت استفاده از مهاربندی واگرا - بدلیل وجود بازشو) در پایین پیشنهاد میکنم. منتظر نظر بقیه دوستان هم هستیم 4 لینک به دیدگاه
Archi 576 اشتراک گذاری ارسال شده در 29 فروردین، ۱۳۹۰ سلام من اول چنتا نکته درباره انتخاب نوع و محل بادبندا میگم بعد با توجه به اینا ببینیم کجای پلان برای بادبند مناسبه 1) از مهار بندی در دهانه های کوچک ( زیر 3 متر ) خودداری شود . 2) در قسمتهایی از پلان که موازی خیابان است و ساخمان در آن نواحی دارای بازشو است، بهتر است از مهاربندی استفاده نشود . 3) مهاربندها هرچه از وسط ساختمان دورتر باشند بهتر است . 4) مهاربندی های همگرا به دلیل شکل پذیری کم دیگر استفاده نمیشوند، و اگر استفاده شوند بهتر است به شکل 7 و 8 طرح و اجرا گردند . 5) اگر بتوان در طبقه همکف مهاربندی را گسترش داد، هم نیروی uplift خنثی میشود و هم پایداری سازه در برابر واژگونی تأمین میگردد. 6) از هماربندی های ضربدری حتی المقدور استفاده نشود. ( به دلیل گسیختگی در محل اتصال و در نهایت شکل پذیری کم) 7) مهاربندی ها بهتر است به شکل متقارن در پلان تعبیه شوند تا در ساختمان در اثر بارهای جانبی پیچش به وجود نیاید . 8) سیستمهای واگرا و همگرا هیچوقت در یک جهت با هم ترکیب نشوند . خب با توجه با این موارد : من برای این پلان در راستای شمالی- جنوبی دهانه های 45/3 متری سمت چپ و راست، و در راستای شرقی - غربی ، دهانه 45/5 متری در بالا و دهانه 21/4 متری ( در صورت استفاده از مهاربندی واگرا - بدلیل وجود بازشو) در پایین پیشنهاد میکنم. منتظر نظر بقیه دوستان هم هستیم با سلام و تشکر بابت اطلاعات و نظراتت جواب این سوالها رو هم بدی ممنونت میشم... 1.منظورت از مهاربندی واگرا چیه؟ (آیا منظورت حالت قطریه یا ...) 2.شکل بادبندهای دیگه چطوری باشه؟ به من گفتن که بادبندهای 7 و 8 پیچش ایجاد میکنه و استفاده از اونا تو همدان ممنوع شده... در ضمن من با چند نفر که صحبت کردم گفتن بادبندهای ضربدری بهترین نوعند و حتما از اونا استفاده کنم اما خوب همونطوری که مشخصه من مشکل دارم و نمیتونم تو قسمت جنوبی پلان بادبند ضربدری بذارم...نظر شما چیه؟ از دوستان دیگه هم خواهش میکنم راهنمایی کنن... خیلی ممنون میشم... 3 لینک به دیدگاه
Artaria 13629 اشتراک گذاری ارسال شده در 29 فروردین، ۱۳۹۰ با سلام و تشکر بابت اطلاعات و نظراتتجواب این سوالها رو هم بدی ممنونت میشم... 1.منظورت از مهاربندی واگرا چیه؟ (آیا منظورت حالت قطریه یا ...) 2.شکل بادبندهای دیگه چطوری باشه؟ به من گفتن که بادبندهای 7 و 8 پیچش ایجاد میکنه و استفاده از اونا تو همدان ممنوع شده... در ضمن من با چند نفر که صحبت کردم گفتن بادبندهای ضربدری بهترین نوعند و حتما از اونا استفاده کنم اما خوب همونطوری که مشخصه من مشکل دارم و نمیتونم تو قسمت جنوبی پلان بادبند ضربدری بذارم...نظر شما چیه؟ از دوستان دیگه هم خواهش میکنم راهنمایی کنن... خیلی ممنون میشم... انواع سیستمهای واگرا : مهاربندی های 7 و 8 مهاربندیهای همگرا هستن و همونجوری که گفتم به دلیل شکل پذیری کم دیگه استفاده نمیشن، ولی اگه قرار باشه از این نوع بادبندها استفاده بشه بهتره یکی درمیون 7 و 8 اجرا شه (مث شکل زیر)، نه کلاً 7 یا 8 بادبندی های ضربدری هم بدلیل اینکه اغلب از محل اتصال بریده میشن شکل پذیری کمی از خودشون نشون میدن و در اغلب کشورهای پیشرفته دنیا هم دیگه اجرا نمیشن، بهترین نوع بادبند که در دهانه های دارای بازشو هم میتونه استفاده شه و شکل پذیری خوبی هم داره، مهاربندی های واگرا هستن. 3 لینک به دیدگاه
iman055 11 اشتراک گذاری ارسال شده در 6 اردیبهشت، ۱۳۹۰ اطلاعاتی در مورد این رشته؟! :icon_gol: 1 لینک به دیدگاه
Archi 576 اشتراک گذاری ارسال شده در 7 اردیبهشت، ۱۳۹۰ سلام به دوستان یه سوال دیگه: کدوم نوع بادبندها کلا تو ساختمانهای 4-5 طبقه به لحاظ سازه ای بهتر جواب میده؟ (واگرا یا همگرا) لینک به دیدگاه
الهی شیروان 11 اشتراک گذاری ارسال شده در 11 اردیبهشت، ۱۳۹۰ باسلام و خسته نباشید.لطفا یک سری عکس از اشکالاتی که در اجرای اسکلت های فولادی وجود دارد رو برای بنده بفرستید.مثلا اجرای نادرست ستون ها و یا ورق ها یا بادبندها و .... با تشکر 1 لینک به دیدگاه
khanom-mohandes 23 اشتراک گذاری ارسال شده در 26 اردیبهشت، ۱۳۹۰ سلام كسي هست كه بتونه حل المسائل ( حل التمرين ) كتاب " طراحي سازه هاي فولادي به روش ضريب بار و ضريب مقاومت ( lrfd ) " مولف: مك كورمك و ترجمه: دكتر فريدون ايراني رو برام گير بياره ؟ برام خيلي مهم هستش خواهش ميكنم اگه كسي طي 2 - 3 روز آينده , كمك درسيشو پيدا كرد لينكشو برام بذاره ممنون ميشم. با تشكر. 3 لینک به دیدگاه
ارسال های توصیه شده