رفتن به مطلب

بام عیسی مسیح House in Bom Jesus


ارسال های توصیه شده

ارسال شده در

House in Bom Jesus, Braga, Portugal (1989-1994) by Eduardo Souto de Moura

 

 

 

The house in the town of Bom Jesus, designed by Eduardo Souto de Moura expresses the architect’s exploration of the relation between modernism and

 

 

 

landscape. The building’s pure, concrete exterior surfaces are eloquently embellished with a subtle horizontal and vertical pattern resulting from the banding of the concrete surfaces.

Eduardo Souto de Moura is the 2011 Pritzker Architecture Prize laureate. Follow this link for more information regarding the Souto de Moura Pritzker Prize nomination.

00.jpg

 

01.jpg

 

02.jpg

  • Like 3
ارسال شده در

03.jpg

 

04.jpg

 

05.jpg

  • Like 2
ارسال شده در

Casa_Bom_Jesus_big.jpg

 

06.jpg

 

07.jpg

 

08.jpg

  • Like 2
ارسال شده در

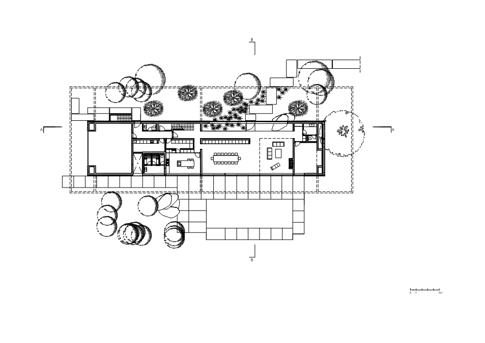
1320890367-general-plan-706x1000.png

 

1320890387-ground-floor-plan.png

 

1320890343-west-elevation-section.png

 

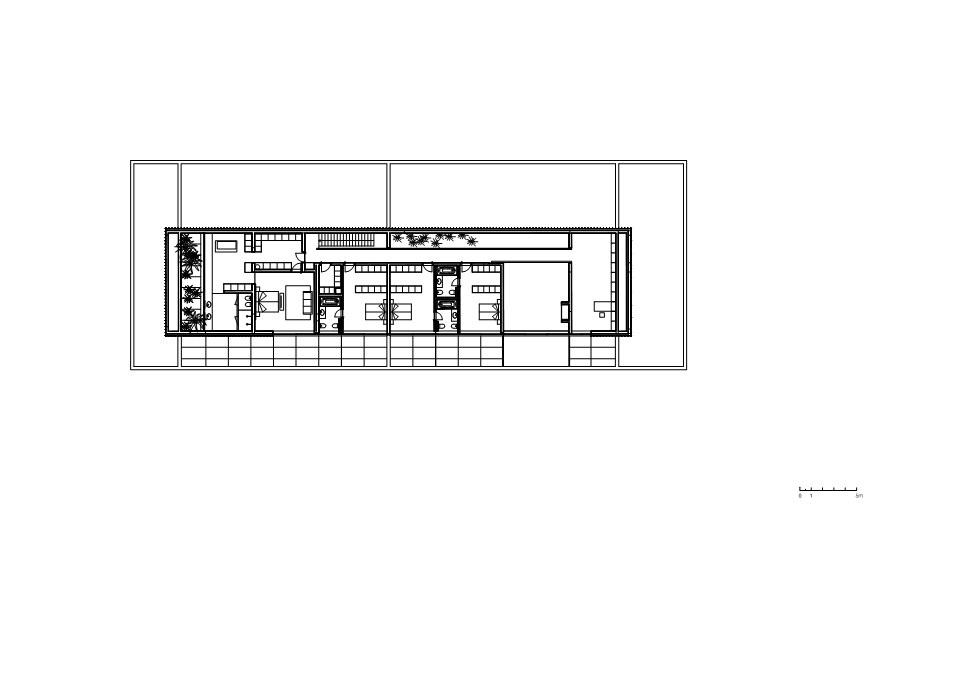
1320890415-upper-level-floor-plan.png

  • Like 2
ارسال شده در

1320890315-east-elevation-section.png

 

1320890276-south-elevation.png

 

1320890294-west-elevation.png

 

1320890458-section-b.png

 

1320890213-east-elevation.png

  • Like 2
×
×
  • اضافه کردن...