رفتن به مطلب

كاربرد طبقات شیب دار فروشگاه والتا...


ارسال های توصیه شده

ارسال شده در

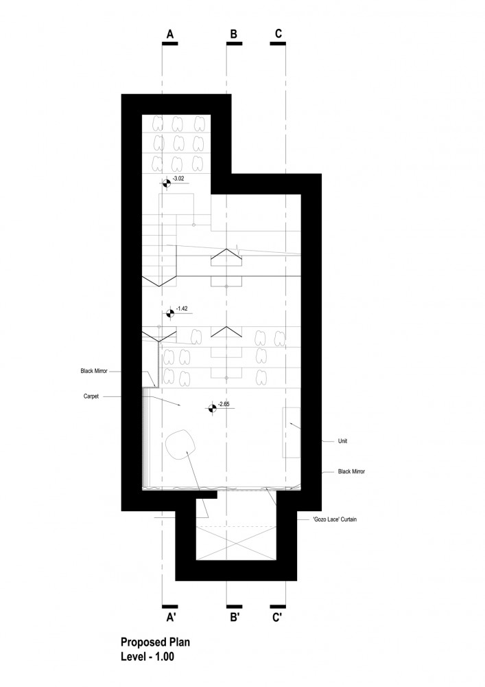
پروژه طراحی فروشگاه كفش در والتا (Valletta) از جمله پروژه های نوین معماری داخلی گروه Chris Briffa به شمار می رود كه با طراحی فانتزی خود توانسته گام مثبتی را جهت توسعه معماری داخلی در مراكز تجاری و بازرگانی بردارد.

 

این گروه معماری با كمترین فضای داخلی فروشگاه مورد نظر توانسته بیشترین بهره وری را به كاربران خود انتقال دادهو این فضای مستطیل شكل را با طراحی طبقات شیب دار عمودی به بهترین نحو ممكن به نمایش عموم بگذارد.

 

این نوع طراحی داخلی در حین آن كه از سنت معماری داخلی منطقه Malta پیروی می كند، دكوراسیون نوین را در خود جای داده كه نمی توان به آن بی توجه بود. در كنار پلكان های شیب دار و مورب این فروشگاه كفش، جعبه های عمودی و افقی كار گذاشته شده تا كاربردان بتوانند بیشترین وسایل و تجهیزات را در آن ها جای دهند.

 

1297788994-01-671x1000.jpg

 

1297789002-02-666x1000.jpg

 

1297789122-section01-1000x919.jpg

 

1297789010-03-677x1000.jpg

 

1297789020-04-1000x681.jpg

  • Like 3
ارسال شده در

1297789027-05-661x1000.jpg

 

1297789034-06-666x1000.jpg

 

1297789041-07-666x1000.jpg

 

1297789053-08-1000x704.jpg

 

1297789062-09-1000x666.jpg

 

 

  • Like 3
ارسال شده در

1297789219-4-plan-300-copy-707x1000.jpg

1297789210-3-plan-100-copy-707x1000.jpg

 

 

1297789192-1-plan--200-copy-707x1000.jpg

 

1297789115-drawings-900x1000.jpg

 

  • Like 2
×
×
  • اضافه کردن...