رفتن به مطلب

ارسال های توصیه شده

ارسال شده در

qbpsdlc4gtaw29eqef6.jpg

 

نام پروژه: انستیتو بین المللی مدیریت

معمار: Abin Design Studio

موقعیت بنا: هندوستان ، کلکته

زمان ساخت: 2010

 

انستیتوی بین المللی مدیریت نمونه ای موفق از آثار معماران نسل جدید هندوستان است.سرزمینی که در عین برخورداری از غنای فرهنگی و معماری سنتی، در پیشبرد اهداف منطقه گرایی و بومی سازی معماری مدرن نیز گام های موثری برداشته است.از نکات حائز اهمیت در این بنا شیوه ی متفاوت در برقراری پیوند میان ساختمان و زمینه ی آن می باشد.طبیعت که در هندوستان جلوه های متفاوتی داشته و الهام از آن و احترام به آن از ارکان اصلی باورهای فرهنگی و مذهبی هندو ها محسوب می شود در این بنا به شیوه ای خاص جلوه گر شده است.بخشی از ساختمان جداره ای پوشیده از شیشه های رنگی دارد که تمامی رنگ های به کار رفته در آن انعکاس رنگ های آسمان منطقه در مواقع مختلفی از روز می باشد.همچنین به گفته ی طراحان،شفافیت جداره ها تمثیلی از شفافیت ذهن دانشجویان نسل جوان هندوستان است.

vicaimi05vmeqd23df7.jpg

  • Like 6
  • پاسخ 48
  • ایجاد شد
  • آخرین پاسخ

بهترین ارسال کنندگان این موضوع

بهترین ارسال کنندگان این موضوع

ارسال شده در

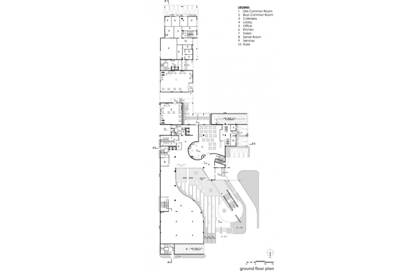
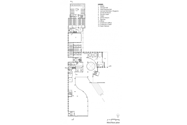
این پروژه توسط آبین چاندهوری موسس دفتر معماری ADS طراحی شده است.وی که فارغ التحصیل دانشکده معماری J.U در هندوستان می باشد مدتی در آکادمی Domus در ایتالیا به تحصیل در رشته طراحی صنعتی پرداخته و پس از برگشت به هندوستان دفتر شخصی خود را در سال 2005 تاسیس نمود.این دفتر با گسترش زمینه های فعالیت حرفه ای در گرایش های طراحی داخلی، طراحی صنعتی و گرافیک ، هم اکنون از فعال ترین دفاتر معماری هندوستان به شمار می رود و تاگنون موفق به شرکت در مسابقات مختلف و کسب جوایز معماری بسیاری گردیده است.ساختمان انستیتوی مدیریت مساحتی معادل 11 هزار متر مربع داشته و دفتر معماری ADS همزمان با طراحی آن مشغول به طراحی ساختمان اصلی انستیتو به زیر بنای 45 هزار متر مربع در شهر بهابانسوار نیز بوده است.

 

آنچه بر جذابیت نمای رنگی ساختمان می افزاید انجنای فرم این جداره است که توسط خطوط افقی به پنج نوار کشیده تقسیم شده و این امر به پویایی و سیالیت این جداره افزوده است.همچنین تفاوت فاحش میان ساختار جداره منحنی شکل با سایر قسمت های ساختمان که در آن ها از صفحات صلب و مشبک به رنگ سفید و سیاه استفاده گردیده بر اهمیت بصری جداره رنگی می افزاید.چناچه در تصاویر ارائه شده از فضاهای داخلی انستیتو مشاهده می شود بازی نور ، سایه و رنگ به واسطه انعکاس رنگارنگی از صفحات جداره در راهروهای ارتباطی نیز نمایان شده است.تاکید بر اهمیت رنگ ، علاوه بر نما در جداره های داخلی و حتی مبلمان بنا نیز دیده می شود.

j7lx9j8gr0s1lgbv66cm.jpg

 

ypw73ab1112pk0d9o873.jpg

 

nhdwscla36b74uq1r.jpg

  • Like 6
ارسال شده در

امروزه سعی در حفظ انرژی و رعایت استاندارد های معماری پایدار به عنوان اصلی ضروری در طراحی مورد توجه معماران می باشد.در این بنا نیز که در منطقه ای با آب و هوای گرم و خشک قرار دارد، سعی شده تا ضمن ترکیب عناصر تکنولوژیک و نیازهای زیبایی شناسانه ، اصول معماری پایدار نیز رعایت شوند.صفحات رنگی ، در حقیقت شیشه هایی دو جداره می باشند که پوشش رنگی در میانه ی آن ها بخش زیادی از تابش تند آفتاب را کنترل می نماید.همچنین فاصله ای به قطر 1.2 سانتیمتر در میان دو شیشه تعبیه شده تا این جداره نسبت به از دست رفتن انرژی حرارتی غایق باشد.برای خنک نمدن پیرامون ساختمان نیز استخری کوچک در کنجی از پلازای ورودی قرار گرفته که همواره سایه ساختمان بر آن بوده و نسیم خنکی که از میان ساختمان ها در حرکت است بر آن می وزد.سایت پروژه در بافتی مسکونی و پر تراکم قرار گرفته و تناسبات زمین ساختاری خطی را در پلان دیکته نموده است.با این وجود موفقیت پلان در بهره گیری از مزیتهای نظام خطی بسیار آموزنده می باشد.نحوه قرار گیری سالن ها و کلاس های آموزشی ، طراحی راهرو و مسیرهای ارتباطی ، نورگیری کلاس ها و محل مناسب قرار گیری باکس های ارتباط عمودی از جمله نکات قابل توجه در پلان می باشند.

a80tvdtpzpv09pik8b1.jpg

 

9uz6lsau3f8ofnbsx4lr.jpg

 

sw8zs6t3o43z92zxsmfb.jpg

 

m663cpf86mjyufls91gw.jpg

 

wstps2036ktr5u0htfmn.jpg

  • Like 5
ارسال شده در

fwi2d6mqi49l5znaww.jpg

 

d1vf5c2o5d4c1jmo0tr.jpg

 

heifx5gwjcr1a88dho0r.jpg

 

qx8u6tfv1jkm6z4d2nj.jpg

 

szdtishkt69zq11o39m.jpg

  • Like 5
ارسال شده در

d15oc15hsnry7jhakjbi.jpg

 

bj446ejh77v9zwsrqjx8.jpg

 

e55bnvel9zg68laq005a.jpg

 

bqvwh8fxdv1j6o09wcqc.jpg

 

jhg3u7x2c8bz3kt929zo.jpg

  • Like 6
  • 1 سال بعد...
ارسال شده در

r0fak88y8qq7wv3a42.jpg

 

نام پروژه: مرکز مطالعات نجوم و اخترشناسی کهیل

معمار: تام ماین

موقعیت بنا: آمریکا،پاسادنا

زمان ساخت: 2009

 

تام ماین در مصاحبه ای معماری خود را با معماری ریچارد مه یر مقایسه کرده و اظهار می کند که سبک معماری معمارانی همچون مه یر حول یک ایده مرکزی سامان می یابد،در حالی که معماری نسل وی به چیزی کاملا متفاوت باور داشته و احساس قرابت عجیبی با زیست شناسی،اکولوژی و پیچدگی های نظریه ی آشوب - به طور کلی سیستم های درهم تنیدگی و برهم کنش های چند گانه - دارد و در ادامه نتیجه می گیرد که در معماری وی مناسبات بین چیزها مهم بوده و خود چیزها و ذات آن ها در اولویت بعدی قرار دارند.پیچیدگی در هر یک از آثار تام ماین به شکلی خاص بروز کرده و مخاطب را درگیر اندیشه های طراح می کند.چه این اثر خانه ای ویلایی باشد وچه مرکزی برای مطالعات نجوم و اخترشناسی؛مرکزی که رنگ سرخ جداره ها و شکست ها و خراش های جداره هایش در نگاه اول نظر مخاطب را به خود جلب می کند.

 

دفتر معماری مورفوسیس که در سال 1972 توسط تام مین تاسیس شد سابقه ای درخشان در طراحی فضاهای آموزشی دارد.هر چند در تمامی این آثارفرم و ظاهر ساختمان به دلیل نوآوری در طراحی جداره ها جلب توجه می کند اما از نظر بسیاری از منتقدین این پیچیدگی در ذات ساختمان نفوذ کرده و بیش از هر کس بر مخاطبین اصلی پروژه تاثیر می گذارد.به نظر می رسد در ورای ظاهر کالبدی این آثار سخن یا اندیشه هایی از معمار نهفته است که لزوما در خصوص معماری نمی باشند.آثار دفتر موفوسیس نمایانگر تفکر نسلی از معماران و هنرمندان آمریکایی است که معماری را محدود به یافتن پاسخ هایی برای فرم یا عملکرد نمی دانند و همانطور که تام ماین ذکر می کند؛معماری منتقدانه ی او درصدد است تا بر مساله خاصی،متفاوت و جدا از معماری رایج،هنجار و نرمال،متمرکز شود.نفس توسعه مرزهای معماری به تعاملات و هنجارهای اجتماعی است.که موجب می شود معمارانی چون تام ماین،رم کولهاس،هرزوگ و بسیاری دیگر از معماران نسل جوان خود را در قبال رخدادهای فرهنگی،هنری و اجتماعی مسئول دانسته و نقش معماری را در ایجاد تحول در تمامی عرصه های ذکر شده پر رنگ سازند.

wyle6o16brddy7rhil.jpg

 

9iwe05zkefmz5n4awxl0.jpg

  • Like 3
ارسال شده در

با این وجود همواره سایه ی نقدهایی تند و تیز بر آثار تام ماین سایه انداخته و فراز و نشیب های حرفه ای وی زیر نظر منتقدین بوده است.ساختمان مرکز مطالعات نجوم نیز از این قاعده مستثنی نبوده و انتقادهای بسیاری خصوصا با ساختار پلان فضاهای داخلی ساختمان مطرح شده است.ساختاری که در آن همه فضاها متناسب با محل و عملکردشان طراحی شده اند به حز پلکانی که نقطه شاخص طرح می باشد.این حجم عمودی همچون شهاب سنگی که از آسمان افتاده باشد با ساختمان تداخل کرده و به نظر می رسد آن را سوراخ نمده است.

 

در حقیقت این حجم نورگیری است که دارای سطحی شیب دار بوده و نور را به طور کامل به داخل هدایت می کند.تنیجه اینکه بنا همچون تلسکوپی به نظر می رسد که علاوه بر برقراری پیوند میان آسمان و زمین،باعث پیوند انسان ها نیز می شود.خطوط پنجره ها و بازشوهای نما نور را به گونه ای به داخل هدایت می کنند که در ترکیب با سایر نورهای تایید شده جداره ها و عناصر معماری را شاخص تر می سازند.چناچه در تصاویر مشاهده می شود جداره های تراز همکف ساختمان اندکی عقب نشسته و توده قرمز رنگ بر فراز زمین معلق به نظر می رسد.تمامی لابراتورها در تراز زیرزمین مستقر شده و در طبقه همکف علاوه بر سرسرای ورودی و پلکان اصلی،کتابخانه و سالن آمفی تئاتر به همراه تعدادی از کلاس ها و فضاهای اداری قرار گرفته اند.تام ماین در سال 2005 موفق با کسب جایزه پرایتزکر گردید.جایزه ای که از آن به عنوان نوبل معماری نیز یاد می کنند.وی هم اکنون علاوه بر مدیریت دفتر معماری مورفوسیس دارای کرسی استادی در دانشگاه UCLA نیز می باشد.

fyr7mb63y433ds785eg.jpg

 

012trbeo8am7zs86q7v.jpg

 

x5w34i1dpqkblzr59lb.jpg

  • Like 1
ارسال شده در

mo7cq7ayzmpejiu9cbju.jpg

 

xjyd8zabjpyejb12zhrn.jpg

 

x4khf3m7v9hpcnh2d8bc.jpg

  • Like 1
ارسال شده در

aes33sqr4egbyfmewn27.jpg

 

7t5hz6vg3a87yr1g4vt1.jpg

 

2ny8mtyzh9w60wtbil0k.jpg

  • Like 2
ارسال شده در

p9ehwppdms2nx2ib7dsu.jpg

 

arkpulnnf2x3x3mmimvn.jpg

 

3nci340cwjwlpobkwr3i.jpg

 

rttcsa3mn67avnlp08a.jpg

  • Like 3
  • 2 ماه بعد...
ارسال شده در

4ecgi4cophxuh3xroau.jpg

 

نام پروژه: دبستان جرارد مولینا

معمار: جیانکارلو مازانتی

موقعیت بنا: کلمبیا - بوگوتا

زمان ساخت: 2008

 

 

دبستان جرارد مولینا نیز همچون دیگر آثار جیانکارلو مازانتی از توقعات و محدودیت های برنامه فیزیکی فراتر رفته است.این ساختمان با ایفای نقشی تاثیر گذار در مقیاس شهری به عنوان مرکزی برای برخوردهای روزانه شهروندان و استفاده از امکانات دبستان نظیر کتابخانه،تریا و فضای سبز به عنصری فعال و سازنده در بافت شهری تبدیل شده است،عنصری که نه تنها کودکان،بلکه تمامی ساکنین محله از وجود آن بهره برده و می توانند آرادانه از مرزهای نامشخص ساختمان عبور کنند.به همین دلیل است که پیرامون سایت دیواری وجود نداشته و تنها کمربندی از فضای سبز و راهروهایی سرپوشیده مرز میان ساختمان و شهر را مشخص می نمایند.مازانتی - آثار وی الگوهای مناسبی برای معماری مردم وار محسوب می شوند - به خوبی نیازهای منطقه را درک نموده و از معماری به عنوان ابزاری برای ارتقا فرهنگ و تعاملات اجتماعی شهروندانی تنگدست استفاده نموده است.

 

ساختمان که در میان انبوهی از خانه های کوچک و ردیف هایی از مجتمع های مسکونی اقشار کم درآمد قرار دارد،همچون نواری پهن و یک طبقه،اندکی از زمین فاصله گرفته و در سایت حلقه زده است.بدین ترتیب حیاطی مرکزی و محصور برای فضاهای تجمع و زمین های ورزشی روباز کودکان در مرکز سایت به وجود آمده است.ساختمان در عین دعوت کنندگی و گشودگی به سمت شهر،ساختاری درون گرا داشته و تاجای امکان هیاهوی فضای بازی کودکان را از شهر دور می سازد.در فضای خالی میان ابتدا و انتهای این نوار ورودی اصلی مجموعه تعریف شده است.راهروی ارتباطی طویلی تمامی فضاهای موجود در این زنجیره را به یکدیگر پیوند می زند.در هشت نقطه از این نوار مسطح،خاکستری رنگ و بتنی،مکعب های دو طبقه و سیاه رنگ جلب توجه می کنند که در طبقات دوم آن ها فضاهای استراحت آموزگاران،اتاق های اداری و برخی از کلاس های خاص قرار گرفته اند.

zzqopfftbvsleb8c6h8.jpg

 

v4vqe04xm2d9t2f6stn.jpg

 

vq8g48lt9dnpfun1lhd.jpg

 

udqr4l0afbl2m96ewqzc.jpg

  • Like 3
ارسال شده در

با اندکی دقت در پلان ساختمان که گردش هایی با زوایایی نامشخص داشته و با ستختاری سیال و پویا در سایت گسترده شده است می توان به تکرار مدول های ساختمانی تشکیل دهنده در مجموعه پی برد.ساختار مدولار دبستان متشکل از ده مدول کوچک است که هر یک از مجموعه ها شامل دو کلاس متصل به یکدیگر،یک کلاس مجزا و فضایی ارتباطی میان آنها تشکیل شده است.آنچه این ساختار را از نظر پنهان می کند چرخشهای مدول ها و مفصل هایی است که آن ها را به یکدیگر متصل ساخته اند.

 

این مفصل ها راهروهایی سرپوشیده و غالبا مثلثی شکل می باشند که با یکدیگر ترکیب شده و ضمن ایجاد چرخش های فرم ساختمان،فضای ارتباطی میان دو مدول را به یکدیگر متصل می سازند.تمامی فضاهای ارتباطی توسط جداره ای نیمه باز از نرده های چوبی محصور شذه اند که دید از راهرو به حیاط مرکزی و همچنین ارتباط بصری با شهر را در محل مفصل ها و فواصل میان کلاس ها ممکن می سازند.

 

تنها در د. بخش ابتدایی و انتهایی این زنجیره است که دو ساختمان خارج از مدول های تکراری کلاس ها طراحی شده اند.نخست ساختمانی دو طبقه که در طبقه همکف آن سالن آشپزخانه،غذاخوری و تریای مجموعه و در طبقه دوم آن سالن همایش قرار دارد.این ساختمان بزرگترین فضای سرپوشیده مجموعه محسوب می شود ساختمان دیگر نیز تعداد نه کلاس درس،هال تقسیمی وسیع و سرویس های بهداشتی را در خود جای داده است.دربخش هایی از بام این دو ساختمان حفره هایی دایره ای شکل ایجاد شده است که نور طبیعی را به فضاهای تجمع منتقل می کندرنگ های گرم نظیر نارنجی و قهوه ای که مشابه رنگ خاک رس منطقه بوده و در پیاده روها و نمای ساختمان های پیرامون دبستان نیز به چشم می خورد،در بازشوهای ساختمان حضوری پر رنگ داشته و در میان بافت آجری مکعب های تیره رنگ و حتی در کفپوش محوطه نیز وجود دارد.

k4t6qaywcagauvyklbr4.jpg

 

cn2tp02g85hh76uz92t.jpg

 

c3482vw62ptucdrkltag.jpg

 

p54l43bm7jrz46620kzf.jpg

 

y9eoeyf0f1g5z7918w7.jpg

  • Like 3
ارسال شده در

xvd254yey4s611728qxq.jpg

 

89ef86h3aeyenjw4usk3.jpg

 

ldo855efsjkppo4vuxqp.jpg

 

7uo0bl3vljhqdqwt5isa.jpg

 

rn74rt6addaief8mgysc.jpg

  • Like 4
  • 1 ماه بعد...
ارسال شده در

rzc9ghenhuilz2xn9vw2.jpg

 

 

نام پروژه:دانشگاه زنان اِوها

معمار:دومینیک پرولت

موقعیت بنا: کره جنوبی،سئول

زمان ساخت:2008

 

دانشگاه تک جنسیتی "اوها" در سئول بزرگترین و معتبرترین مرکز آموزشی زنان در جهان است.این مرکز آموزشی در سال 1886 و تنها با یک دانشجو تاسیس گردید،پس از سال ها تلاش در سال 1925 به عنوان کالج و در سال 1945 به عنوان نخستین دانشگاه رسمی در کره جنوبی به ثبت رسید.امروزه این دانشگاه معتبرترین مرکز آموزشی زنان در آسیا بوده و در میان 170 هزار دانشجوی این دانشگاه،نام بسیاری از مشاهیر ملی کره جنوبی نظیر نخستین زن کره ای که موفق به کسب مدرک دکتری گردید،نخستین قاضی زن و تنها نخست وزیر زن این کشور به چشم می خورد.

z0c2kg8pabf5aqyy0.jpg

 

60kcr7qgcxulomypjxx2.jpg

 

lyci98t7zzdzz9izt0mk.jpg

 

 

  • Like 3
ارسال شده در

طراحی ساختمان جدید این دانشگاه به منظور تحصیل 20000 هزار دانشجو،در سال 2004به مسابقه گذاشته شد که در طی آن طرح پیشنهادی "دومینیک پرولت" ،معمار صاحب نام فرانسوی به عنوان طرح برنده اعلام گردید.عملیات اخداث این ساختمان در سال 2008 به اتمام رسیده و از آن بهره برداری گردید.طرح خلاقانه ی معمار ضمن معرفی دیدگاهی متفاوت به فضاهای آموزشی نهایت بهره را از موقعیت و شیب زمین برده و ساختمان را در سطح زیرین فضای سبزی وسیع پنهان می کند.در این پارک شهری که بر روی بام بخش اصلی ساختمان دانشگاه قرار دارد مسیرهای تردد پیاده با شیبی نلایم طراحی شده اند.بدین ترتیب علاوه بر دعوت عموم برای حضور در فضای دانشگاه،این پارک به محلی برای اوقات فراغت دانشجویان تبدیل شده و در عین حال دید به فضاهای آموزشی داخل ساختمان را نیز ممکن می سازد.

zl7k9j51x9vpfvg01wm.jpg

 

3ekpi2dm4n5nb3be70no.jpg

 

bw6ftkbu6va206empv.jpg

  • Like 4
ارسال شده در

کانسپت طرح و ایده های فضایی "دومینیک پرولت" در این بنا نیز همچون کتابخانه ملی فرانسه در پاریس بسیار شفاف و در عین حال آبستره می باشند.در مرکز سایت آکس طراحی وسیعی طراحی شده است که از فضای پیرامون میدان مقابل دانشگاه آغاز شده و همچون خطی مستقیم دانشگاه را می شکافند.در مرکز این مسیر،فضای تجمع و حیاطی مسطح وجود دارد که پیش فضای مقابل ورودی اصلی دانشگاه را تعریف می کند.نیمه دیگر به پلکانی عریض و شاخص اختصاص یافته که دسترسی به سایت را از ترازی بالاتر در جبهه پشتی ممکن می سازد.تناسبات پله ها به نحوی است که این فضای نیمه محصور را به فضای تجمعی در قلب دانشگاه تبدیل کرده و در بسیاری از مواقع از آن به عنوان آمفی تئاتر روباز استفاده می شود.

 

ky06i56dmu781dqce.jpg

 

yue5n5telhfaom7holj.jpg

 

hqyklbkequ02mgga157.jpg

  • Like 4
ارسال شده در

در زیر این پلکان بخش وسیعی از فضاخای داخلی نظیر آمفی تئاتر اصلی دانشگاه قرار دارد.جداره های این آکس تماما شیشه بوده و نور طبیعی را به داخل فضاهای آموزشی،راهروهای ارتباطی و ویدهای داخل ساختمان منتقل می کنند.آنچه بسیار جالب توجه است،روشنایی جداره های این آکس در شب است که این فضا را به خطی از نور تبدیل کرده و به واسطه انعکاس روشنایی داخل ساختمان بر فریم های فلزی و براق جداره،فضایی رویاییی و ریبا را در معرض دید و تجربه دانشجویان و شهروندان می گذارد.بدین ترتیب پیوندی ارگانیک و عمیق میان پروژه با سیات و زمینه شهری برقرار شده و نه تنها ساختمان در تراز بالایی به عنوان پارک و فضای سبز شهری به نظر می رسد،بلکه از آن به عنوان محل عبور و مرور،تجمع و تعاملات روزانه نیز استفاده می شود.

 

y3n07e9gz4pf0qd.jpg

 

egpz0kvxiq3hmz4cmpd.jpg

 

gfe0iemvg5kpeyf17zgk.jpg

  • Like 4
ارسال شده در

چناچه در مقاطع عرضی ساختمان مشاهده می شود بخش انتهایی بنا ارتفاعی معادل با شش طبقه داشته و در تراز زیرزمین ضمن پیوند دو ساختمان اصلی مستقل به یکدیگر از تمامی مساحت سایت استفاده شده است.در این طبقات علاوه بربخش های اداری،کلاس های درس و سالن های سمینار و جلسات،فضاهای جنبی متنوعی نظیر کتابخانه ،دو سالن سینما،سالن های ورزشی،فروشگاه های تجاری و پارکینگی به مساحت 20 هزار متر مربع در زیر بام سبز دانشگاه قرار گرفته اند.علاوه بر آکس مرکزی،ورود به فضای داخلی از ورودی های فرعی در جداره های خارجی ساختمان ممکن بوده و آسانسورهایی نیز برای ورود مستقیم دانشجویان و معلولان تعبیه شده اند.

1fwkq32v5mrv3mro927.jpg

 

3xyk1373te0u6u5kibd.jpg

 

lh8jrxa0d13wjq23bqte.jpg

  • Like 5
ارسال شده در

i84dpi055ehtztkfs.jpg

 

lbdv60g79cmnut0t19nf.jpg

 

7ud3y1w25jhqv1rziiex.jpg

  • Like 4
ارسال شده در

xmsosfb1h2xyp62goj12.jpg

 

mz6khj47101vyh79ulg.jpg

 

6jso5unfondr4g2t15c0.jpg

  • Like 4

×
×
  • اضافه کردن...