رفتن به مطلب

طراحی هتل


Bahram Sh مهمان

ارسال های توصیه شده

Bahram Sh مهمان
ارسال شده در

سلام و درود بر تمام دوستان .

در زیر کار طراحی هتل خودم را قرار دادم. لطفا نظرات خودتان را بیان کنید.

 

طراحی هتل 5 ستاره

 

هتل بنایی چند عملکردی و دارای اهمیت بسیار است، که باید به صورت دقیق طراحی و اجرا گردد. برای رسیدن به این هدف، مطالعات پروژه مذکور را در پنج قست مرتبط با یکدیگر انجام دادم . این پنج قسمت عبارتند از واکاوی و موشکافی واژگان کلیدی پروژه، تحلیل دقیق سایت، بررسی نمونه موردی ها، تبیین و تعیین کانسپت ها و ایده ها و حوزه بندی فضا ها.

واژگان کلیدی: این واژگان، کلامات و عباراتی هستند که در دل عنوان پروژه قرار دارند، و ما به کمک همین کلمات کانسپ های پروژه تعیین و تبیین می کنیم. در زیر به این واژگان اشاره خواهیم کرد.

 

کلمات کليدی:

  • هتل ... اقامت گزیدن، ایجاد خاطره، فروشگاه، گالری و تفریح
  • پنج ستاره ... یک سری ضوابط و استاندارد ها برای واجد شرایط بودن
  • بوشهر ... اقلیم مردم ساکن بافت قدیم بوشهر

اقلیم:

١. آب و هوای گرم و خشک یا آب و هوای گرم و مطلوب

2. آفتاب نسبتاً شدید

3. نه ماه در سال تقریباً گرم

4. باد نسبتاً مطلوب در برخی زمان های سال ....به وسیله فرم بنا (ایجاد کردن کوران از طریق آن) می توان باد مطلوب را در جهت تأمین آسایش ساکنین و استفاده کنندگان به کار برد.

5. نزدیکی به خط استوا ... به دلیل نزدیکی سایت پروژه به خط استوا، آفتاب به حالت عمود تابیده می شود.

 

کانسپت پروژه: همان طور که در بالا اشاره کردیم . مفاهیم نهفته در عنوان پروژه و بستر طبیعی ما را در انتخاب مفاهیم و کانسپت های پروژه یاری می کنند. کانسپت های پروژه به شرح زیر می باشند:

 

1. طبعیت فرم بنا از خطوط سایت برای درگیری بصری بیشتر ناظر با فرن بنا.... من برای رسیدن به این کانسپت از ایده چرخش بنا در ارتفاع استفاده کردم که منبع الهام من فرم موجود در بافت قدیم بوشهر بود. در زیر چرخش بنا در سایت پروژه را مشاهده می کنید.

در قسمت چپ سایت چرخش بنا برای طبعیت با سایت را مشاهده می کنید (عکس شماره 2)

 

plh01j1357nkq8qiv40k.jpg

 

عکس شماره 1

 

j9qh4ae2hxevshfkol3e.jpg

 

 

 

 

 

 

 

 

 

 

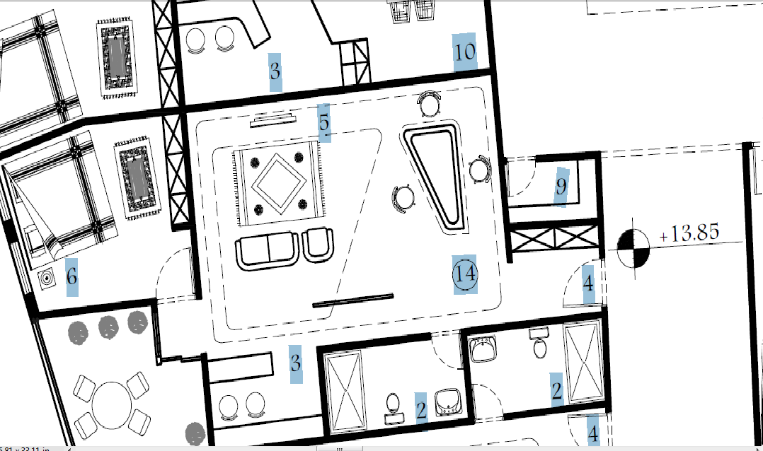
2. ایجاد کوران باد در بنا: برای رسیدن به این عملکرد دو دریچه برای ایجاد کوران در بنا تعبیه شده است. (با فلش قهوه ای در پلان شماره 1 مشخص شده اند. )

 

lvc18u8p9bxqh2qsq1rf.png

 

 

 

3. ورود فضای سبز به داخل بنا .

 

 

 

 

 

..........................................................................................................................................

- با عرض پوزش قسمت مربوط به نمونه موردی ها هنوز به صورت فایل ورد در نیامده. ان شالله به زودی آن را هم قرار می دهم. در پست های آینده کل پروژه قرار داده می شود... لطفا نظرات خودتان را بیان کنید.:icon_gol:

Bahram Sh مهمان
ارسال شده در

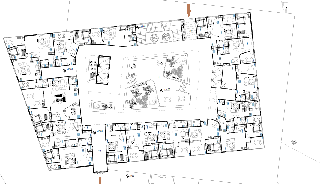
حوزه بندی فضا ها :

  • قسمت صورتی ...حوزه تجاری
  • قسمت سفید.... اداری - تفریحی
  • قسمت خاکستری ... حوزه اقامتی (عادری)
  • قسمت قرمز.... حوزه اقامتی خاص

 

 

 

 

 

06eog3f9agme2tggg6.jpg

 

 

 

8zdxqo9mcikcpxpdv85p.jpg

Bahram Sh مهمان
ارسال شده در

ارتباط های عمودی بنا:

(آسانسور و راه پله)

 

1te0gapt6qgcd64p8xt.jpg

 

Bahram Sh مهمان
ارسال شده در

پرسپکتیو های خارجیi1ejv86gumq8ehl4suh.jpg

 

 

 

 

 

nll4rtdflcvektdp96.jpg

 

 

 

 

 

f6ctats3aagbgxu1r3b6.jpg

 

 

 

Bahram Sh مهمان
ارسال شده در

fdwmtmbbh7rrqniveg1.jpg

 

 

 

 

 

 

 

 

 

cld5cd248bg62wh5e8f.jpg

 

 

 

 

 

 

 

 

 

 

t29ex4io6oist2myouk.jpg

Bahram Sh مهمان
ارسال شده در

1nni7ogobkszcv1816wa.jpg

 

 

 

 

 

oxox0zp09mdvgmsvhowg.jpg

 

 

 

 

 

 

 

 

 

 

 

 

 

 

 

 

 

 

 

 

 

hmrhdm4ygkud88t16b2.jpg

Bahram Sh مهمان
ارسال شده در

نمای غربی (اصلی)

 

 

zu4k2biptzs5b8yjqq14.jpg

 

 

نمای شمالی

 

 

y7oafo99cmj8g3bjx5o6.jpg

Bahram Sh مهمان
ارسال شده در

ورودی اصلی بنا

 

1rwi0cmfg6s7qpy8y7.jpg

 

 

 

 

 

 

 

گودال باغچه

 

 

jwtl4wfotg0jl39mi21r.jpg

Bahram Sh مهمان
ارسال شده در

پلان طبقه سوم

 

 

 

lvc18u8p9bxqh2qsq1rf.png

 

 

 

 

 

 

حیاط در ارتفاع :

156uspc10jxq9he0jkv9.png

 

 

 

 

 

 

 

سوئیت تیپ 1:

 

 

 

1a4vl8ue9q4i9vwlr31e.png

 

 

Bahram Sh مهمان
ارسال شده در

3e6rt9lbqsxwd5vvxxgc.png

 

 

 

 

 

 

 

 

yh14792lp9nqotvhekv.png

Bahram Sh مهمان
ارسال شده در
15zuwvzt8fx6i6tz96ky.png
* v e n o o s * مهمان
ارسال شده در

سلاااام سلااااام,:62izy85:

 

خسته نباشید ؛خیلییییی خیلییی عالیه شده؛

 

استفاده از گودال باغچه و جریان هوا و.... خیلییی خوببهههههه:2eaoapgxehimkak1y7e

 

 

فقط چند تا سوال ,

 

1- لابی و پذیرش کجاست ؟

من برای رسیدن به این کانسپت از ایده چرخش بنا در ارتفاع استفاده کردم که منبع الهام من فرم موجود در بافت قدیم بوشهر بود.

2- یعنی چطوری بافت قدیم چرخش داشته ؟

 

3- این قسمتایی که کنسول شده؛ اجرایی میشه ؟ ما تو کارامون بیش از 2 متر نمیذارن کنسول کنیم :sigh:

 

 

خوشبحالتون, چون سقفش مسطحه؛حجم قشنگی هم زدید,خیلی شبیه هتل شده؛ اما کار ما هر کاری کنیم چون شیبداره خیلی خوب نمیشه؛:sigh:

Bahram Sh مهمان
ارسال شده در
سلاااام سلااااام,:62izy85:

 

خسته نباشید ؛خیلییییی خیلییی عالیه شده؛

 

استفاده از گودال باغچه و جریان هوا و.... خیلییی خوببهههههه:2eaoapgxehimkak1y7e

 

 

فقط چند تا سوال ,

 

1- لابی و پذیرش کجاست ؟

 

2- یعنی چطوری بافت قدیم چرخش داشته ؟

 

3- این قسمتایی که کنسول شده؛ اجرایی میشه ؟ ما تو کارامون بیش از 2 متر نمیذارن کنسول کنیم :sigh:

 

 

خوشبحالتون, چون سقفش مسطحه؛حجم قشنگی هم زدید,خیلی شبیه هتل شده؛ اما کار ما هر کاری کنیم چون شیبداره خیلی خوب نمیشه؛:sigh:

مرسی . لطف داری.

1. به علت کمی وقت کل پلان ها رو نذاشتم . در کوتاه ترین زمان ممکن، کل پلان ها را قرار می دهد.. جتی با توضیحات بیشتر... این فقط پلان طبقه سوم هست...

2. در بافت قدیم بوشهر برای از بین بردن شکستگی های سایت در ارتفاع و ایجاد حجم خالص و بی ابهام در طبقات فوقانی معمولا حجم بنا را می چرخنداند. البته این کار من کمی اغراق آمیز تر بود ولی دلیلش شکست زیاد سایتمه که در سایت پلان مشخصه.

3. کنسول تا مرز 100 متر و آن هم در ارتفاع نزدیکه 150 متری زمین در بنای cctv انجام شده.... کنسول بنای من فقط 20 متر هست که با سیستمه سازه ای خرپایی و تونل های سازه ای قابل اجرا هست... البته استاد ایراد گرفت ازم و گفت ... تو بدیت اینه که از ستون می ترسی... البته من کنسول کردن بنا برای ایجاد یک سری فضا های نیمه باز از شاخضه های کارمه. برای همین کمی روی این موضوع تاکید زیاد دارم.

مرسی که نظرتو گفتی . ایشالله حجم زیبایی طراحی کنی ...:icon_gol::icon_gol:

ارسال شده در

خسته نباشی ابراهیم جان

حجم کارت خیلی خوب شده به مشخصات یه هتل می خوره

چرخش هاتم حجمتو جون دار کرده

رو جزئیات و مصالح کارت می تونستی بیشتر کار کنی

 

اتاق هاتون فقط به صورت سوئیت طراحی شده؟؟ اتاق یک، دو یا سه خوابه ندارین؟؟

 

سوال بعدیمم در مورد سایتتونه، نشونه های سایت یه هتل رو نداره، محل پارکینگ نداره؟ یا محلی برای نگه داشتن تاکسی یا اتوبوس برای خالی شدن مسافرا

  • Like 7
ارسال شده در

باباااااااااااااااااااااااااااااااااااا كارت درسته:a030:

  • Like 3
ارسال شده در

کلیت کارتون زیباست.

درسته کنسول هاش زیاد میشه اما قابلیت اجرایی هم داره. این نکته ایه که خیلی از دانشجوها بهش فک نمیکنن.

البته اگه طرح واسه جایی فراتر از ایران باشه هر فرمی قابلیت اجرایی اش رو پیدا میکنه اما تو ایران ....

 

اما در مورد حجمتون و نماهایی که زدید. درمورد ساختمونهایی که به صورت مکعبی شکل میگیرن خیلی زیباتر میشه نماهاش رو شکل داد تا از حالت یکنواختی و سطوح مشبک خالص بیرون بیاد.

درسته تو حجمتون مکعبها رو روی هم چرخوندید اما هر کدوم از این مکعیبهای چرخیده شده رو میشد با بازی نور و ایجاد فضاهای پر و خالی متنوع ترشون کرد.

 

اما در کل ممنون. طرحتون عالی بوده.:a030:

موفق باشی

  • Like 6
Bahram Sh مهمان
ارسال شده در
خسته نباشی ابراهیم جان

حجم کارت خیلی خوب شده به مشخصات یه هتل می خوره

چرخش هاتم حجمتو جون دار کرده

رو جزئیات و مصالح کارت می تونستی بیشتر کار کنی

 

اتاق هاتون فقط به صورت سوئیت طراحی شده؟؟ اتاق یک، دو یا سه خوابه ندارین؟؟

 

سوال بعدیمم در مورد سایتتونه، نشونه های سایت یه هتل رو نداره، محل پارکینگ نداره؟ یا محلی برای نگه داشتن تاکسی یا اتوبوس برای خالی شدن مسافرا

 

الان یکی دیگه از بچه های یونی نشسته می گه ... این نما ها را تو چرا همین جوری زدی...

واقعیت شو بگم . نما هام خیلی بد شد. قبول دارم حجمم خوبه ولی نما هام بد شده.

واقعا نما کم کار و ضعیف با ریتم هایی که باعث شده کار به بیراهه رود.. ولی دو الگو در کل کار هام در نما ها وجود داره.. من چون الهاماتم از بافت بوشهر هست . ریتم پنجره هام ریتم های موسیقی هستند. ولی یکنواختی خوبی وجود ندارد. از هتل بودن پروژه خارج شده و به سمت مسکونی سوق پیدا کرده.

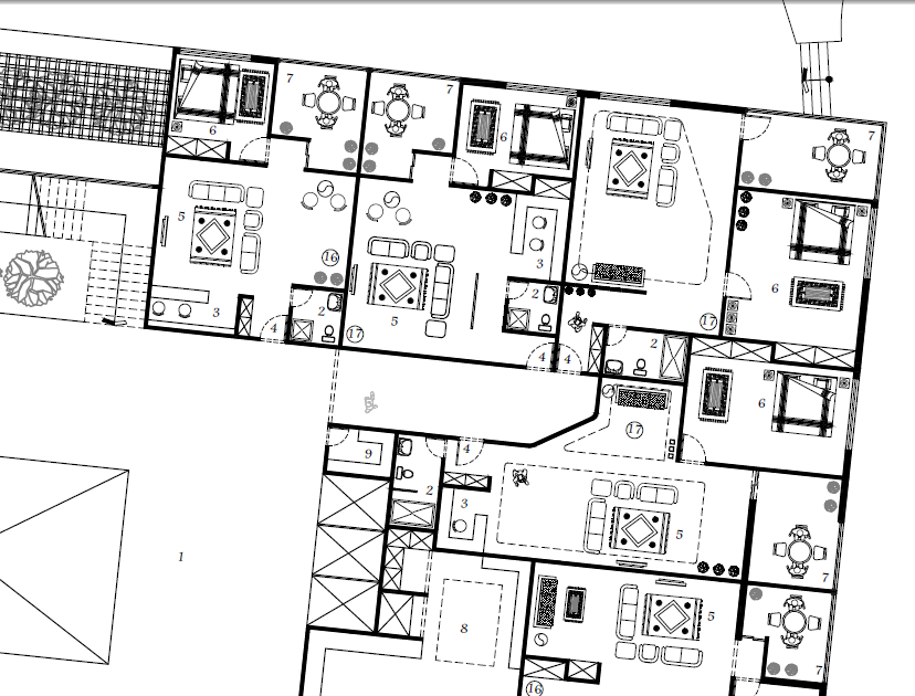
11 تیپ سوئیت دارم که هفته دیگه بعد از کنکور قرارشون می دم.

در پلان زیر زمین پارکینگ را قرار دارم. محل پارکینگ برای پارک تارکسی و ورود مسافرین در قسمت غربی قرار دارد. :icon_gol::icon_gol:

مرسی که کارم را نقد کردی.:icon_gol:

Bahram Sh مهمان
ارسال شده در
کلیت کارتون زیباست.

درسته کنسول هاش زیاد میشه اما قابلیت اجرایی هم داره. این نکته ایه که خیلی از دانشجوها بهش فک نمیکنن.

البته اگه طرح واسه جایی فراتر از ایران باشه هر فرمی قابلیت اجرایی اش رو پیدا میکنه اما تو ایران ....

 

اما در مورد حجمتون و نماهایی که زدید. درمورد ساختمونهایی که به صورت مکعبی شکل میگیرن خیلی زیباتر میشه نماهاش رو شکل داد تا از حالت یکنواختی و سطوح مشبک خالص بیرون بیاد.

درسته تو حجمتون مکعبها رو روی هم چرخوندید اما هر کدوم از این مکعیبهای چرخیده شده رو میشد با بازی نور و ایجاد فضاهای پر و خالی متنوع ترشون کرد.

اما در کل ممنون. طرحتون عالی بوده.:a030:

موفق باشی

 

بسیار بسیار موافقم . ایشالله در کار اصلاحیم که تا عید به همراه آلبومم قرار می دهم کل تغییراتی که مد نظرم هست را انجام می دم . یکی از تغییرات اساسیم اعمال و پیاده کردن کل پلان هایم در حجم می باشد. متأسفانه پلان به طور کامل در حجم پیاده نشده.icon_pf%20%2834%29.gif

مرسی که نظرتو گفتی. :icon_gol:

ارسال شده در
بسیار بسیار موافقم . ایشالله در کار اصلاحیم که تا عید به همراه آلبومم قرار می دهم کل تغییراتی که مد نظرم هست را انجام می دم . یکی از تغییرات اساسیم اعمال و پیاده کردن کل پلان هایم در حجم می باشد. متأسفانه پلان به طور کامل در حجم پیاده نشده.:icon_pf (34):

مرسی که نظرتو گفتی. :icon_gol:

 

امیدوارم به چیزی که مد نظرتون هست برسید.

موفق و پیروز باشید.:icon_gol:

  • Like 2
ارسال شده در

بابا واقعا کارت درسته :ws38::a030:

بهت تبریک میگم:icon_gol::hapydancsmil::hapydancsmil:

  • Like 1
×
×
  • اضافه کردن...