رفتن به مطلب

نرم افزار p6 بر اساس استاندارد 102


ارسال های توصیه شده

ارسال شده در

با سلام:

توی این تاپیک قصد دارم نرم افزار p6 رو بر مبنای استاندارد 102 معرفی کنم و اگر استقبالی به عمل اومد اون رو آموزش بدم.

 

لطفاً با همراهیتون به روند تاپیک کمک کنید.

 

با سپاس

 

پ.ن 1: تمامی مواردی که میگم بر اساس دانش خودم و آموزش هایی که دیدم هست.

پ.ن.2: احتمال اینکه تاپیک کمی طول بکشه تا آپدیت شه هست. دلیلش هم فقط نداشتن زمان کافی و لزوم ترجمه مطالب و تایپ دستی مطالب هست.( لطفاً صبور باشید:w16:)

  • Like 7
ارسال شده در

پریماورا یک نرم افزار چند پروژه ای و چند کاربره هستش که برای سازمان های پروژه محور تدارک دیده شده. این نرم افزار علاوه بر امکان استفاده به صورت تک کاربره، امکان استفاده از اون تحت وب، شبکه ای و client/server هم داره.

 

این نرم افزار کاملاً مطابق با استاندارد PMBOK 2008 همگام است. همین طور که در مراحل اجرا و انجام پروزه به وضوح این مساله رو خواهید دید.

 

در صروت امکان خوندن استاندارد PMBOK رو بهتون پیشنهاد می کنم.

 

 

در ابتدا لازم هست که توضیحاتی در خصوص نصب و راه اندازی این نرم افزار بگم:

 

 

نصب و راه اندازی p6:

 

حالت standalone: در این حالت باید سیستم خود را از حالت administrator در بیارین. در واقع نباید برای سیستم خودتون یوزر خاصی تعریف کنین.

 

یکی از دلایلی که نسخه p6 تهیه و به بازار برنامه ریزی و مدیریت پروژه ارائه شد نصب نشدن p5 روی ویندوز ویستا بود. خوشبختانه در این ورژن از نرم افزار شما میتونید روی ویندوز xp,7,vista , ... به راحتی ازش استفاده کنین.

 

 

 

 

این توضیحات جهت روانی مطلب از کتاب آموزش شماتیک p6 نوشته مهندس یعسوبی و مهندس عوض خواه استخراج شده.

  • Like 5
ارسال شده در

یه سوال داشتم،

میشه بدون اینکه p3 رو بلد باشیم،p6 رو یاد بگیریم؟

یا مثلا اگه p6 یاد بگیریم خود به خود p3 رو هم یاد میگیریم؟

باسپاس

  • Like 4
ارسال شده در
یه سوال داشتم،

میشه بدون اینکه p3 رو بلد باشیم،p6 رو یاد بگیریم؟

یا مثلا اگه p6 یاد بگیریم خود به خود p3 رو هم یاد میگیریم؟

باسپاس

 

راستش این سوالی بود که خود من هم داشتم قبل اینکه دورش رو برم. من خودم p3 رو با استفاده از توتوریالش یاد گرفتم. بعدش هم این کلاس رو برای p6 رفتم.

به نظر من خوبه که محیط رو بشناسین اما اگرم از همین p6 برین میتونین با p3 هم کار کنین.

 

میسی از حضورتون

  • Like 4
ارسال شده در

مرسی خانم مهندس ازراهنمائیتون:icon_gol:

منتظر ادامه تاپیک خوبتون هستیم؟

  • Like 2
ارسال شده در

سلام من خیلی خوشم اومد از این تاپیک :w42:

من تازه اومدم توی این سایت ولی خیلی خوشم اومده اگر من یه سری از دوستام و بیارم بهمن یاد میدید؟؟؟؟؟؟؟؟؟؟؟؟:ws48::ws33:

  • Like 4
ارسال شده در
سلام من خیلی خوشم اومد از این تاپیک :w42:

من تازه اومدم توی این سایت ولی خیلی خوشم اومده اگر من یه سری از دوستام و بیارم بهمن یاد میدید؟؟؟؟؟؟؟؟؟؟؟؟:ws48::ws33:

سلام

خیلی خوش اومدین

ما هم خوشحالیم که شما در جمعمون هستین

 

حقیقتاً من یک کم زیادی درگیرم!! اما چون میخوام تالار فعال شه و هدف از زدن این تاپیک خوش چهره بودن برنامه ریزی وکنترل پروزه و در نهایت مدیریت پروزه از نظر مهندسان صنایع بوده و برای جلب کاربر به تالار و فعالیت اونها هست.

 

بله من این تاپیک رو ادامه میدم اما همونجور که اولش گفتم ممکنه هر هفته آپدیت شه.

 

:w16:

  • Like 4
ارسال شده در

خوب توی این قسمت در مورد این که چه مزایایی به p6 اضافه شده رو حرف می زنم:

 

 

  • یکی از بهترین خصوصیات نرم افزار p6 اینه که می تونیم برای فایل های ورودی و خروجی فرمت XML رو تعیین کنیم.
  • توی این ورژن می تونیم از محدودیت رل ها استفاده کنیم.
  • ویرایش صفحات گسترده مثل Resource Usage , Bucket Planning
  • یه خصوصیت جالب دیگه ای که این نرم افزار داره اینه که برای هر فعالیت میشه یه صاحب/مالک تعیین کرد.
  • ریز کردن فعالیت ها در حد step یکی دیگه از مزایای این ورژن هستش
  • برگردوندن اطلاعات از مزایای دیگه هستش. همون undo توی اکثر نرم افزارا
  • وجود فیلدهای جدید تخصیص منابع
  • استفاده از Spotlight , همین طور زمینه ها در این نرم افزار در قسمت lay out ها از خصوصیات جالبش به شمار میاد.
  • و ...

در بخش های مختلف جای بحث هست . ادامه دارد

  • Like 3
ارسال شده در
خوب توی این قسمت در مورد این که چه مزایایی به p6 اضافه شده رو شرح می دم:

 

 

 

  • برگردوندن اطلاعات از مزایای دیگه هستش. همون undo توی اکثر نرم افزارا

 

چه جالب که undo هم داره،آخه یکی از ایرادایی که به پریماورا میگرفتن نداشتن همین عملکرد بود

  • Like 1
ارسال شده در
چه جالب که undo هم داره،آخه یکی از ایرادایی که به پریماورا میگرفتن نداشتن همین عملکرد بود

آره واسه خودمم این خیلی جالب بود

کلاً محیطش خیلی بهتره از نرم افزارای دیگه

حالا اگه بشه ازش عکس هم میگیرم میذارم

  • Like 1
ارسال شده در

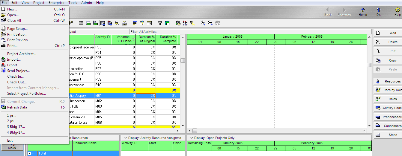
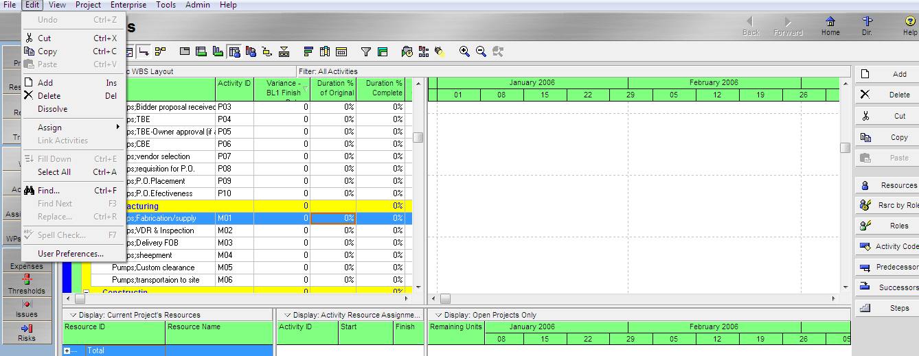
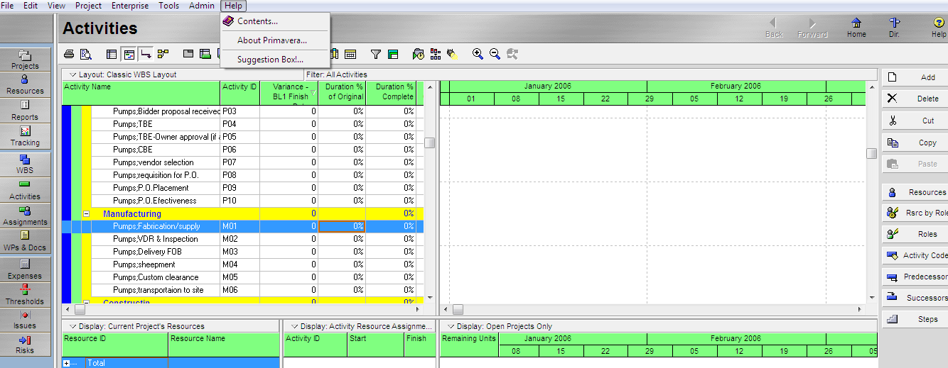
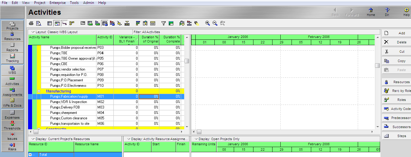
توی این بخش میخوام یه نمایی از ابزارها و بک گروند نرم افزار بذارم تا باهاش یه آشنایی نسبی پیدا کنید

 

 

wok3do4mbls117y7f88.png

  • Like 2
ارسال شده در

kkif9n432wbvujpi280.png

  • Like 3
ارسال شده در

13pfz6eg6d8zn1p0gzvc.png

  • Like 1
ارسال شده در

lmyt8y9rqhz87brrwv.png

  • Like 2
ارسال شده در

53dc3vdkza5h86rhxi2.png

  • Like 2
ارسال شده در

qorzc8a0ee2wjxrk1xa.png

  • Like 1
ارسال شده در

xigjq6i3y7owvms8me.png

  • Like 1
ارسال شده در

dk87dayf38u9ekhx1xu.png

  • Like 3
ارسال شده در

در ادامه قصد دارم توضیح مختصری در خصوص قابلیت های هر یک از ابزارها بگم البته مختصر. چون در روند آموزش کاملاً شرح داده میشه.

 

توصیه میکنم کسانی که مایلن آموزشی باشه بهم اطلاع بدن و نرم افزار رو تهیه کنند حتماً.

 

منتظر باشید

  • Like 4
  • 10 ماه بعد...
ارسال شده در

دوستان عزیز ابتدا پوزش بنده رو بخاطر پاک کردن پست هاتون قبول کنین... چرا که اینجا خواهش دارم هیچ پستی زده نشه و فقط در پایان هر جلسه از درس مشکلاتمون رو باهمدیگه به اشتراک بذاریم... من هم مثل شما دوستان اشکالاتی دارم که عنوان میکنم...

 

جلسات آموزشی طبق این استاندارد ابتدا با شروع کار با پریماورا هست که هر هفته 2 جلسه براش در نظر میگیرم... در شرایط معمول 2 روز سه شنبه و جمعه رو در نظر گرفتم.

 

پس از پیشرفت درس، یه تاپیک واسه حل اشکالات هم زده میشه، که البته یه این معنی نیست که من خودم کاملاً نرم افزار رو بلدم فقط در راستای تقسیم کردن اطلاعاتمون هست.

 

 

تا جمعه و جلسه اول صبور باشید:w16:

  • Like 4
×
×
  • اضافه کردن...