رفتن به مطلب

ارسال های توصیه شده

ارسال شده در

باب نوزدهم

معمار: رم کولهاس

معماری:ویلا دال آوا

 

hlm1sq8kgrbtkng00qp.jpg

 

استاد طراحی معماری وطراحی شهری در دانشگاه هاروارد آمریکااست او مسئولیت هدایت طرح های تحقیقاتی مطالعات ترکیبی کارگاههاوسمینارهایی که بروضع معماری وشهر متمرکز شده اند را در نقاط مختلف جهان به عهده دارد.

 

کولهاس در سال 1944 درشهر روتردام هلند به دنیا آمد ابتدا روزنامه نگار ونویسنده ی نمایشنامه های رادیوتلوزیونی بود سپس از سال 1968 تا1972 در مدرسه معماریAA لندن تحصیل کرد مقاله ی دیوار برلین به مثابه ی معماری 1970ومهاجرت یا زندانیان داوطلبانه ی معماری 1972 حاصل تفکر او در آن مدرسه است.

در سال 1972 بورس پژوهشی موسسه هارکنس را جهت تحقیق در آمریکا دریافت کرد ودر دانشگاه کرنل زیر نظر اسوالد ماتیاس اونگرس به پژوهش در معماری پرداخت سپس به عنوان محقق مدعو به موسسه مطالعات معماری وشهر IAUS در نیویورک کتاب نیویورک تبدار بیانیه ی مدکتر شریعتیعطوف به گذشته ای برای مانهاتن را در سال 1978 منتشر کرد.

کولهاس در سال 1975 دفتر معماری کلانشهر OMA را با الیا و زیو زنگلیش و مادلون یزندروپ در لندن تاسیس کرد و از آن هنگام پروژه های معماری برنامه ریزی و طراحی شهری متعددی را انجام داده است.

در سال 1995 به همراه بروس مایو –طراح گرافیک-S.M.L.XL را منتشر کرد .کتابی که کارهای OMA و کولهاس را در زمینه های جامعه ی امروز ساختمان و توسعه شهر ارایه می کرد.

در سال 1972 بورس پژوهشی موسسه هارکنس را جهت تحقیق در آمریکا دریافت کرد ودر دانشگاه کرنل زیر نظر اسوالد ماتیاس اونگرس به پژوهش در معماری پرداخت سپس به عنوان محقق مدعو به موسسه مطالعات معماری وشهر IAUS در نیویورک کتاب نیویورک تبدار بیانیه ی مدکتر شریعتیعطوف به گذشته ای برای مانهاتن را در سال 1978 منتشر کرد.

کولهاس در سال 1975 دفتر معماری کلانشهر OMA را با الیا و زیو زنگلیش و مادلون یزندروپ در لندن تاسیس کرد و از آن هنگام پروژه های معماری برنامه ریزی و طراحی شهری متعددی را انجام داده است.

در سال 1995 به همراه بروس مایو –طراح گرافیک-S.M.L.XL را منتشر کرد .کتابی که کارهای OMA و کولهاس را در زمینه های جامعه ی امروز ساختمان و توسعه شهر ارایه می کرد.

 

استاد طراحی معماری وطراحی شهری در دانشگاه هاروارد آمریکااست او مسئولیت هدایت طرح های تحقیقاتی مطالعات ترکیبی کارگاههاوسمینارهایی که بروضع معماری وشهر متمرکز شده اند را در نقاط مختلف جهان به عهده دارد.

 

کولهاس در سال 1944 درشهر روتردام هلند به دنیا آمد ابتدا روزنامه نگار ونویسنده ی نمایشنامه های رادیوتلوزیونی بود سپس از سال 1968 تا1972 در مدرسه معماریAA لندن تحصیل کرد مقاله ی دیوار برلین به مثابه ی معماری 1970ومهاجرت یا زندانیان داوطلبانه ی معماری 1972 حاصل تفکر او در آن مدرسه است.

در سال 1972 بورس پژوهشی موسسه هارکنس را جهت تحقیق در آمریکا دریافت کرد ودر دانشگاه کرنل زیر نظر اسوالد ماتیاس اونگرس به پژوهش در معماری پرداخت سپس به عنوان محقق مدعو به موسسه مطالعات معماری وشهر IAUS در نیویورک کتاب نیویورک تبدار بیانیه ی مدکتر شریعتیعطوف به گذشته ای برای مانهاتن را در سال 1978 منتشر کرد.

کولهاس در سال 1975 دفتر معماری کلانشهر OMA را با الیا و زیو زنگلیش و مادلون یزندروپ در لندن تاسیس کرد و از آن هنگام پروژه های معماری برنامه ریزی و طراحی شهری متعددی را انجام داده است.

در سال 1995 به همراه بروس مایو –طراح گرافیک-S.M.L.XL را منتشر کرد .کتابی که کارهای OMA و کولهاس را در زمینه های جامعه ی امروز ساختمان و توسعه شهر ارایه می کرد.

در سال 1972 بورس پژوهشی موسسه هارکنس را جهت تحقیق در آمریکا دریافت کرد ودر دانشگاه کرنل زیر نظر اسوالد ماتیاس اونگرس به پژوهش در معماری پرداخت سپس به عنوان محقق مدعو به موسسه مطالعات معماری وشهر IAUS در نیویورک کتاب نیویورک تبدار بیانیه ی مدکتر شریعتیعطوف به گذشته ای برای مانهاتن را در سال 1978 منتشر کرد.

کولهاس در سال 1975 دفتر معماری کلانشهر OMA را با الیا و زیو زنگلیش و مادلون یزندروپ در لندن تاسیس کرد و از آن هنگام پروژه های معماری برنامه ریزی و طراحی شهری متعددی را انجام داده است.

در سال 1995 به همراه بروس مایو –طراح گرافیک-S.M.L.XL را منتشر کرد .کتابی که کارهای OMA و کولهاس را در زمینه های جامعه ی امروز ساختمان و توسعه شهر ارایه می کرد.

 

2a5qvrertwdcm1851yc6.jpg

 

Educatorium Utrecht University

 

evhcvtdwm2pdgkugsuq1.jpg

 

Office for Metropolitan

 

 

 

 

 

 

ویلا دال آول

 

nepidbkj2m6ds2n725i.jpg

 

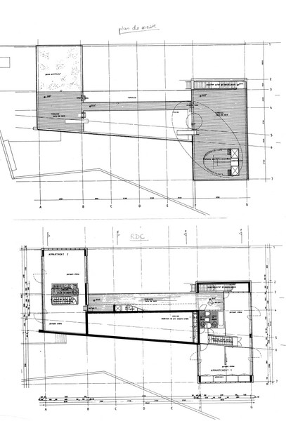
خانه در ارتباط با همسایگانش و زمینهی اطراف به وجود آمده است...این اثر یک شی نیست،این سخنان در میان دست نوشته های بد خط در کنار پلان های ویلا دال آوا پیدا شد و در کتاب رم کواهاس و بوروس ما به نام کوچک،متوسط،بزرگ و خیلی بزرگ چاپ شد.چنین حساسیت ظاهری،طعنه آمبز است،هنگامی که بدانیم ساخت خانه به دلیل اعتراض همسایگان ،بسیار به طول انجامید و مشکلات آن تنها با ارجاع به دادگاه عالی فرانسه حل شد.با این حال موشکلفی این طرح نشان خواهد داد که این جملات کاملا درست هستند،خصوصا هنگامیکه بدانیم مقصود از همسایگان،دو ویلای لوکوربوزیه در نزدیکی این ساختمان و برج ایفل می باشد که به خوبی در افق شرقی مشهود است.

 

 

xoow4no1slohfroissrg.jpg

 

6qqyjros6grgxrgr9vrn.jpg

 

ha6in0gf7ebeqxh38l.jpg

 

45ce8mnkn47d5kj6x4cp.jpg

 

ic99yhn5hs3e2sz93xw.jpg

 

 

 

سایت این پروژه یک باغ محصور در دیوار است که در حومه ی شهر سنت کلاد قرار دارد،شیب تندی به سمت جاده داشته و همجوار دو خانه ی ویلایی منفصل می باشد که به صورت سری در یک طرف این خانه قرار دارد.بنابراین بلافاصله دلیل S بودن قاطعانه پلان آشکار می شود،یک بال،بیرون آمده تا با خانه ی همجوار در سمت جنوب هم راستا شود و دیگری عقب نشسته ،تا همسایه ی ئیگر را مورد توجه قرار دهد و نیز یک بلوک پیوند دهنده ی این دو نیز در میانشان قرار دارد،این نوع آرایش پاسخی نیز به دید و منظر اطراف می باشد،جا به جایی بال پشتی که اتاق خواب اصلی را در جای داده است دارای دید به پشت بال جلویی می باشد که آپارتمان دختر خانواده است.با شیب سایت نیز چنین بی پرده شده است،پایین ترین قسمت ساختمان سه طبقه،در قسمت جلویی طبقه همکف بوده و و در قسمت پشتی ،زیرزمین می باشد و شامل هال ورودی،فضاهای خدماتی،یک کتابخانه و یک کارگاه است و در جایی که از زمین بیرون می آید با سنگفرش سیاه رنگی با الگوی سنگ های لاشه پوشیده شده است تا نشان دهنده ی این باشد که این قسمت ذاتا جز زیرسازی ساختمان است.طیقه میانی شامل ناهارخوری ،آشپزخانه و فضاهای نشیمن است و دیوارهای آن اکثرا شیشه ای بوده و بنابراین از نظر فضایی،قسمتی از باغ محسوب می شوند.اتاق خواب ها در بالاترین طبقه و در دو انتهای استخر شنا قرار دارند.

 

 

p31ipy4wc8qv8r2jyy.jpg

 

efcw98nhjzwxstp4sl6.jpg

 

oo8dqv192t47uy2mv85w.jpg

 

yk9f0niia3y2b4by9z.jpg

 

enms6odm5g7ef4cxqlpx.jpg

 

 

 

آری اشتباه نمی کنید،یک استخر شنا در طبقه ی بالای بلوک ارتباطی دو بال ساختمان قرار دارد و تنها از سقف قابل دسترسی است.در اینجاست که طراحی به ناگاه خیلی کمتر سرراست به نظر می رسد،قرار دادن استخر شنا که دارای وزن بسیار زیادی است بر روی نشیمن با دیوارهای شیشه ای یک خطای تکنیکی در معماری است،اما این روش کولهاس و دفتر معماری OMA دفتر معماری کلان شهر کی باشدکه علاقمند به شکستن هر قاعده ای،تغییر هر فرم سنتی و رد کردن هر چیز متداولی بود.در واقع این استخر شنا بر روی ردیفی از ستون های کاملا چاق قرار گرفته که با دیوارهای چوبی جداکننده ی نشیمن از رمپی طولانی پنهان شده اند.رمپی که هال ورودی را مستقیما به نشیمن اصلی پشتی مرتبط می سازد،شاید اشاره ای بر تایید ساختمان های همسایه به سبک کوربوزیه باشد و این نشانه ای است از هدف طرح این خانه به عنوان ساختمانی جدید و متفاوت،درست مانند ویلا استین و ویلا ساووی.

 

ev8pyr2vz50o1g9ywkdo.jpg

 

j43p6yl6ofgg0ss2306l.jpg

 

zs4nhflkome8jpvht0kk.jpg

 

xli6d9ukdlx3xwzt3lx2.png

 

akqcqe9b4841ghhtspvf.jpg

 

 

 

جزییات ساختمانی متعدد و عجیب دیگری نیز وجود دارند،به عنوان مثال اتاق خواب دختر خانواده بر روی مجموعه ای از ستون های باریک که به صورت تصادفی زاویه دار هستند قرار گرفته است و از آنجایی که اتاق خواب والدین نیاز به هیچ گونه محافظت سازه ای ندارد،این قسمت عجیب تربه نظر می رسد.مصالح ساختمانی نیز غیر معمول بوده و معمولا به طور عمدی ارزان و خام انتخاب شده اند،مانند صفحات نیمه شفاف پلاستیکی که دیوار داخلی آشپزخانه را تشکیل داده اند و یا صفحات موچ دار آلومینیومی که روی دیوار اتاق خواب ها را پوشانده اند.اکنون چنین کارهایی را از دفتر OMA می توانیم انتظار داشته باشیم ولی طرح این خانه در سال 1991 طرحی جدید،آشفته کننده و در عین حال مهیج بود.

 

 

 

 

q0lbmvdscsfzuukz0fdk.png

 

ahan7kf2progxkuest8.png

 

jo3l7nu7czup2g5tpo07.png

 

jf08jeajl4jq2c5k0k6.jpg

 

ol5ac96qg8u76q8hoa4.jpg

 

psno0kjrsqkmvzlpjgw.jpg

 

r23iy4tceozutdsul9lz.jpg

 

برای مشاهده این محتوا لطفاً ثبت نام کنید یا وارد شوید.

 

 

  • Like 9
  • پاسخ 41
  • ایجاد شد
  • آخرین پاسخ

بهترین ارسال کنندگان این موضوع

بهترین ارسال کنندگان این موضوع

ارسال شده در

باب بیستم

معمار:Jorgen Mayer"

معماری:

[h=2]مرکز دندانپزشکی در هامبورگ [/h]

 

eventspace-013-001.jpg

شناسنامه کار: J. MAYER H. Architects

Team: Jürgen Mayer H., Marcus Blum, Hans Schneider, Wilko Hoffmann Project: 2008

Completion: 2009

Client: Zentrum für Zahnmedizin Brauner-Wegner-Priehnاین بنا که یک مرکز دندانپزشکی است توسط معمار آلمانی، "Jorgen Mayer" طراحی و ساخته شده است. با دیدن اولین عکس­ها که فارغ از وسایلی چون یونیت دنداپزشکی است، ممکن است بنا یادآور کلوب شبانه یا فضاهایی از این قبیل باشد ولی خوب این فضا با این طراحی منحصر بفرد و نورپردازی در خور توجه، مکانی است برای سرویس دهی به بیماران. فضا با دیواره­ای گچی که به رنگ آبی و قهو­ای است، جدا شده و فرم غالب بر این دیواره­ها منحنی است. مبلمان این فضا و مکان­هایی که برای مرجعین و انتظار آنها در نظر گرفته شده است نیز به طرز خاصی طراحی شده است. جنس صندلی­ها از پلی­فوم است. رنگ­هایی که در این فضا به کار رفته، آرامش بخش هستند. دیواره­ای که محل انتظار و قسمت آزمایشگاه (لابراتوار) را از هم جدا می­کند، در واقع دیواره ممتدی است که با انحنا دادن به بدنه آن به این منظور دست یافته­اند، این حالت در کل این فضا مشهود است. این بنا در مرکز شهر قرار گرفته است. در بنا یک هسته مرکزی تعریف شده است که بقیه فضاها در دور آن قرار گرفته­اند.

 

 

eventspace-013-003.jpg

 

 

eventspace-013-004.jpg

 

 

eventspace-013-005.jpg

 

 

eventspace-013-006.jpg

 

 

eventspace-013-007.jpg

 

eventspace-013-008.jpg

 

 

eventspace-013-009.jpg

 

 

eventspace-013-010.jpg

[h=2][/h]

  • Like 7
ارسال شده در

باب بیست و یکم

معمار: گلن مورکت

معماری:خانه ی مریکا آلدرتون

 

6750n473hs5hro6fu3k.jpg

گلن مورکت متولد 25 جولای سال 1936، معمار ی استرالیایی است.او معماری را فرا گرفت از سال 1956 تا 1961 در دانشگاه نیو ساوت ولز و همیشه واسطه، به کارگیری معماری بومی قدردانی شده است. او در حال حاضر استاد مدعو معماری در دانشگاه ییل است.

شعار مورکت "لمس زمین به آرامی"است ؛ معماری او چند منظوره و متناسب با چشم انداز، ویژگیهای منطقه ای مانند جهت وزش باد، حرکت آب، درجه حرارت و نور است. او از مواد زیست محیطی از قبیل شیشه ، سنگ ، چوب و فولاد استفاده می کند.

 

9muwidbkclzt563d2.jpg

 

Glenn Murcutt, Arthur & Yvonne Boyd Art Center 1996-99

 

 

 

افتخارات و جوایز بسیاری در سطح بین المللی کسب کرده، از جمله جایزه پریتزکر معماری در سال 2002 یکی از مهمترین دست آوردهای اوست.(تصویر ذیل بنایی است که او به خاطر طراحی آن موفق به کسب جایزه پریتزکر شد.دلیل اصلی آن احیای معماری قهوه خانه ای بود)

 

wnp3uss43uwb5rj1hhjl.jpg

 

Berowra Waters Inn

 

 

 

 

 

خانه ی مریکا آلدرتون

 

6ic1dkc7jm2t7jnrzcq0.jpg

 

این خانه که برای هنرمندی به نام بندوک مریکا و همسر و فرزندانش در شمال استرالیا و نزدیک به دریا طراحی شد،برجسته ترین آثار معماری استرالیا را به مبارزه می طلبید.

گلن مورکت یک متخصص طراحی خانه های مسکونی بود که منحصرا در استرالیا طراحی می کرد،اگرچه این اولین پروژه ی او از یک کارفرمای بومی و اولین ساختمان او در یک منطقه ی کاملا گرمسیری بود.در آغاز کار هم مشکلات فنی و هم مشکلات فرهنگی وجود داشت:پگونه می توان در محیطی که هیچ گاه دمایش به کتر از 25 درجه سانتی گراد نمی رسد و معمولا بیش از 40 درجه می باشد،یک فضای محلی راحت و قابل تحمل را ایجاد کرد،در حالیکه باید از خطر عنکبوت های سمی و خزندگان گزنده مصون بود و نیز از تکنولوژی هایی مانند تهویه مطبوع که از نظر فرهنگی در این منطقه بیگانه هستند،اجتناب کرد.سایت این پروژه در معرض تخریب توسط طوفان شدید و امواج سهمگین بود و نیروی کار محلی ماهر در آن اطراف یافت نمی شد.

جواب مورکت به این مساله،خانه ای ممتد از چوب و فلز و قرار گرفته بر روی چوب بست بود،این خانه نه حجمی محصور و حفاظت شده،بلکه سکویی قرار گرفته در سایه با انواع پنجره های مشبک،تیغه های موج گیر و منافذ بادگیر بود.خانه در همه ی جهات بازشو دارد.در ورودی،درهای بزرگ کشویی وجود دارند و تمامی پنجره ها که هیچ شیشه ای نیستند،به صورت لولایی به بالا باز شده و با بالابرهای گازی،مانند آنچه که در صندوق عقب ماشین های هاچ بک وجود دارد،تجهیز شده اند.سقف شیب دار ساده ی وسیعی،تمامی اطراف این سکو را پوشانده که در قسمت شمالی حتی وسیع تر است.در قسمت جنوبی که کم نورتر است،پره ای عمودی عمیقی به جای جرزهای پنجره کار گذاشته شده اند تا آفتاب مایل صبح و عصر را دور نگه دارد.

 

 

ardb56igqg74ko41jm.jpg

 

oruga6f3uipkswpzvt98.jpg

 

e58ezfup41v47fei46.jpg

 

lvdrxd0fwogpyazp.jpg

 

d879q9r8pa2gkbt3yh2p.jpg

 

 

 

dzj282ga6o7b2943cvz.jpg

 

fyrmhsrrtqdy2lpd4drb.jpg

 

n0vxrzgmelglby1c67sr.jpg

 

3gswmdfff9oa6wl0o499.jpg

 

fa6cnyhy80s0uwgfj1d.jpg

 

 

پس از محافظت از نور مستقیم خورشید،اولویت بعدی اجازه ی ورود به هر نسیم گذراست.حتی شب ها که خانه کاملا به دلیل امنیتی بسته است،تهویه ی طبیعی در این خانه عمل می کند،همچنین دریچه های سقفی قابل کنترلی برای کشیدن هوای گرم خانه به بیرون تعبیه شده و شیارهایی کشیده در کف با پوشش های حفاظتی در مقابل حشرات،اجازه ی ورود هوای خنک را به ساختمان می دهد.قسمت هایی مانند گنجه ها در نشیمن و تختخواب ها در اتاق کودکان،برای اطمینان از جریان هوا،از روی زمین بالا آورده شده اند.تمامی اتاق ها به جز دوش ها و سرویس های بهداشتی از سطح زیرین سقف بلند فاصله دارند.

این یک ساختمان کاملا پیش ساخته است که توسط دو قایق ساز در گاسفورد در نزدیکی سیدنی ساخته شد.قطعات خانه به فاصله ی 3.2 کیلومتر از سایت به وسیله ی کامیون و قایق قبل از مونتاژ توسط این دو صنعتگر حمل شدند.قاب فلزی ساختمان از مقاطع گرد و باریکی شبیه خانه های دیگر مورکت ساخته شده است که دارای شبکه های سخت کننده ی مثلثی بزرگی برای مقاومت در مقابل تندبادها می باشد.

تیرهای اصلی فلزی،پرلین های (تیرچه ها) چوبی را نگه داشته که آن ها نیز صفحات موج دار گالوانیزه سقف را که مشخصه ی مورکت است نگه داشته اند.کف ها،پارتیشن ها و دیوارهای خارجی از تخته چندلا یا چوب جنگلی با پوشش های ضد زنگ و رمگ ساخته شده اند.

 

 

 

0af05qwlstoqb6op0hr.jpg

 

wdbm8pro2abcg7b5i9kz.jpg

 

afowmz4bebapy14njiez.jpg

 

94k1jq4ot86igxc7vf.jpg

 

ghdmrfcwps3ucty4pi.jpg

 

 

n5nlhm8vaqfd4zr5w6ai.jpg

 

ifvx5kxs8dv12xt8w9sm.jpg

 

x65lorxku97a1x5c8nnn.jpg

 

 

این خانه یک ساختمان اقتصادی است و تقریبا مشخصاتی شبیه خانه هایی در مزرعه دارد،اما دیتیل های ظریف و مهارت های به کار رفته در ساخت،آن را به انرژی برجسته در میان آثار زندگی حرفه ای مورکت تبدیل می کند،شاید این ساختمان عملا در روش استفاده از مصالح و تطابق با اقلیم واضح ترین بیان از عقاید معماری او باشد و می تواند عمیق ترین منابع الهام طراحی او را به نمایش بگذارد.مرکت دوران کودکی خود را با خانواده اش در جنگل های کشور گینه نو به سر برده بود و پدرش که یک جوینده ی طلا بود،خود خانه ی محل اقامتشان را که سقفی از صفحات موج دار فلزی داشت و بر روی مجموعه ای از چوب بست ها بالا آمده بود،ساخت.گفته می شود که زمانی مادر مورکت با تیراندازی به سمت بومیان متخاصم مجبور به دفاع از این خانه شده است.

 

 

 

 

 

 

  • Like 6
ارسال شده در

باب بیست و دوم

معمار: بری مارشال

معماری:خانه ی مارشال

 

8sm9qw7p88wn6p7uvaw6.gif

 

بری مارشال عضوی از گروه کاری دنتون - کورکر - مارشال می باشد که یک دفتر بزرگ واقع در ملبورن با شعبه هایی در سراسر جهان است و طراحی هایی هوشمندانه و پایه ریزی شده بر مبنای کار آتلیه ای دارد که خانه ی مارشال گواهی بر این مدعاست.

 

ki2oqdjbvz1ynyvvywxe.jpg

 

گروه کاری دنتون - کورکر - مارشال

 

 

 

 

خانه ی مارشال

 

l4qnk931fkmww2k85jzv.jpg

 

خانه ی مارشال خانه ای طولانی،کم ارتفاع،سیاه رنگ،مرموز و تا حدی ترسناک است و طراحش آن را به یک بمب افکن مخفی تشبیه کرده است.در حقیقت این ساختمان یک خانه ی ساحلی است.هنگامی که معماران خانه ای برای خود طراحی می کنند،همیشه یک دستور کار مخفی وجود دارد و مسئله هیچ گاه به طرح ساختمانی شاداب و راحت برای زندگی ختم نمی شود.تنها یک معمار می تواند در مورد خانه ی ساحلی فکر کند که شبیه سلاح ای کشتار جمعی باشد.مارشال این ساختمان را به یک خانه ی چوبی معمولی خلاصه کرد،اما هنگامی که متوجه این مسئله شد که لنداسکیپ خلیج کیتی میلر به چیزی نیاز ندارد که بر روی آن بایستد،عقیده اش عوض شد.خانه باید به قسمتی از مناظر اطراف تبدیل می شد،شبیه یک پناهگاه یا سنگر (استفاده نظامی اجتناب ناپذیر است)

در حقیقت تاپیر خاک شدن در داخل زمین یک خیال است که خود را به صورتی طبیعی می نمایاند و توده های شنن وماسه واقعا به صورت خاکریز خود را نشان می دهند،یعنی سکوهایی مصنوعی که در مقابل دیوارهای بتنی بر روی یکدیگر دپو شده و یک محوطه ی مربه شکل را به وجود آورده اند.این محوطه مهم ترین فضا در خانه است،اگرچه تعیین اینکه عملکرد دقیق آن چیستدشوار می باشد.از این قسمت گهگاهی به عنوان پارکینگ اتومبیل استفاده می شود اما به نظر می رسد که مانند محوطه ی خود،یک معبد باستانی بیشتر تشریفاتی است تا عملکردی.

 

 

3k13bf97t6xlxbe4ox.jpg

 

ocy02sxsovqaatg153l2.jpg

 

جاده ی دسترسی از طریق یک شکاف به خاکریز شرقی منتهی می شود.سه گشودگی در دیواری که دقیقا مقابل این شکاف وجود دارد،اشاره بر حضور یک پارکینگ وسیع و انباری دارند.اما این محوطه برای مدتی طولانی به عنوان پارکینگ مورد استفاده قرار نگرفته بود.از دیوار جنوبی در سمت چپ یک تیغه ی فلزی عمودی،مانند یک دست خوش آمد گوی روبوتیک بیرون آمده و محل قرارگیری ورودی اصلی خانه را نشان می دهد.

خانه در فضایی طولانی و نسبتا باریک جای گرفته است مه میان دیوار جنوبی محوطه و یک دیوار بتنی دیگر به موازات آن و رو به دریا قرار گرفته است.فرم های تیغه ای شکل (که این دیوار اضافی نمونه ای از آن هاست)،علامت مشخصه ی گروه کاری دنتون - کورکر - مارشال می باشد،خانه ها مانند یک موج شکن ساحلی،از یک سمت در ماسه ها مدفون شده و در سمت دیگر یک حائل باریک شونده را ایجاد کرده است.چمن های روییده در توده های شن تا بالای سقف خانه نیز ادامه یافته و تصور دیوارهای حائل را تقویت کرده است.

 

 

hfwqjym0dzbtkrgcpjsr.jpg

 

bsznxn85mz4m90d1mow.jpg

 

xi3tvgke0de6dnam300.jpg

 

 

 

در داخل خانه ،پلان به اندازه کافی سرراست است و شامل یک نشیمن در یک انتها،اتاق خواب اصلی در انتهای دیگر و یک نوار دسترسی در سمت رو به محوطه ی خانه برای ارتباط این دو فضا می باشد.فضاهای خانه خصوصا آشپزخانه ،ناهار خوری و محدوده ی ورودی،وسیع هستند و یک پنجره ی سرتاسری بزرگ بیرون زده به سمت حیاط در سمت شمال آن و یک ایوان تو رفته،شبیه معبدی کلاسیک در سمت جنوب و رو به دریا قرار دارد.پنجره ها به گونه ای در دو دیوار بتنی جانمایی شده و اندازه هایشان تعیین گردیده است تا با فضاهای پشتی آن ها و جهت گیریهایشان همخوانی داشته باشد،پنجره های شمالی رو به محوطه ،نسبتا کوچک تر و کم تعدادتر هستند تا خانه را از آفتاب و باد مصون بدارند اما پنجره های رو به جنوب،قاب های دید وسیعی رو به دریا تعریف می کنند.

غیر عادی ترین مطلب در مورد خانه ی مارشال،شخصیت تند و تیره ی آن می باشد،ساخت یک خانه ی ساحلی از بتن درجای زمخت به اندازه ی کافی متهورانه می باشد،اما این بتن در داخل و خارج سیاه رنگ است.نازک کاری ها و مصالح پرداختی دیگر،مانند موزاییک سیمانی سرد کف و فلز رنگ نشده ی درها و پارتشین ها،هیچ تاثیری در تلطیف فضاها ندارد.اگرچه نوعی دکوراسیون در این فضاها به چشم می خورد،نقطه هایی به سبک کان - آندو در بتن دیده می شوند.مفصل های عمودی که در طول روز سایه های متحرکی را به وجود می آورند به دقت جانمایی شده اند و ناودانی های پیکره ای شکل که آب باران سقف را جمع می کنند در تورفتگی های مثلثی شکل قرار گرفته اند.اما هیچ یک از این دیتیل ها تاثیری در بشاش تر کردن فضاها ندارند،تنها لوله بخاری آتشدان موجود در نشیمن با بیرون زدن از خاکریز خود در زاویه ای خودنمایانه،توجه مختصری را به خود جلب می کند.

 

 

k1mvn4ofywp2jfe9truw.jpg

 

x6raz2do65yhhud5vfd3.jpg

 

 

برای مشاهده این محتوا لطفاً ثبت نام کنید یا وارد شوید.

 

 

 

 

 

 

 

 

  • Like 6
ارسال شده در

باب بیست و سوم

معمار: سر نورمن فاستر

معماری:خانه چو ان دای

 

fggwkge3fsmub2aril.jpg

 

نورمن فاستر ، در اول ماه ژوئن در شهر منچستر متولد شد . 1953 پس از اتمام دوره متوسطه ، به صورت نیمه وقت و به عنوان منشی در تالار شهر منچستر شروع به کار کرد . سپس به خدمت سربازی رفت و در حین خدمت در نیروی هوایی ، در زمینه مهندسی الکترونیک مهارت یافت و اطلاعاتی در مورد هواپیما کسب کرد . در نهایت ، به دلیل علاقه به هولپیماهای گلایدر به یک خلبان ماهر تبدیل شد . 1955 پس از اتمام دوره دوساله سربازی ، در دفتر دو تن از معماران منچستر مشغول به کار شد

1956 با ثبت نام در دانشگاه معماری منچستر ، به فراگیری دروس نسبتا سنتی ( در مقایسه با دروس و و رویکرد های متفاوت در انجمن معماران لندن و مدرسه ی معماری لیورپول ) پرداخت . با این حال ، در این سال ها توانست مهارت های منحصر به فردی در زمینه ی فنون ترسیم و ارائه به دست آورد. در حین طراحی پروژه تئاتر ساموئل بکت ، با ریچارد باکمینیستر فولر آشنا شد که بعد ها ، تاثیر عمیقی در اندیشه و کارهای فاستر گذاشت . آشنایی ، سر آغازی بود برای دوستی و همکاری طولانی پر ثمری که تا زمان مرگ این استاد آمریکایی ( یعنی سال 1983 ) ادامه داشت .

 

zo93bykzwxpviv26wqfj.jpg

Norman Foster’s Almaty Twin Towers in Kazakhstan

 

در این ، دفتر معماری فاستر و همکاران به طبقه همکف ساختمانی در خیابان فیتزروی ( که فقط چند صد متر از برج اداره پست فاصله داشت ) منتقل شد. تجهیز و طراحی داخلی این دفتر ، بستری بود برای بررسی و آزمایش مفاهیم و مصالحی که بعده ها هسته اصلی فلسفه کار فاستر را شکل داد .

 

 

خانه ی چو ان دای

 

sxfwp384o6bop39c3ow0.jpg

 

سبک های هایتک بریتانیایی که در دهه ی 1980 پیشرفت کرد،بیشتر سبکی کاملا صادق بود تا سبکی غیر تخیلی و بیشتر به انعطاف پذیری اهمیت می داد تا آرایش های فضایی ثابت.این سبک،مصاح طبیعی مانند چوب و آجر را رد کرده و به جای آن از قطعات پیچ و مهره ای فلزی و شیشه ای استفاده می کرد.تعجب آور نیست که این سبک،خانه های کمی تولید کرد،اگرچه یکی دو نمونه ی جالب،مانند خانه ی هاپکینز وجود دارد.نورمن فاستر تعربف کننده و پیشرو سبک هایتک بود اما هنگامی که از او خواسته شد تا خانه ای برای تاجر ثروتمند آلمانی طراحی کند،به روشی کلاسیک از سبک میس ون در رو بازگشت و البته در پس میس،منبع الهام همیشگی تمامی گونه های مدرن قرار داشت،خانه ی سنتی ژاپنی.

اولین و شاید مهم ترین تصمیم طراحی،انتخاب سایت توسط کارفرما بود،یک قله ی صخره ای در سمت غربی شبه جزیره ی ایزو،با فاصله ی حدودا 135 کیلئمتر تا توکیو و دارای مناظر تماشایی دریا که با درختان کاج و صنوبر قاب شده بود.اما این خانه ای معلق از صخره نیست و ارتباط آن با سایت با لنداسکیپ مصنوعی که توسط شیگمی کوماتسو طراحی شد،تامین شده است.دیوارهای حادل بتنی خام اما نرم به همان روش لویی کان یا تادائو آندو زمین را به تراس های مسطح بزرگی با کف سازی بتن شسته با سنگدانه های نمایان یا سنگدانه های آتشفشانی قرمز رنگ تقسیم بندی می کنند.سه فانوس قدیمی و یک خانه ی چای ژاپنی متاخر بدیع،تراس ها را به باغچه هایی تیره رنگ تبدیل کرده اند.اگرچه هندسه ی طرح به طور سخت گیرانه ای مستطیلی شکل است،چهارسری پله ی مستقیم در یک محور،از محدوده ی پارکینگ به سکوی مستطیلی شکل سنگفرش شده ای می رسند که خانه بر روی آن قرار گرفته است.

 

ub7u0w9mrhwx5d9w3iq.jpg

 

r544ae86cb2ocepbkrih.jpg

 

d2yb0yt9wi1rphdcpen.jpg

 

5qcgkpz5yrwo0tkchvno.jpg

 

b537lu3g8v7p2xh9ejmq.jpg

 

در اینجا نمونه هایی دیده می شوند که یادآور خانه ی فارنزوورت اثر میس هستند،یک طبقه،با سقف مسطح،دارای قاب فلزی سفید رنگ،دال بتنی خانه که حدود یک متر بالاتر از زمین توسط یک سکوی ورودی واسط شناور است.تاثیرات آن خانه در این طراحی واضح است،اما تفاوت های مهمی نیز وجود دارند،به عنوان مثال قاب فلزی،دارای ستون های گرد به جای مقطع H شکل است و سقف به جای کنسول شدن از دو انتهای ساختمان،از کناره ها بیرون زده است.تیرهای سقفی دارای مقطع مخروطی شکل هستند که از منظر سازه ایپرمعنا بئده و یک حالت کلی ژاپنی به آن ها می دهد ولی تراس بالا آمده ی پوشیده شده از چوب بسیار نازک بوده و هیچ عنصر حفاطت کنننده ی مشهودی ندارد.چنانکه ممکن است انتظار داشته باشیم،دیوارهای خارجی اکثرا شیشه ای هستند.تمامی پانل ها مانند صفحات شوجی ژاپنی به صورت کشویی باز می شوند و یک پنجره ی باریک در بام به دور کل ساختمان پیچیده است.از ویژگی های دیگر سبک میس که در این طرح به پشم می خورد،مکعب های نرم پوشیده شده از صفحات آلومینیومی هستند که در تراس جای گرفته و به حجم اصلی متصل شده اند.این مدول ها که به صورت کاذبی پیش ساخته هستند،شامل حمام ها،آشپزخانه،دسنگاه هواساز و انبار هستند.از قرار معلوم سبک های تک نیز به کلی کنار گذاشته نشده است،استراتژی خدمات گیرنده و خدمات دهنده فضای داخلی میان ستون ها را کاملا خالی گذاشته است.پارتشین های کشویی آن را به دو دهانه ی دوبل و دو دهانه ی تکی تقسیم می کنند که به طور دلخواهی به عنوان نشیمن،ناهار خوری،هال ورودی و اتاق خواب عمل می کنند.

 

 

3tq2pumtyxc00ppldpf.jpg

 

gckdbqieuphroko3s475.jpg

 

l691pj7z9soga4mtyt50.jpg

 

yyidrl52srr0lmpmam.jpg

 

ws2ui48dj47egsar5yqg.jpg

 

 

آرایه ای پیچیده از ابزار سایه اندازی (اگر نگوییم تهویه مطبوع)،اطمینان بخش این نکته هستند که خانه ی چو ان دای مانند خانواده ی ساکن در خانه ی فارنزوورت که از حرارت جذب شده ی خورشید رنج می برند،نخواهد بود.سقف موجود در بالای فضاهای نشیمن اصلی و زندگی روزانه،مانند دستگاهی برای تنظیم نور و گرمای طبیعی عمل می کند.ردیف های شیشه ای از پانل های شیب دار در صورت نیاز با پرده های فنردار قرقره ای بیرونی افقی در سایه قرار می گیرند.در داخل خانه،سقف متشکل از حادل های کرکره ای بزرگ موتورداری می باشد تا آفتاب و نور روز به دقت یک موزه تحت کنترل باشند.

یک مدل کوچکتر از این خانه متشکل از سه دهانه ،میهمانان را در سایت مجاور خود جای داده است.

 

 

 

 

8z54hmijv8z52b6phwc.jpg

 

 

 

kxz28ambzq63l1tqzh2.jpg

1993 وسعت پروژه ها و تعدد قراردادهای بین المللی باعث شد که این شرکت ، دفتر هایی در شهر های برلین ، فرانکفورت ، هنگ کنگ ، نایمز و توکیو دایر کند . شرکت معماری سرنورمن فاستر و همکاران در آلمان ، در مسابقه طراحی پارلمان جدید برلین برنده شد . از دیگر موفقیت های وی در مسابقات معماری می توان به طرح موزه جنگ در هارتل پول و طرح مجموعه ی نمایشگاهی در لیسبون اشاره کرد . پروژه ی مرکز هنرهای معاصر در شهر نایمز فرانسه افتتاح شد . این پروژه به دلیل مشکلاتی که برای برگزاری مسابقه ( 1983) بوجود آمد ، با مدتی تاخیر انجام شد . ولی این مشکلات در ساخت مدرسه ی متوسطه شهر فرژو وجود نداشت . طراحی این مدرسه ، در سال 1991 به مسابقه گذاشته شد . انجمن معماران آمریکایی نیز ، در همین سال مدال طلای خود را به سر نورمن فاستر اعطا نمود 1993 وسعت پروژه ها و تعدد قراردادهای بین المللی باعث شد که این شرکت ، دفتر هایی در شهر های برلین ، فرانکفورت ، هنگ کنگ ، نایمز و توکیو دایر کند . شرکت معماری سرنورمن فاستر و همکاران در آلمان ، در مسابقه طراحی پارلمان جدید برلین برنده شد . از دیگر موفقیت های وی در مسابقات معماری می توان به طرح موزه جنگ در هارتل پول و طرح مجموعه ی نمایشگاهی در لیسبون اشاره کرد . پروژه ی مرکز هنرهای معاصر در شهر نایمز فرانسه افتتاح شد . این پروژه به دلیل مشکلاتی که برای برگزاری مسابقه ( 1983) بوجود آمد ، با مدتی تاخیر انجام شد . ولی این مشکلات در ساخت مدرسه ی متوسطه شهر فرژو وجود نداشت . طراحی این مدرسه ، در سال 1991 به مسابقه گذاشته شد . انجمن معماران آمریکایی نیز ، در همین سال مدال طلای خود را به سر نورمن فاستر اعطا نمود.

 

 

na5ex32ua26exhopgjua.jpg

 

برای مشاهده این محتوا لطفاً ثبت نام کنید یا وارد شوید.

  • Like 5
ارسال شده در

باب بیست و چهارم

معمار: ایساکو یوشیداو کاترین فیندلی

معماری:خانه ی تراس وال

 

lv1oa0hmm2oyaa6h0s66.jpg

 

توکیو نقطه شروع برای شرکت یوشیدا و فیندلی در سال 1987 بود که توسط معمار ژاپنی ایساکو یوشیدا ، فارغ التحصیل از دانشگاه توکیو (1976) و کاترین فیندلی معمار اسکاتلندی که در انجمن معماری (1979) آموزش دیده بود است. هر دو از همکاران سابق آراتا ایسوزاکی (بین سال های 1976 و 1982) بودند. معماری آنها در تقاطع بین مفهوم فضاست ، که به بررسی نمادین ، ​​روانکاوانه اجزاء ، وطبق یک تحقیق کاملا علمی و هندسی واقع شده است. برای آنها این مسیر انحرافی که از طریق علوم پایه ، با تمرکز بر هندسه ی هرج و مرج و غیر خطی ، که درنهایت به معنای معرفی استقلال واقعی شیء معماری است.

 

hgeyt4udy2fdkmjoo22a.jpg

House for the Third Millenium

 

 

جوایز

1988

خانه MCH مسابقه جام،طرح اول

1994

طرح اول جوایز سالانه مجله های ابتکاری برای معماری توکیو

 

 

 

 

 

خانه ی تراس وال

 

zk108xdayv1q936eu5gj.jpg

 

دانشجویان مدرن معماری این طور آموخته اند که زمینه ی طرح عامل مشخصه ی زیبایی شناختی مهمی در طراحی بوده و اکثر ساختمان های مدرن می خواهند که با محیط پیرامونشان سازگار باشند،اما اگر زمینه ی طراحی ،یک محیط آشفته ی غیر مطبوع در منطقه ی سوروکاوا از حومه ی شهر توکیو باشد چه باید کرد؟چگونه یک معمار وظیفه شناس به طور دلسوزانه ای به چیزی که از آن متنفر است پاسخ می دهد؟

در مورد یوشیدا و فیندلی،پاسخ این سوال با نادیده انگاشتن این محیط و بدین وسیله ارائه ی نظریه ای خاموش در مورد آن می باشد.خانه ی تراس وال خانه ای منفرد است که در سایتی کوچک درست مانند همسایگانش به زور جای داده شده است اما از آن جایی که همسایگان،محصول صنعت ساختمان سازی هستند که بیشتر به تولید و سود دهی اهمیت می دهد تا نور و فضا،خانه ی تراس وال قطعا یک اثر معماری محسوب می شود.تنها چیزهایی از محیط پیرامون که این ساختمان با آن ها در ارتباطی مثبت است،آسمانی در بالا و تپه هایی در دوردست ها می باشند.

 

 

 

0hn1wdyz4uiafxcdp7uc.jpg

 

3hnr1gujkt7i6mt9h5l.jpg

 

qkh7nhl041bajerlypal.jpg

 

2rpjf6ezbeekdhqo39aa.jpg

 

n8reu6723ybdq63tlr.jpg

 

 

این ساختمان یک خانه ی ارگانیک (سازگار با طبیعت) است،نه به خاطر اینکه خانه های فرانک لوید رایت ارگانیک هستند،بلکه به این دلیل که شبیه بقایای یک حیوان،شاید یک جمجمه یا پوسته ی صدفی شکل می باشد و درست مانند جمجمه،پوسته ی صدف یا لاک پشت رشد می کنند تا اندام های نرم آسیب پذیر را از محیط طبیعی بالقوه خطرناک حفاظت کنند،خانه ی تراس وال به بیرون پشت کرده است تا ساکنینش را از محیط شهری بالقوه خطرناک محافظت کند.سر و صدا و فقدان محرومیت،مشکلات اساسی این سایت بودند،راه آهن مسافربری مرتفعی که از زمین بالا آمده و به مرکز شهر توکیو راه دارد،درست در مقابل خانه قرار گرفته و زمین این پروژه آنقدر کوچک است که نمی توان فاصله ای میان خانه و خیابان ایجاد کرد.بنابراین خانه به درون خود و به بالای خود رو کرده و با جدار منحنی شکل سیال اما خام و توپر خود از محیط بیرون روی برمی گرداند.پنجره های معدود این خانه،بسیار کوچک بوده و شبیه پنجره های کشتی می باشند یا اینکه در پس لایه ای از استخوان بندی خارجی ساختمان پنهان شده اند.

 

3yi9n1tqjfgafqefyub9.gif

 

aex8ihroq4x6fq6c6.gif

 

 

l660vili2x1067cdku.gif

 

 

tfiaqv0q47idllgrddd.jpg

 

ydyj0qfbonnt2uur51aj.jpg

 

4bnxwedenijm3dzxleks.jpg

 

t2a45rirczoa8rmzpxd.jpg

 

a4hip8gxwpv4n9y8m3e.jpg

 

سه طراز اصلی در این بنا وجود دارد،اتاق خواب ها در نیم طبقه ی زیرزمین،فضاهای اصلی نشیمن و زندگی روزمره در طبقه ی همکف بالا آمده و باغچه ای در طبقه ی بالا.نکته ی اساسی کل طرح این است که فضا به طور مستمر از اتاقی به اتاق دیگر،از ترازی به تراز دیگر و از داخل به خارج ادامه دارد،به طور مثال محدوده ی نشیمن و باغچه ی سقفی به نحوی تعبیه شده اند که بتوانند فضای یکپارچه ی متداومی را به رجود آورند،با وجود اینکه یکی در داخل،یکی در خارج و یکی در بالای دیگری قرار دارد.فضا از محدوده ی استراحت نیم دایره ای،از میان تنها پنجره ی بزرگ خانه،به بیرون جریان یافته و به پاسیوی می رسد که با انحنای دیوار سفید رنگ از خیابان محافظت شده است.از اینجا تعدادی پله ی عریض بالا آمده و به باغچه ی سقفی کیسه شکلی می رسند که نرده هایی استخوانی شکل دارد.این فضاها از نگاهی دیگر حالتی ارگانیک داردن.به گفته ی معماران این طرح،این شکل ها مشابه اشکال نامشهودی از بدن انسان هستند که هنگام راه رفتن،بالا رفتن یا رقصیدن،در هوا ایجاد می شود.تجارب هنری و عکاسی ابتدای قرن 20 مانند کارهای فوتوریست های ایتالیا (جنبش هنری ایتالیا با رد سنت گرایی و تکیه بر پویایی تکنولوژی مدرن و تحرک آثار) یا ادوارد مویبریج (عکاس آمریکایی متولد انگلستان و مخترع تصاویر متحرک)منبع الهام این طرح بودند.

 

 

mc4iw19mhv3cgca6hwzk.jpg

 

q5n2on78ei1a1qfkkqug.gif

 

tpm4ktmiu1g605695k3z.jpg

 

6tnpt72ror60bu31o5vi.jpg

 

dhppr1ctr9i7cksurzvr.jpg

 

 

نام تراس وال به فرم ثبت شده ی اختراعی این ساختمان باز می گردد.خرپاهای فلزی عمودی شکل داده شده ای،با میلگرد هایی به یکدیدگر متصل هستند و با شبکه های فلزی که روی آن ها بتن ریزی شده است،پوشیده شده اند تا دیوارهای دو جداره ی عایق داری به وجود آورند.در این طرح مدل های سه بعدی از نرم افزار اتوکد به جای نقشه های عادی استفاده شد و ترسیمات ایزومتریک مفهومی خاصی،برای درک پیچیدگی های فضایی آن تولید شدند.

ایساکو یوشیدا و کاترین فیندلی یک شرکت ژاپنی - اسکاتلندی تاسیس کردند و هر دو برای آراتا ایسوزاکی کار کرده و در دانشگاه های UCLA و توکیو آموزش دیدند.آن ها تا سال 2004 که داوطلبانه شرکت خود را منحل کردند،دفاتری در توکیو،لندن و گلاسکو تاسیس کرده بودند و بی شک به دنیای معماری باز خواهند گشت.

 

 

0u26m0mpm2vg9vqvfk4y.jpg

 

 

 

  • Like 5
ارسال شده در

باب بیست و پنجم

معمار: یارن مستنبروک - وینی ماس (MVRDV)

معماری:خانه ی دوگانه

 

5r213z6jay59mbmzvlo5.jpggbsrx31nt8gk3mhvlec.jpg

 

 

وینی ماس در سال 1959 در هلند به دنیا آمد ، در سال 1983 دوره معماری منظر را گذراند و در سال 1990شرکت ام وی آر دی وی را پایه گذاری کرد.او چندیدن سال با شرکت اوما به سرپرستی رم کولهاس همکاری داشته است. در 14 پروژه از جمله پروژه ی دو کتابخانه در ژوسیو و پروژه اجوکیتوریم.

 

 

 

خانه ی دوگانه

 

fodwp5hfwzbncny6cwyw.jpg

هر معمار قبل از شروع به طراحی،برخی تجزیه و تحلیل های سیستماتیک از سایت،بودجه،نیازمندی های فضایی و آیین نامه های ساختمانی مربوط را انجام می دهد.گروه کاری هلندی به نام MVRDV این روند منطقی را به یک سبک و فلسفه تبدیل کرده اند.طراحی آن ها چیزی بیشتر از دخیل کردن عوامل فابل سنجش بوده،و تجلی ملموس و مشهودی از آن ها می باشد و تبدیل به چیزی می گردد که از آن به عنوان فرار از اطلاعات و داده ها یاد می کنند.یک نمونه ی مناسب از این امر،پروژه ای به نام شهر خوک ها می باشد که منطق فضایی و اقتصادی تولید طبیعی خوک را به صورت مکان های چند طیقه ی پرورش خوک تفسیر می کند که تغییری کاملا عقلانی اما فراتر از واقعیت است.

اما آمار هیچ گاه از نظر سیاسی بی طرف نمی باشد و باید ارزیابی و تفسیر شده تا علایق متناقض مجددا با یکدیگر تطبیق داده شوند.بنابراین فرار از اطلاعات و داده ها به اندازه ی یک دیاگرام منطقی،برنامه ای اجتماعی محسوب می شود.خانه ی دوگانه در اوترخت،ممکن است به عنوان یک برنامه ی ارتباطی میان صاحبان مشترک آن قلمداد شود.مالکین اولیه ی این پروژه با خرید قطعه زمینی بزرگ با دیدهای زیبا بر پارکی قرار گرفته در حومه ی شهر اوترخت،به زودی متوجه این نکته شدند که به تنهایی استطاعت مالی استفاده از تمامی ظرفیت های این سایت را ندارد،بنابراین شریکی برای این سرمایه گذاری پیدا کردند که تبدیل به همسایه ی نزدیکشان نیز می شد.اما این دو خانواده نمی توانستند تصمیم بگیرند که به عنوان مثال کدام قسمت طرح،دسترسی بهتری به باغ داشته یا دید بهتری بر فراز باغ دارد.از معماری به نام یارن مستنبروک کمک گرفته شد و او نیز به نوبه ی خود لز وینی ماس عضو گروه کاری MVRDV برای همکاری در این پروژه دعوت کرد.خانه ای که محصول این همکاری بود،دارای مشخصه ی گروه کاری mvrdv یعنی ترکیب اصالت و بینش واقعی بود.

 

6b6v41g82wvbzufoblkt.jpg

 

0m0geovmvc6ezzov14i4.jpg

 

gar4pbg9nrynum68kb3w.jpg

 

f1n1wd7cao45ahzbk6.jpg

 

jsgrbndsarix6945je.jpg

 

 

اولین حرکت طراحی،تعریف محدوده ی ساختمانی نسبتا بلند و کم عرضی بود که مقدار زیادی از نور روز را به خود راه می داد،در حالی که وسعت باغ پشت ساختمان را بیشتر می کرد.سوال جدید مطرح شده ،چگونگی تقسیم این حجم میان دو شریک بود،استفاده از یک دیوار مشترک مستقیم،هر دو خانوار را از وسعت فضایی و دیدهای وسیعی که این سایت در خود داشت محروم می نمود،قرار دادن یک واحد بر روی دیگری نیز به معنای این بود که تنها واحد پایینی،دسترسی مستقیم به باغ دارد.پاسخ به این سوال،آشکار ولی بدیع بود،تغییر دادن محل دیوار مشترک در هر طبقه،تفهیم این راه حل در پلان دشوار است،اما درک آن در مقطع راحت تر است.هر یک از این دو خانه دارای پلکانی عمودی است که در محدوده ی مالکیت هر واحد قرار گرفته است.دیوار مشترک بین دو واحد می تواند در هر جایی میان این دو پلکان قرار گیرد و به طور هوشمندانه ای فضا را میان این دو آپارتمان توزیع کند.این نوع آرایش در ترسیم،بسیار ساده تر از ساخت است،چرا که این دیوار مشترک نمی تواند عملکرد نرمال سازه ای خود را که انتقال بار یه زمین می باشد،داشته باشد.در این ساختمان به طور فوق العاده ای،هیچ ستون داخلی وجود ندارد و در عوض،خرپاها و تیرهای فلزی در دیوارهای داخلی و خارجی مخفی شده اند و به صورت یک قاب پیچیده ی افقی در ترازهای مختلف با یکدیگر اتصال دارند.برخلاف اینموضوع،قسمت های بزرگ شیشه ای در نماهای جلویی و پشتی وجود دارند که معمولا عرض و ارتفاع کامل هر اتاق را پوشانده اند.در غیر این صورت دیوارهای خارجی با پانل های مسطح و هم ترازی پوشانده شده اند تا تاکیدی بر مکعب انتزاعی کل ساختمان بوده و از هر گونه جلوه ی ساختاری دال بر جدا بودن این دو واحد از هم چرهیز می کند.

 

022owbp1onznllpydm56.jpg

 

0wb2d4hptraycfxbh9eh.jpg

 

38fu7phb4uhpb38tsd8.jpg

 

acw3o416d7qy0p5rb1k.jpg

 

oznp80rl75pl0rh2f8e.jpg

 

9wj3subwuhg7lbh2yq38.jpg

 

rj8vjg1x8951xq6248fl.jpg

 

odyom8h3jx76st6l8y0.jpg

 

3te03gdsk4qu4z9qpi0.jpg

 

1lzuw1t6u7vh3qe2smg.jpg

 

 

اطلاعات بیشتر را از PDF ذیل ببینید

برای مشاهده این محتوا لطفاً ثبت نام کنید یا وارد شوید.

  • Like 5
  • 2 هفته بعد...
ارسال شده در

باب بیست و ششم

معمار: گلن مورکت

معماری:خانه ی مگنی

 

9zreutxxnugvs0qlezf.jpg

گلن مورکت هنرمند صفحات موج دار فلزی است و مصالح بام خانه های حومه ی شهری بسیاری از شهرهای استرالیا،در دستان مورکت به بیانی شاعرانه از جامعه و محیط تبدیل شدند.سقف معلق،باریک و خمیده ی خانه ی مگی در بینگی پوینت در موریا در سواحل جنوبی نیو ساوت ولز می تواند سمبلی معماری لز مرهمی بومی برای لمس ملایم زمین باشد.

میس ون در رو تاثیری اولیه بر روی مورکت داشت،اما در حالی که طرح های میس بین المللی هستند و برای مکانی خاص در نظر گرفته نشده اند،طرح های مورکت پاسخی به شرایط خاص سایت،خصوصا اقلیم می باشند.او بر این عقیده است که همچنان که انسان ها در پاسخ به شرایط آب و هوایی،لباس های خود را تنظیم می کنند،ساختمان ها نیز باید چنین باشند.

 

خانه ی مگنی

 

gmzef9bw3jurxgiruw04.jpg

سقف معلق این طرح،تنها یک ژُست معماری زیبا نیست بلکه یک کلاه لبه دار با زاویه است که تابستان ها بر دیوار شیشه ای شمال خانه سایه می اندازد اما اجازه ی ورود آفتاب زمستان را می دهد تا از سقف خمیده ی اندودکاری شده گذشته و فضاهای داخل را غرق نور کند.در پایین پنجره های مرتفعی با شیشه ی ثابت،دیوار از پانل های شیشه ای کشویی ساخته شده که در سایه ی حائل های قابل تنظیم بیرونی قرار گرفته است.در سمت دیگر خانه،دیوارخارجی نیز به همین ترتیب به نواحی بالایی و پایینی تقسیم شده است،اما این بار قسمت پایینی توپر بوده و با صفحات موج دار فلزی پوشیده شده است،این صفحات موج دار مانند ساختمان های دیگر مورکت به طور افقی قرار گرفته اند.

جایی که اکثر مردم صفحات موج دار فلزی را پوشش ارزان و ساده ای برای کارخانه ها و آلونک هل می دانند،مورکت آن را به عنوان انعکاسی از مناظر کشیده ی (افقی) استرالیا می داند که نور آسمان و زمین های اطراف را در سطحی نقره ای و موج دار باز می تاباند.در بالای دیوار توپر،نواری از شیشه کاربری های باز،برای ایجاد تهویه ی مستمر با زاویه ی کمی در تراز آستانه ها قرار دارند.در دو انتهای ساختمان،سقف شبیه یک جفت بال نامتقارن است و یاد آور پرنده ای است که فرود آمده یا در حال پریذن از روز زمین است.

 

0np1gscqok0f2m57ec9u.jpg

 

ejs0sloq6yxnxcfbz94b.jpg

 

whlfxixx559vae3z84ts.jpg

اگر این خانه یک ساختمان سودمند و شاعرانه باشد،یک بنای کاملا خردگرا نیز هست.پلان به صورت خطی سازماندهی شده است.یک مسیر گردش از انتهایی به انتهای دیگر در زیر انحنای سقف حرکت کرده و یک نوار باریک خدماتی را از نوار عریض نشیمن جدا می کند.در نگاه اول در این خانه نه آشپزخانه و نه حمامی وجود دارد.اما بیشتر مجموعه ای از تسهیلات (سینک،چراع خوراک پذی،گنجه های دیواری،توالت و اطاقک دوش) وجود دارند که همگی با شیشه کاری باز در ارتفاع روشن شده اند.تنها یک پنجره ی مخصوص دید وجود دارد که در دیوار بالای سینک آشپزحانه ی اصلی جای گرفته است که شاید به اصرار کارفرما بوده است.تمامی اتاق خواب ها و فضاهای نشیمن و زندگی روزانه رو به شمال دارند و از نور آفتاب ***** شده ی آن و دید به اقیانوس از فراز این تپه ی باز بهره برده اند.یکی از شش دهانه ی سازه ای خانه ی اصلی (دهانه ی هفتمی نیز بعدها به آن اضفه شد)برای شکل دادن یک پاسیوی سرپوشیده،باز نگه داشته شده است که فضای ملاقاتی در میان قسمت های مخصوص والدین و فرزندان محسوب می شود.

 

 

n72hlwwe0lp40b9qt6q2.jpg

 

69zmx9lljbkkmiclo.jpg

 

a50yc20tp8eaa079u7.jpg

 

72upgjckrnpyk5g8z3fz.jpg

 

ityyu49jmr5zfh85m.jpg

 

  • Like 4
  • 2 هفته بعد...
ارسال شده در

باب بیست و هفتم

معمار: آمیاس کانل

معماری:برفراز و بلند

 

عکسی از معمار یافت نشد!

آمیاس کانل هزینه ی سفر خود از نیوزلند به انگلیس را با کار به عنوان متصدی سوخت در یک کشتی بخار در سال 1923 پرداخت کرد.سه سال بعد با برنده شدن کمک هزینه ی تحصیلی در مدرسه ی بریتانیایی در رم،به مدیریت برنارد اشمول،همسفران متفاوتی پیدا کرد.اشمول در سال 1929 در سن 35 سالگی به استادی باستان شناسی کلاسیک در دانشگاه لندن منصوب شد و تصمیم به ساخت یک خانه ی ویلایی برای خود و خانواده اش در شهر کوچک امرشام و با قصد سفر روزانه از حومه به شهر و برعکس گرفت و کانل را به عنوان نعمار خود برگزید.

 

برفراز و بلند

 

gfk0incqe5ykmavbfmn9.jpg

 

با توجه به شرایط ملاقات کانل و اشمول،کلاسیک بودن سبک طراحی خانه و یا حداقل سنتی بودن آزادانه ی آن،منطقی به نظر می رسید.برای مردم محلی امرشام و خصوصا مراجع ذی صلاح،برنامه ریزی پروژه ی برفراز و بلند خبری مهیج بود،یک مکعب بتنی سقید خشک بدون دکور،همراه با سقفی مسطح و با پلانی به شکل حرف Y ،این طرح یکی از اولین خانه های واقعا مدرن انگلستان بود.

لوکوربوزیه در این قضیه تاثیری بسزا داشت.کانل و پسر نیوزلندی همراهش باسیل وارد (که بعدها با یکدیگر شریک شدند) در سال 1925،نمایشگاه هنرهای دکوراتیو در پاریس را دیده و تحت تاثیر طرح پاویون دولسپریت نوو قرار گرفته بودند.

 

 

z3ybvd8yde7g3coulcx.jpg

 

4h3xxe6tpkkdhlf8cicx.jpg

 

yoe9ksmvhl6npqdvgqy.jpg

 

bkw9skqy2k9o49kjmvd8.jpg

 

 

ممکن است این نمایشگاه کوچک،آن ها را تشویق به رها کردن طراحی سنتی و روی آوردن به کارهای انتزاعی کرده باشد اما آن طرح از هر حیث با طرح برفراز و بلند متفاوت بود.خانه ی امرشام با باغ های رسمی آن که هندسه ی پلان را تا بالای تپه می گسترانند،بیشتر یک ویلای دوره ی رنسانس ایتالیایی است تا یک نمونه ی آزمایشی از خانه سازی انبوه.طرح این خانه آمیزه ای عجیب است،هم رسمی و هم غیر رسمی،هم متقارن و هم غیر متقارن،چنان که گویا تصمیم به مدرن بودن داشته اما هنوز کاملا آمادگی این که فرم به صورت طبیعی از عملکرد نشات بگیرد را پیدا نکرده است.پلان هندسی این خانه با سه بال منشعب شده از یک هسته ی شش گوش،به روش ناپخته ای با نیازهای محلی تطبیق داده شده است.بخش سه قسمتی طبقه ی همکف - نشیمن،ناهارخوری و کتابخانه - به اندازه کافی معقول به نظر می رسد،اگرچه خدمات رسانی به بال ناهارخوری،به آشپزخانه ای یک طبقه و کریدوری طولانی در یک سمت نبازمند است.

 

 

2axn26rbd7c6g9gshel.jpg

 

cjo2sntlpfg17fajpmw.jpg

 

b66j29rbjc7zf4bezi.jpg

 

v1pfa8w6168kxqidmeq.jpg

 

4z76ht6zu62a986nq06.jpg

 

 

 

در طبقه ی اول،اتاق خواب اصلی،اتاق خواب مهمان و اتاق خدمه هر کدام یک بال ساختمان را به خود اختصاص داده اند،اما فضایی برای حمام خدمه وجود ندارد و به ناچار در مکانی نا متجانس بر روی ورودی اصلی قرار داده شده است،تقارن در بالاترین طبقه،کاملا از بین رفته است،اتاق خواب کودکان و محل نگهداری شبانه ی نوزاد،بال خدمه را با یک محل نگداری روزانه ی نوزاد در بالای هسته ی شش گوش در اختیار گرفته اند.سقف دو بال دیگر،تراس هایی هستند که در سایه ی سایبان های بتنی بیرون زده ی زیبا قرار دارند.

 

 

gbjqfni12xuoh7ax82a.jpg

 

2lx8yurgdg6x3i0fmp1.jpg

 

xwa7ek501ubc1vaymgzy.jpg

 

l2oqncxh4txqmfwtg40.jpg

 

27bbcvvq2w4iii7lq1vd.jpg

 

 

 

اما این هسته ی شش گوش ساختمان است که اتفاقات اصلی فضای داخلی در آن رخ می دهد. دو وجه از سه وجه آزاد آن،توسط ورودی های اصلی و ورودی باغ به خدمت گرفته شده اند،وجه سوم بیرون آمده و پلکانی را در خود جای داده است که کاملا در دو طبقه با شیشه پوشیده شده و نور روز را به قلب خانه می رساند.

یک گشودگی دایره ای در پاگرد طبقه ی اول،فضایی با ارتفاع دو طبقه را به وجود آورده و یک گالری را تشکیل میدهد که از آن می توان یک فواره ی تزیین شده را مشاهده کرد.خانه دارای قاب بتنی مسلح با پوشاننده های آجری گچ کاری شده است.پنجره ها اکثرا نوارهای لوکوربوزیه اما با حرکات عمودی ضمنی می باشند،مانند پنجره ی شاه نشین سنتی در اتاق خواب اصلی.

چنین می نماید که ویژگی های مدرن خانه به خوبی گسترش نیافته اند،با همه ی این اوصاف شاید این طرح،یک خانه ی ذاتا کلاسیک باشد.

 

 

 

 

  • Like 10
ارسال شده در

باب بیست و هشتم

معمار:

[h=2] ماکان رحمانیان و کامران حیرتی[/h] معماری:

[h=2]ویلا کیانی[/h]ویلا کیانی در منطقه محمد شهر ( در نزدیکی کرج ) توسط ماکان رحمانیان و کامران حیرتی طراحی و ساخته شده . طراحی فضای داخلی ویلا به گونه ایست که به بخشی از لندسکیپ تبدیل شده است . سایت پروژه ، باغی با ۴۰۰۰ متر مربع مساحت ، محصور شده توسط باغ های محله ، می باشد . مساحت ساختمان حدود ۵۰۰ متر مربع است که ۱۵۰ متر مربع آن به وُید های بیرونی و فضاهای نیمه پوشیده ، اختصاص داده شده . در این پروژه ، فضاهای خارجی باز ، به مهمی فضاهای داخلی هستند و معماران با از بین بردن هرگونه فاصله مطرح میان فضای داخلی و خارجی به این هدف رسیدند . نتیجه به مجموعه ای از وُیدها و پروژه های حجمی تبدیل شد که چشم انداز را تعریف و تسخیر می کند . منظره های مستمر نسبت به محور های X و Y و Z ایجاد شده اند و فضاهای اصلی بین لایه های شفاف قرار گرفته اند که توسط وُید ها یا بالکن های نیمه پوشیده بسط داده شده اند .

 

1647634576651224167525201122341611-300x200.jpg

 

 

l2qq03l4p77se40ezedd.jpg

 

 

m4jepvqmbj3oosr1pijx.jpg

 

 

lui4opm5l5teldgwfygn.jpg

 

 

izc0qzpocd380cjy5i51.jpg

 

rlkt0etg8xydq5ryfw7n.jpg

 

 

g74jtiwebri72cm2h9i.jpg

 

3w1y86p98o8ae6xe9n8o.jpg

 

 

jr0rqy813cqqgzf7sl1t.jpg

 

romxblenefq80ah43.jpg

 

xbwfj0enqmdlfpy7a4de.jpg

 

vzcmq0muazpnomix1z7c.jpg

[h=2] [/h] [h=2][/h]

  • Like 9
ارسال شده در

باب بیست و نهم

معمار: فرانک لوید رایت

معماری: تلییزن وست

TWsection.jpg

 

 

تلییزن وست خانه‌ای است که معمار معروف آمریکائی، فرانک لوید رایت، در سال ۱۹۳۷ در آریزونا در آمریکا طراحی کرده‌است و جز یکی از برترین آثار معماری قرن بیستم به شمار می‌رود.

این خانهٔ زمستانی در نزدیکی شهر سکاتزدیل، آریزونا و در سبکی از معماری به نام سبک بین‌المللی ساخته شده آست.دیگر تصاویر تلییزن وست :

 

1pa0qkaulvfg76kjjos.jpg

 

yxlr22zgd0a8i0y8786g.jpg

 

 

fp9jtmliwyaf07029uz.jpg

 

 

um61qk35knkycak0ijve.jpg

 

 

a8fjp3h9fjn2gsqfzyg.jpg

 

 

aw3l3dwbmd3cddtk4o4s.jpg

 

aqy6cns7z88odesqnrzh.jpg

 

o0yt03cp8ijy5znjhyy.jpg

 

 

 

  • Like 8
ارسال شده در

باب سی ام

معمار: ادوارد سوتو در مورا

معماری: خانه ای در مولیدو

 

4kmuypakva2v45lzcr9.jpg

 

ادوارد سوتو در مورا عضو مدرسه ی معماری آپورتو در پرتغال به سرپرستی آلوارو سیزا می باشد.او نزد سیزا آموزش دیده و در پروژه های او از سال 1974 تا 1979 شرکت کرده است،از این رو او وارث شاخه ی محلی خاصی از مدرنیسم است که در سال های سلطه ی پست مدرنیسم،به این چنبش وفادار مانده و نهایتا به طور بین المللی در دهه ی 1990 مجددا کشف شده و از آن تجلیل شد،اما سوتو دی مورا به هیچ وجه یک سیزای دوم نیست،معماری او ساده تر،پاک تر و انتزاعی تر است.اگرچه کمتر از سیزا مجذوب کیفیت های مکان های خاص نمی باشد.او به خاطر خانه هایش که می توانند به عنوان کونه های مختلفی از یک زمینه ی طراحی نگریسته شوند،معروف است.این زمینه ی طراحی تا حدی مرهون میس ون در رو بوده و تحت تاثیر هنرمندان متاخر،به خصوص مجسمه ساز آمریکایی دونالد جاد می باشد.خانه ی مولیدو در آنچه که مربوط به مینی مالیسم (استفاده از حداقل فرم ها و مصالح)می باشئ،ساده است.ولی سادگی واقعی چنان که اکثر معماران می دانند،براحتی دست یافتنی نیست.بلکه محصول روندی طولانی از تجزیه و تحلیل ها،پالایش ها،انتخاب ها و تصمیم گیری های دشوار است.

 

خانه ای در مولیدو

 

gk8pwf005jwiimrbdznk.jpg

 

برای سوتو در مورا خصیثه های سایت مهم تر از نیازمندی های کارفرما می باشد.خصوصا در پروژه ی مولیدو که توزیع برنامه ی کاملا متدوالی از اتاق ها و فضاهای عادی داشته و سایت،نیازمند مهارت بسیاری در طراحی و جانمایی خانه است،منطقه وسیعی از دامنه ی کوه که دارای دید به سواحل اقیانوس اطلس بوده و برای کشاورزی،حالتی پله ای یافته و دارای شکست هایی به ارتفاع 1.5 مترمی باشد که با دیوارهایی از سنگ لاشه نگه داشته شده است.سوتو دی مورا در طرح خانه ی قبلی به نام بایائو نیز در سایتی مشابه این کار کرده بود.در موایدو این تراس بندی به طور ناهنجاری فاصله دار بوده و پله ها برای ایجاد سکویی مناسب برای ساخت،بسیار کم عرض بودند،بنابراین او کارفرما را به شکل دهی مجدد سایت تشویق کرد تا شکست های کمتر و بزرگتری داشته باشد.تغییر مکان دیوارهای حائل،سال های متمادی به طول انجامید و در انتها پرهزینه تر از خود ساختمان درآمد،با توزیع برنامه ای واضح،سایت پله پله و مناظر اطراف در پایین سایت،راه حل این طرح،ساخت خانه ای تک منظر،در یکی از این پله ها بود که از پشت به دیوار حائل یکی از پله ها تکیه کرده بود.یک مدال ماهرانه تر می توانست هل دادن ساختمان به عقب و در داخل دیوار حائل باشد که فضای تراس مانندی را در مقابل خانه باقی می گذارد.

 

rxpverx0rxr8zm17ckcg.jpg

 

rv5xey7gsp7xexnii1.jpg

 

4rjyilf2uartdi97q8l.jpg

سوتو در مورا پا را از این فراتز نهاده و خانه را در یکی از پله های سایت اما با فاصله ای در پشت خانه تا دیوار حائل پله طراحی کرد که چیزی بیش از یک چشمه ی نور باریک نبود،او دیوار پشتی را نیز تمام شیشه ای در نظر گرفت تا دارای دید به شیب صخره ای طبیعی باشد.این امر معماری داخلی را خصوصا در کیفیت نور روز تغییر شکل می دهد.کل تیره روشنی های مربوط به یک اتاق عادی با نور جانشین شونده ی چشمه ی نور از بین رفته اند و کریدوری که دسترسی به اتاق خواب ها را در این پلان خطی ساده فراهم می کند،از یک تونل تاریک متکی به نورگیری های فرعی تبدیل به تنگه ای طبیعی میان دیوارهای داخلی با پوشش چوب های براق و شیب صخره ای می گردد.

 

ts11l1lxo67i7jz0ikxd.jpg

 

0fzmml3iexl3urdhbwx.jpg

 

40v16qfixlke0egqxo07.jpg

 

w774q128u7vo6ptoml.jpg

 

qr37gee1kwi4hq40a5j.jpg

 

دیوار مقابل نیز کاملا شیشه ای و دارای درهای کشویی با قاب چوبی است اما عجیب اینکه احساس ضیعفی از جریان فضایی یا ایهام داخل و خارج وجود دارد.پلان کاملا منظم (که ردیفی ساده از اتاق هاست) بیشتر تاکید بر محدود کردن فضاها دارد تا باز بودن آن ها،این تاثیر با ادامه یافتن دیوارهای حائل در دو انتهای ساختمان تقویت شده است که با قسمت هایی از نمای شیشه ای همپوشانی داشته و آشپزخانه،حمام و قسمت های خدماتی را می پوشاند. مصالح خارج ساختمان به داخل آورده شده اما تغییر شکل یلفته اند،چنانکه گویا برای استفاده ی خانگی،رام شده باشند،به عنوان مثال دیوار گرانیتی حجیم زیبا در نشیمن،شبیه مدلی هموار شده از شیب صخره ای می باشد،کف ها عموما از تحته های چوبی بوده ئ سقف ها سطحی پیوسته از اندودکاری مسطح می باشند که تمامی فضاها را یکپارچه می سازند.درب ورودی خاصی برای خانه در نظر گرفته نشده است،تنها سنگفرش تراس مقابل نشیمن اشاره ای جزیی به قسمتی دارد که برای ورود ترجیح داده شده است.

 

w13w4bl4p0swhrnsb1w.jpg

 

ol6b9xw6bisq0oshsyaw.jpg

 

s8c7o66r6xxz19gqoeq.jpg

 

0dgc2sb4zi1vr3d6h8q3.jpg

 

mlsq8yfablqgaoh7kf.jpg

 

ky1453fw8acm045jz2ax.jpg

 

7cigr9uwn8aqj6020ifo.jpg

 

65rfebxqrwl1zkqnru5.jpg

 

 

 

 

  • Like 7
ارسال شده در

باب سی و یکم

معمار: ماریو بوتا

معماری: خانه ای در روتاندا

 

x42b4jy1d9lerfwfoiw.jpg

 

بوتا در اوایل حرفه ی خود با دو غول معماری قرن بیستم،یعنی لوکوربوزیه و لویی کان کار کرده بود و انعکاسی از سبک کار این دو معمار بزرگ در کارهای او به چشم می خورد،لیکن هیچ تاثیری به اندازه ی افسون ونیز،شهری که او در آن تعلیم دید،نبود.شاید کار و زندگی در این مکان زیبا غیرممکن باشد بدون اینکه متقاعد شویم معماری مدرن بی ارزش شده است و احیا مجدد تاریخ و آداب و رسوم ضروری است.

 

 

 

 

خانه ای در روتاندا

 

1kljy1wvwjnen81scrqx.jpg

 

اکثر معماران مدرن روند طراحی خانه را با تجزیه و تحلیل و سایت و توزیع برنامه ی کارفرما آغاز می کنند.با نگاه به خانه های متعددی که ماریو بوتا در تیچینو کانتون در سوئیس (جایی که معماری معاصر رونق دارد)،در می یابیم که روش او تا حدی با دیگران متفاوت است.او نه تنها با روشی شبه علمی بررسی های خود را آغاز می کند بلکه از فرم های هندسی ساده به طور متهوارنه ای استفاده می کند.

در مورد خانه ی مدیچی در استابیو که به نام خانه ی روتاندا شناخته می شود،این فرم هندسی یک استوانه ی چاق توپر بتنی به رنگ خاکستری است.این گونه نیست که فرم،سایت را نادیده بگیرد بلکه فرم ساختمان،پاسخی فکر شده به توپوگرافی و ساختمان های اطراف است.با نگاهی از سمت غرب و در مقابل دامنه که با ویلاهایی از سبک ها و گونه های مختلف علامت گذاری شده است،خانه ی روتاندا مانند نجیب زاده ای در میان استراحت کنندگان کنار استخر قرار گرفته است که چهره ای اخم آلود دارد.

این معماری رسمی و جدی،انتقادی ضمنی از محصولات بی نظم و قاعده ی فرهنگ سرمایه داری نیز محسوب می شود و آنچه در عوض پیشنهاد می کندبازگشت به حالت خوب و رفتار باوقار شهرهای سنتی اروپایی است.بوتا از ستون ها،سرستون ها و کتیبه به طور صزیحی استفاده نمی کند (اگرچه در محدوده ی پله به آن نزدیک می شود) اما با وجود این او بدون شک دست پرورده ی یک سنت کلاسیک است.

تنها یک راه برای عملی کردن پیشنهاد استوانه ای خالص وجود دارد،هیچ چیزی نمی تواند بدون از بین بردن خلوص این فرم به آن اضافه شود،بنابراین طرح باید پخته تر شده و با تفریق حجم ها از یکدیگر،با کنده کاری فضا و استفاده از بازشوهایی برای روشن کردن فضا قابل سمونت گردد.اولین ضربه ی کنده کاری،استوانه را به دو قسمت تبدیل کرده و با ایجاد شکافی در سقف،باعث ورود نور روز به میان پلان طبقه ی دوم می گردد.این شکاف در سمت جنوبی به دو قسمت تقسیم می شود تا پنجره ای افقی برای نشیمن طبقه ی اول و دوم ورودی در تراز همکف به وجود آورد.در سمت شمال،این گشودگی با محراب باریک پله بسته می شود که مانند ستونی چاق در تو رفتگی دارای پله ای از ساختمان قرار گرفته است،این یک مشخصه ی آشکار کلاسیک است که در عبارت فوق ذکر شد،بلوک های بالای محراب برای شکل دادن سرستون بیرون آمده اند.

طبقه ی همکف در داخل با رواق ورودی باز و پارک اتومبیل در همجواری هال ورودی و پلکان اشغال شده است.این فضاها نور کمتری دارند،اما طبقه ی اول با پنجره ی بزرگ رو به جنوب و نور سقفی بلندی در بالا که از طریق گشودگی کف طبقه ی بالا قابل رویت است،کاملا روشن شده است.خانه دارای پلان باز است ولی قسمت های عملکردی (فضاهای نشیمن و مطالعه در یک سمت و ناهارخوری و آشپزخانه در سمت دیگر)بیشتر با نور تعریف شده اند تا با تیغه بندی در طبقه بالا،راهروهای دو سمت گشودگی کف،دسترسی به اتاق خواب ها و حمام ها را فراهم کرده و دید به فضای نشیمن در پایین را تامین می کنند.

 

 

8pkdh4578x124o458br.jpg

 

mfblw71scq1h6dok9bn.jpg

 

z1doxbvtxyq09h6fei.jpg

 

 

 

  • Like 8
  • 2 هفته بعد...
ارسال شده در

باب سی و دوم

معمار: نيكولاس گريمشاو (Nicholas Grimshaw)

معماری: باغ بهشت بريتانيا

 

 

باغ بهشت از مهمترين پروژه هاي ساختماني هزاره و همچنين يكي از بزرگترين گلخانه هاي جهان است كه مكاني براي نمايش وابستگي انسانها به گياهان و گوناگوني بسيار زياد آنها مي باشد.

* * *

معمار: نيكولاس گريمشاو (Nicholas Grimshaw)

مكان: سنت آستل (St. Austell) ، كورن وال (Cornwall) ، انگلستان

تاريخ آغاز ساخت پروژه: ژانويه سال 1996 ميلادي

تكميل فاز نخست: عيد پاك سال 2000

پايان كليه مراحل ساختمانسازي: عيد پاك سال 2001

سبك: تكنولوژي برتر (High Tech)

مساحت: 23 هزار متر مربع

* * *

eden01.jpg

 

باغ بهشت كه در ماه مارچ سال 2001 گشايش يافت، به گونه اي برنامه ريزي شده بود تا به يكي از مهمترين جاذبه هاي جهانگردي مبدل شود. در واقع، حتا پيش از گشايش رسمي، پروژه مورد بازديد كثيري از مردم علاقمند سراسر جهان واقع گرديد.

 

سرچشمه باغ بهشت :

پروژه بهشت زاييده تفكر تيم اسميت بود كه هم اكنون مدير اجرايي باغ بهشت است. در سال 1995 وي با كمك معماري محلي بنام جاناتان بال اقدام به برآورد هزينه پروژه كردند كه حاصل، بودجه اي معادل 86 ميليون پوند براي احداث چنين باغي بود.

ايده پروژه بهشت، ساده بود: خلق مكاني توريستي در سطح كلاس جهاني كه بازگوكننده داستانهايي انساني از وابستگي انسانها به گياهان باشد، به ويژه مي بايست اين مكان به گونه اي تدارك ديده مي شد تا علاوه بر اينكه بصورت نمايشي جذاب جلوه گر شود، به اندازه كافي بلند و مرتفع باشد تا درختان سر به فلك كشيده جنگلهاي پر باران در آن جاي گيرند، همچنين به ميزان لازم وسيع و عريض باشد تا بتوان پوشش گياهي مديترانه اي را بصورت پرتگاههايي مصنوعي در آن قرار داد؛ به راستي كه باغ بهشت برازنده لقب هشتمين عجايب جهان است.

 

eden02.jpg

 

 

سايت :

يك گودال عميق رسي خارج از سنت آستل براي اجراي پروژه، ايده آل بود، چراكه هم مجموعه را در مقابل باد محافظت مي كرد و هم در بخش جنوبي آن صخره اي سنگي وجود داشت كه براي دريافت نور خورشيد مناسب بود.

ايده طرح بر مبناي خلق مجموعه اي عظيم از “گلخانه ها” بود كه در زمين شيبدار بخش جنوبي، يعني جايي كه صخره قرار داشت، برپا مي گشت و بايد يك كلكتور خورشيدي و سيستم بانك گرمايي با ذخيره سازي 24 ساعته در آن مكان مهيا مي گشت. سطح شيبدار جبهه شمالي نيز بايد جهت مزرعه هايي پلكاني با نمايشهايي تنديس گونه آماده سازي مي گرديد.

گرچه، سايت كامل و بدون عيب و نقص نبود: شكل مخروطي آن در مقابل سيل و طوفان بسيار آسيب پذير بود، خاك مناسبي نداشت و زمين ناپايدار بود. اين مسايل تماماً توسط معماران، مهندسين و متخصصان باغباني در نظر گرفته شد، اما براي اجراي اين پروژه نسبت به ديگر نقاط برتري داشت، بنابراين انتخاب گرديد؛ در واقع موانع اصلي با همكاري و اشتياق گروه همكاران پروژه از سر راه برداشته شدند.

 

eden03.jpg

 

طراحي :

مفهوم كلي، خلق تجربه اي نو بود كه بايد بازديدكنندگان را با پيش بيني، شور و هيجان و شگفتي مواجه مي كرد - منظره سازي و معماري بايد اين تصور را بوجود مي آوردند.

دو نمونه محيط داخلي وجود داشت، يكي براي گياهان نواحي مرطوب استوايي و ديگري جهت پوشش گياهي آب و هواي گرم و معتدل؛ در تكميل اين دو، باغي بيروني با محيطي وسيع براي گياهان مناطق سردسير در نظر گرفته شد.

سازه هاي دروني كه تشكيل دهنده گلخانه هايي عظيم بودند،“بيوم” نامگذاري گرديدند كه در منطقه شيبدار جبهه جنوبي گودال رسي ساخته شدند تا جلوه اي طبيعي به گياهان ببخشند.

در ابتـدا تصميم بر آن شد كه دو بيـوم با ساختاري فلزي و شيشه اي ساخته شود و سازه سقف پايانه بين المللي واترلو در لندن به عنوان الگو براي آن دو انتخاب گرديد. بنابراين از طراح پايانه يعني دفتر معماري نيكولاس گريمشاو و همكاران در جهت تحقق اين تفكر، براي همكاري دعوت به عمل آمد.

وجود درختان سر به فلك كشيده، باعث جلوگيري از رسيدن نور طبيعي خورشيد به ديگر گياهان مي شد و اين باعث مي گرديد تا گياهان بخاطر برخورداري از نور خورشيد به صورت غير طبيعي رشد نمايند.

متخصصين سازه هاي فضايي پيشنهادي مناسب ارايه دادند: در قانون ژئودوزيك، اجزا در سطوحي صاف براي ايجاد فرمي منحني به يكديگر پيوند مي خورند. يك خط ژئودوزيك، كوتاهترين فاصله بين دو نقطه در سطحي منحني است و باعث ايجاد طرحي براي فرم آزاد و پابرجا مي شود.

صاحب تفكر گنبد ژئودوزيك، معمار آمريكايي، ريچارد باكمينستر فولر (Richard Buckminster Fuller) بود، كسي كه بزرگترين گنبد را در پاويون ايالات متحده در نمايشگاه جهاني (Expo) سال 1967 مونترآل كانادا با قطري معادل 250 فوت (76 متر) ايجاد كرد.

متخصصين سازه هاي فضايي مرو، دفتر معماري نيكولاس گريمشاو و همكاران و مهندسان سازه، آنتوني هانت و شركا با همكاري يكديگر بر روي نحوه تقاطع مجموعه اي از گنبدها كار كردند. آنها پي بردند كه شيشه بسيار سنگين، انعطاف ناپذير و خطرناك براي كاربردي اينچنيني است و همچنين دريافتند كه “اتيل تترا فلوئور اتيلن” (ETFE) كه فلوئور پليمري با ويژگيهاي كششي مناسب است، براي كاربرد در اين پروژه، راه حل خوبي است. به علاوه، مقاوم و سبك وزن است (وزني معادل يك درصد همان ابعاد شيشه دارد) و شفافيتي بالا براي عبور اشعه مـاوراءبنـفش دارد؛ETFE در مقـابل نور خـورشيد فـرسايش نمي يابد و خاصيت عايقي بهتري نسبت به شيشه داراست. همچنين قابل بازيافت بوده و نيز مقاومتي معادل چهارصد برابر وزن خود دارد.

گرچه در برابر ايجاد سوراخهاي سطحي حساس است، اما به سادگي با استفاده از نوارهاي ETFE مي توان آن را تعمـير نمود. ورقه هاي ETFE بيش از بيست سال در باغ وحش بورگرز هلند پابرجـا مانده است. تصمـيم بر ساخت گرفـته شد؛ بيوم ها بايد با ورقه هاي 3 يا 4 لايه اي ETFE پوشش مي يافتند.

 

 

 

eden04.jpg

 

 

بيوم ها :

هر بيوم شامل چهار گنبد است كه با كمانهايي فلزي در محل اتصال به يكديگر تقويت شده اند. شكل ايجاد شده، حداكثر اندازه و استحكام را با استفاده از حداقل فولاد و همخواني با محيط متفاوت گودال رسي فراهم مي كند. در كل، آنها بزرگترين گلخانه هاي جهان هستند.

بيوم بزرگتر – مربوط به پوشش گياهي مناطق مرطوب استوايي – سطحي معادل 170 هزار فوت مربع (15590 متر مربع) يا 8/3 جريب (55/1 هكتار) را پوشش مي دهد و 180 فوت (55 متر) ارتفاع، 330 فوت (100 متر) عرض و 660 فوت (200 متر) طول دارد.

بيوم مربوط به پوشش گياهي مناطق گرم و معتدل، 70 هزار فوت مربع (6540 مترمربع) يا 6/1 جريب (65/0 هكتار) مساحت دارد و 115 فوت (35 متر) ارتفاع، 213 فوت (65 متر) عرض و 440 فوت (135 متر) طول دارد.

شش ضلعي ها، پنج ضلعي ها و مثلث هايي كه پيـوند آنها تشكيل دهنده بيوم هاست، تماماً داراي ويژگيهاي منحصربفردي هستند كه اين ناشي از طبيعت غيرعادي سايت مي باشد.

گرما با فنهاي بزرگ گرمازا توسط آب گرم از دستگاههاي اصلي مولد گرماي زيرزميني تأمين مي گرديد. مسير، شدت، رطوبت و دماي هوا با نرم افزار كامپيوتري كنترل مي شد؛ همچنين اين نرم افزار، بازشوها را در بالا و پايين گنبدها كنترل مي كرد. هواي گرم به سمت بالا هدايت مي شد و هواي خنك تر از بخش پايين جايگزين آن مي گرديد.

 

eden05.jpg

 

 

ساختمان :

در ابتدا، جداره هاي گودال را كه بسيار ناپايدار بودند، با زاويه اي مناسب و ايمن برش دادند و لبه هايي تراس مانند ايجاد كردند. دو هزار تخته سنگ كه تعدادي از آنها 40 فوت (12 متر) طول داشتند به سمت جداره ها رانده شدند تا مجدداً مورد استفاده قرار گيرند و در آنجا ثابت گرديدند.

فونداسيونهاي بيوم ها در پايين و بالاي ديواره هاي گودال با 5/6 فوت (2 متر) عرض، 5 فوت (5/1 متر) ضخامت و 2800 فوت (858 متر) طول گسترانيده شدند.

بيوم ها با جرثقيلي تركيبي (ايستا و متحرك) و داربست برپا گشتند. داربستهاي 192 فوتي (5/58 متري) ساخته شدند كه بلندترين سازه داربستي جهان تا آن زمان بودند.

داربستها همچنين ركورد بزرگترين حجم سازه را با 9/6 ميليون فوت مكعب (195600 متر مكعب) شكستند. درصورتيكه اجزاء به دنبال يكديگر در خطي مستقيم قرار مي گرفتند، خطي به طول 230 مايل (370 كيلومتر) ايجاد مي كردند.

دو بيوم بوسيله لينك كه ساختماني با سقفي پوشيده از چمن است و تركيبي زيبا با مناظر اطراف خود پديد آورده، به يكديـگر متـصل شـده اند و اين احساس را بوجود مي آورند كه بيـوم ها از زمين روئيده اند.

گروه طراحي تمايل داشت كه فضايي سبز در مركز گودال ايجاد شود و مسيري براي بازديدكنندگان بوجود بيايد تا سايت دلپذيرتر جلوه گر گردد.

تغييرات در وضعيت طبيعي زمين با ايجاد فضاهايي صميمي مانند “وايلد كورن وال” و مجسمه هايي غير معمول كه داراي معناي خاصي مي باشند، ايجـاد شد و از وضعيت پيشـين گودال، تنها خاطره اي برجاي ماند. مسيرها و شيبراههاي پيچدار، تصاويري زيبا از منظره سازي توسكاني پيش چشم بازديدكنندگان پديد مي آورند.

فضاهاي معـماري، تنـها حدود يك چـهارم سـايت را به خود اختصاص مي دهند، بقيه سايت شامل بخشهايي است كه هريك مفهوم خاصي دارند و به ميـزان قـابل توجـهي از گيـاهان منطقه معتدل و تنـديس هاي طـراحي شـده توسط مشاورين كاربرد زمين پوشيده گرديده اند.

  • Like 7
ارسال شده در

باب سی وسه

معمار: سانتياگو کالاتراوا

معماری:موزه هنر ميلواکی

 

نوآوری معمارانه موزه هنر ميلواکی در ابتدای قرن بيست و يکم با نوآوری قصر بلورين اثر جوزف پاکستن در قرن نوزدهم قابل مقايسه است. اين بنا نيز همچون تنديسی زيبا و هنرمندانه در محيط اطراف خود می درخشد.

 

05.jpg

 

مشخصات ساختمان MAM

معمار : سانتياگو کالاتراوا

مکان : ميلواکی ، ويسکانسن ، ايالات متحده

تاريخ ساخت : سال 1994 تا 2001 ميلادی

مساحت کل ساختمان : 13هزار متر مربع

طول بنا : 149 متر

بيشترين عرض بنا : 43 متر

حداکثر ارتفاع بنا : 3/11 متر

هزينه اجرای پروژه : بيش از 100 ميليون دلار

 

02.jpg

 

بدون شک ، موزه هنر ميلواکی از برجسته ترين آثار معماری سانتياگو کالاتراوا محسوب می شود که ترکيبی متنوع و پيچيده از معماری و سازه است. در اين بنا هم سقفهای مواج و متحرک موجود است ، هم پلی معلق و زيبا و هم نورپردازيهای خلاقانه. در مجموع ، اين شاهکار در زمره برترين آثار معماری جهان قرار می گيرد ، هرچند اين عنوان را نيز در سال 2001 از ديدگاه مجله TIME کسب نمود و همچنين در همان سال در نظرخواهی عمومی وب سايت جايزه معماری پرايتزکر ، بيشترين آرا را به خود اختصاص داد ، اما در پايان ، گلن مورکات استراليايي در پايان جايزه مذکور را از آن خود نمود.

 

 

 

03.jpg

 

هنگامی که ساخت ضميمه موزه هنر ميلواکی (MAM) به پايان رسيد ، در مراسم افتتاحيه آن که در 14 اکتبر سال 2001 انجام پذيرفت ، سی و دو هزار نفر به بازديد آن شتافتند ، به گونه ای که تمامی محوطه به اشغال جمعيت مشتاق درآمده بود. تا پايان سال 2001 (يعنی مدت زمانی کمتر از هشت ماه) ، 375 هزار نفر از موزه بازديد کردند. اين آمار در سال 2003 به حدود 434 هزار نفر رسيد ، درصورتيکه در سال 2000 ميلادی ، تنها 165 هزار نفر از آن ديدن کرده بودند. پس از گشايش ضميمه موزه ، روزانه افزون بر 5000 نفر از آن بازديد می کنند درحاليکه پيش از اين ، به طور متوسط هزار نفر از موزه ديدن می کردند.

 

 

 

09.jpg

 

طرح کالاتراوا ، نمايانگر قدرت معماری است ، به گونه ای که اين بنا امروزه تبديل به نماد شاخص شهر ميلواکی شده . به زودی ، جهانيان اين شهر را به لحاظ دارا بودن چنين اثر زيبا ، خلاقانه و اثر گذار تحسين می کنند و همواره آن را به ياد دارند.

08.jpg

 

 

رابرت گرين استريت ، رئيس دانشکده معماری و برنامه ريزی شهری دانشگاه ويسکانسن ، استاد کميسيون برنامه ريزی شهری و يکی از اعضای کميته بيست و يک نفری معماران برگزيده انتخاب کننده طراح ضميمه موزه در سال 1994 ، ضمن برگزيدن کالاتراوا از ميان معماران مطرح جهان همچون «آراتا ايسوزاکی» و «فوميهيکو ماکی» اظهار داشت: من کاملاً مطمئنم که شهروندان از خلق اين اثر فوق العاده ، هيجان زده شده اند و اين مهر تأييدی بر گزينش صحيح ما در انتخاب معمار بزرگ ، سانتياگو کالاتراوا است.

 

 

 

04.jpg

 

 

 

لازم به ذکر است که ضميمه موزه هنر ميلواکی که نخستين اثر معماری کالاتراوا در ايالات متحده است به ساختمانی که پيش از اين توسط «ارو سارينن» ، معمار خلاق فنلاندی – آمريکايي ، در سال 1957 تکميل شده بود ، الحاق گشت.

 

06.jpg

 

 

 

 

07.jpg

 

 

01.jpg

 

 

  • Like 6
  • 1 ماه بعد...
ارسال شده در

باب سی وچهار

محل: استرالیای شمالی ،Darwin

معمار:گروه معماری Tropp Architects

معماری: خانه rozak

مساحت کار:200 متر مربع

هزینه:596 247 یورو سال:2001

 

 

خانۀ Rozak در طبیعت شمال غرب استرالیا به کمال القإ شده است،در منطقۀ Perchée بر روی تپه ای صخره ای که در میان دریاچۀ Bennet محاصره شده است،در طبیعتی سخت که چندان میهمان نواز نمی باشد. اسلوب بنا متشکل از سه عمارت بر روی پیلوت می باشد،دو عمارت شب شامل فضاهای خواب و یک عمارت روز در نمای جنوبی که در بر گیرندۀ سالن ها و آشپزخانه می باشد،که مجموعأ توسط راهروهای ارتباطی بنای واحدی را هویت می بخشند. سقف های شیب دار ــ از جنس ورقه های فولادی موجدار ــ با بیرون زدگی فاحش خود که یاد آور نرده های پنجره می باشند،تصویر سادگی ساختمان را قوت می بخشند. سه عمارت بنا عمیقأ ایوان های سرپوشیده ای را تداعی می کنند که الوار های چوبی کف راهروها در میانشان ریشه دوانیده اند. در نمای جنوبی،باز شو ها تنها با توری های فلزی ــ جهت ممانعت ورود حشرات ــ پوشیده شده اند که در واقع برون و درون بنا را در ارتباطی تنگاتنگ قرار می دهند،چنانکه زیستن در فضای آزاد را به نهایت می رساند. کرکره های چوبی و بعضأ شیشه ای،توری های فلزی و کف سازی چوبی خانه،تهویه و گردش هوا را بهبود بخشیده و نیز به واسطۀ مصالح سبک به کار رفته بنا از آب و هوای استوایی منطقه محفوظ می ماند. گفتنی است که سازۀ سبک و ظریف بنا را در همگونی کامل با طبیعت اطراف قرارداده است،به گونه ای که حقیقتأ زیستنی همسان بومیان استرالیا را میسر می سازد.به طور کلی مفهوم،سازه و فرم بنا گونه ای سکونت ناپایدار را تداعی می کنند.

 

 

01.jpg

 

) گوشه های درخشندۀ خانۀ Rozak بر روی تپۀ صخره ای.

 

 

02.jpg

 

2) دو عمارت به فضای مرکزی ورودی پهلو زده اند.

 

 

03.jpg

 

3) بیرون زنگی شقف ها،نما را از باران و آفتاب محافظت می کنند.

 

 

04.jpg

 

4) نقطۀ مرکزی حرکت ما بین فضاها.

 

05.jpg

 

5) راهروها،پاویون ها را به هم مرتبط می کنند.

 

06.jpg

6) پلان همکف

  • Like 6
  • 4 هفته بعد...
ارسال شده در

باب سی وپنجم

خانه های مکعبی راندوم در رتردام

مکان: رتردام - هلند

ساخت: ۱۹۸۲ تا ۱۹۸۴

معمار: Piet Blom

کاربری: مسکونی

 

 

9-urban-rooftop-national-museum-extension-copy1.jpg

 

هر کدام از این مکعبها یک خانه هستند که به سه قسمت طبقه پایین – وسط و بالا تقسیم شده است. طبقات پایینی و بالایی به شکل مثلث هستند. از طبقه پایین برای اتاق نشیمن – طبقه وسط برای اتاق خواب و سرویس بهداشتی و طبقه بالایی نیز برای اتاق خواب اضافه و یا اتاق نشیمن اضافه استفاده میشود.

برای مشاهده این محتوا لطفاً ثبت نام کنید یا وارد شوید.
خانه های مکعبی رتردام هلند

 

برای مشاهده این محتوا لطفاً ثبت نام کنید یا وارد شوید.
معماری نامتعارف خانه های مکعبی رتردام

 

برای مشاهده این محتوا لطفاً ثبت نام کنید یا وارد شوید.
معماری های جالب سر تا سر دنیا: خانه های مکعبی هلندی

 

برای مشاهده این محتوا لطفاً ثبت نام کنید یا وارد شوید.
نمایی از معماری داخلی خانه های مکعبی - اتاق خواب

 

برای مشاهده این محتوا لطفاً ثبت نام کنید یا وارد شوید.
معماری داخلی خانه های مکعبی - اتاق نشیمن

 

 

  • Like 6
  • 1 ماه بعد...
ارسال شده در

کلیسای جامع برازیلیا (برزیل) - Cathedral of Brasilia (Brazil)

مکان: برازیلیا، برزیل

تکمیل شده در سال ۱۹۷۰

معمار: Oscar Niemeyer

نوع ساختمان: کلیسا

ستونهای این کلیسا به طوری طراحی شده اند که بیانگر دو دستی باشند که به سوی آسمان دراز شده اند.

برای مشاهده این محتوا لطفاً ثبت نام کنید یا وارد شوید.
کلیسای جامع برازیلیا - برزیل

 

برای مشاهده این محتوا لطفاً ثبت نام کنید یا وارد شوید.
کلیسای جامع برازیلیا - برزیل

 

برای مشاهده این محتوا لطفاً ثبت نام کنید یا وارد شوید.
کلیسای جامع برازیلیا (برزیل) – Cathedral of Brasilia (Brazil)

cathedral-of-brasilia-brasil-main2-copy-666x500.jpg

کلیسای جامع برازیلیا (برزیل) – Cathedral of Brasilia (Brazil)

 

  • Like 6
  • 4 ماه بعد...
ارسال شده در

باب سی و هفتم

 

معمار: زاها حدید

 

مکان: ویلم راین، آلمان

سال ساخت: ۱۹۹۱- ۱۹۹۳

 

fire-station-zaha-hadid-001-480x319.jpg

 

 

 

ایستگاه آتش نشانی ویترا اولین پروژه تحقق یافته در زندگی حرفه ای زاها حدید شد و در سال ۱۹۹۳ تکمیل شد و در نهایت مسیری برای آشنایی نام و سبک او به مخاطبان بین المللی شد.

 

 

ایستگاه آتش نشانی ویترا، ویترین کار حدید است که به صورت معماری دیکانستراکشن نمایان شده و از طریق مفهوم بخشیدن به روابط فضایی و فرم توسعه پیدا کرده است. ایستگاه آتش نشانی ویترا ترکیب فلسفه و معماری است. این ساختمان در حین حرکت بی حرکت است ، کل ساختمان متناسب با بافت و کارکرد از بتن اکسپز ساخته شده است در این بنا توجه خاصی به تیزی لبه ها شده و از هرگونه الصاق و روکش کاری برای لبه ها، بام و نما اجتناب شده است.

برای مشاهده این محتوا لطفاً ثبت نام کنید یا وارد شوید.

صفحات بتنی تجسم خصوصیت سنگینی و ماتی است که محدود به داخل ساختمان است.

برای مشاهده این محتوا لطفاً ثبت نام کنید یا وارد شوید.

فضای داخلی ایستگاه آتش نشانی به همان اندازه فضای بیرونی ساختمان پیچیده است. امروز، خانه آتش نشانی به یک موزه تبدیل شده.

 

 

 

  • Like 7
  • 2 ماه بعد...
ارسال شده در

باب سی و هشتم

معمار: مارسل بروئر

معماری:کلبه ی چیمبرلین

 

898o5m02eqg89ls0dr9.jpg

 

بروئر، مارسل لاجوس 5 در سال 1902 – 1981 زندگی کرد. معلم، طراح، و معمار مجارستانی- امریکایی بود کسی که کمک کرد تا اصول عملکردی تحت سبک بین المللی به ثبت برسد.

 

بروئر در شهر پکس، مجارستان در تاریخ 21 / 5 / 1902 بدنیا آمد. او در مدرسه طراحی باوهاس در ویمار، آلمان 6، درس خواند، جایی که والتر گروپیوس معمار 7 و دیگران در حال توسعه زیبایی ها، و تکنولوژی نوین آن بودند. مدیر طراحی مبلمان مدرسه باوهاس، بروئر اولین صندلی های به روز، ساخته شده ازتخته چندلا روی قاب های مدولار فلزی لوله ای مناسب برای تولید انبوه را طراحی کرد. از سال 1928 به برلین سفر کرد و معماری را با طراحی قاب های مدولار پولادین و خانه بتنی هارنیشماخر (ویزبادن 1932) 8 ادامه داد.

 

بعد از برافراشتن نازی پارتی، بروئر در سال 1933 به سرعت به انگلستان و در سال 1937 به ایالات متحده رفت. در آنجا زیر نظر گروپیوس، در توسعه مدرسه معماری دانشگاه هاروارد کمک کرد. همچنین او خانه های همچون خانه خودش در لینکولن، ماسا چوست (1939)، را با مصالح بوم آورد را طراحی کرد. در سال 1946 بروئر کاری دیگر را اجرا کرد. همراه با پیر لوئیجی نروی 9 ایتالیایی، و برنارد زحرفاس 10 فرانسوی، ساختمان مرکزی یونسکو در پاریس11 را اجرا کردند.

 

دیگر کارهای بزرگ او شامل فروشگاه بزرگ دو بیژنکورف (بی حایو) در روتردام در سال (1961) 12؛ مرکز پژوهش آی بی ام در لا گاغد، فرانسه در سال (1962) 13؛ موزه هنر امریکایی ویتنی در شهر نیویورک در سال (1966) 14؛ وکلیسای صومعه سنت جان در کالج ویل، در مینستوتا (1967) 15. درکل ساختمانهای او با ترکیب بلوک های ساده بطور ناهموار، سنگهای ناتمام، یا بتن و چوب می باشد.

 

برای مشاهده این محتوا لطفاً ثبت نام کنید یا وارد شوید.

 

 

 

 

کلبه ی چیمبرلین

 

jbb02u0or1e0uucki9y3.jpg

 

این کلبه مخصوص تعطیلات آخر هفته ی یک زوج مسن می باشد و با وجود اینکه کوچک و صراحتا ساده است از نظر معماری و سازه ای تا حدی پیچیده به نظر می رسد.مکعب حاوی فضاهای نشیمن اصلی،یک فرم مدرن واضح است که مانند یکی از مکعب های سفید لوکوربوزیه،از روی زمین بالا آمده و در یک انتهای خود،به اندازه 2.5 متر به بیرون کنسول شده است،اما این کلبه نه سفید بوده و نه بر روی پیلوتی بلکه بر روی یک صخره ی طبیعی در نیم طبقه ی زیر زمین قرار دارد.ساختمان هیچ پنجره ی نواری نداشته و فقط دارای پنجره هایی با قاب فلزی استاندارد می باشد که دیوارههای پوشیده شده از چوب صنوبر را سوراخ کرده اند و شبیه خانه های آمریکایی ییلاقی معمولی دیگر می باشد.از اینرو این سبک بین المللی،با مشارکت مصالح طبیعی و سنن ساختمان سازی محلی،تا حدی تلطیف شده است.

 

 

بروئر مجذوب فرم قاب خمشی این خانه که در آمریکا معمول بود گردید.کف ها دارای پانل های سبک قاب شده در ستونک های لاغر چوبی به فواصل کم بوده و با توفال های سقف پوشیده می شوند.پانل ها بر روی فونداسیون های نواری و یا دیوارهای زیرزمین قرار داشتند،اما بروئر که مسول کارگاه نجاری در باهاوس بود،فکر می کرد که می توان با این چوب ها نیروی بیشتری وارد کرد.این کف ها با پوشش داخلی قطری از تخته کوبی ها می توانستند به تیرهایی با ارتفاع یک طبقه تبدیل شوند و توانایی پوشش دهانه های عریض و کنسول های بلند را داشتند.این امر راز کنسول 2.5 متری کلبه ی چیمبرلین است.هیچ قابی بتنی یا فولادی مخفی شده ای وجود ندارد،اگرچه دهانه ی کف توسط تیر طولی که بر روی دو ستون در زیر زمین قرار گرفته کم عرض تر شده است،انتهای این تیر در نمای غربی،دارای یک پوشش چوبی کم شیب است.

 

 

مکعب ساتمان در داخل،با خط تیر طولی به دو زون عریض و باریک تقسیم شده است که همتای خود را در تراز سقف نیز به این صورت دارد.آشپزخانه،حمام و رختکن،زون باریک را اشغال کرده اند و نشیمن،ناهارخوری و اتاق خواب در زون عریض قرار گرفته اند،اما برجسته ترین ویژگی طرح،شومینه ی مستقل ساخته شده از سنگ طبیعی و دودکش آن می باشد که به نظر می رسد از زیر زمین بالا آمده است.علاقه ی بروئر به سنگ طبیعی،ممکن است ریشه در انگلستان داشته باشد،جایی که او نیز مانند همکارش والتر گروپیوس در سفر خود از آلمان به ایالات متحده،به مدت یک سال در آنجا اقامت گزید. او در همکاری با اف آر اس یورک در گیر طراحی نمایشگاهی از مبلمان با دیوارهایی از سنگ و شیشه ای و سنگ کاتزولد گردید.

 

 

در قسمت شمالی این کلبه،سقف و کف مکعب اصلی ساختمان بیرون زده و بر روی دیرکی چوبی برای شکل دادن ایوان سرپوشیده ی وسیعی که اطراف آن باز است قرار گرفته است.این ایوان با یک رمپ کوتاه از باغ قابل دسترسی است فضای کافی در زیر کف آن برای ذخیره کردن چوب وجود دارد.

 

 

منتقدین به این امر اشاره کرده اند که این سازه ی کنسول شده ی زیبا می تواند الهام گرفته از خانه ی فارانزوورت اثر می ون در رو باشد که این ایده در آن طرح با فولاد اجرا شده است.بنابراین کلبه ی چیمبرلین سه سیستم سازه ای مجزا از یکدیگر را ترکیب می کند،سیستم دیوار باربر در زیر زمین،سیستم قاب خمشی برای مکعب نشیمن اصلی و سیستم تیر و ستون برای ایوان.بروئر خود این خانه را به عنوان زیباترین طرح میان حدود صد خانه ای که در طول دوران طولانی حرفه اش طراحی کرده به شمار آورده است.

 

منبع نوشتار کتاب شاهکارهای معماری مسکونی در قرن بیستم/کالین دیویس،امین لوفا

حروف چینی:سام:icon_redface:

 

 

برای دانلود سه بعدی این بنا در قالب فایل اسکیچاپ به

برای مشاهده این محتوا لطفاً ثبت نام کنید یا وارد شوید.
مراجعه کنید.:icon_redface:

mybhf58kz06d7sdnk09x.jpg

 

4bg7d9xkmaj2ck8j7uny.jpg

 

yjyjxxvmesf394qn3qy3.jpg

  • Like 7

×
×
  • اضافه کردن...