رفتن به مطلب

ارسال های توصیه شده

ارسال شده در

باب اول

معمار:ریچارد میر

معماری:خانه ی داگلاس

 

5mczuuvvfb2mnm5xln.jpgریچارد میر متولد 1934 نیو جرسی در دانشگاه کرنل در رشته معماری تحصیل کرد. ریچارد میر ملقب به شوالیه سفید پست مدرنیسم پیش از تاسیس دفتر کار خود در نیویورک در سال 1963 ، با سام و مارسل بروئر همکاری می کرد.وی ابتدا در زمینه ساختنمان سازی برای طبقه مرفه فعالیت کرد همچنین مطالعات وسیعی در زمینه ساختمان های عمومی انجام داد و در سال 1969 ، به عضویت گروه پنج نیویورک در آمد.

 

سفیدهای گروه پنج ( ریچارد میر، پیتر آیزمن ، مایکل گریوز ، جان هجداک ، چارلز گواتمی) برای مخالفت با ونتوری و گریز دوره سفید ، قهرمانان ، رایت ، گروپیوس ، تراگنی و به خصوص لوکوربوزیه را احیا کردند ، اما مسائلی از زیبایی شناسی را در خود به کار بردند که خالی از هر گونه تعهد و تعصب اجتماعی بود.

 

سفید رنگ مورد علاقه ریچارد میر است و این چیزی بیش از یک تمایل شخصی است و سخنان زیادی را در مورد دیدگاه اصلی میر به معماری بیان می کند،او می خواهد ساختمان هایش در تضاد نور و رنگ با پیرامونشان و در کل با طبیعت باشند،تا اینکه با طبیعت ادغام شده و یا رشد خود را از دل طبیعت آغاز کنند،او می خواهد جهت های دید را به حداقل ممکن برساند تا اینکه بیننده بتواند بر روی چیزی که لوکوربوزیه بازی ماهرانه ،درست و باشکوه فرم ها در نور می نامند،تمرکز کند و نیز او مادیت ساختمان را (لذت استفاده از کیفیت های خاص مصالح ساختمانی مختلف)چنان با اهمیت نمی پندارد،اینکه مصالح از چوب،فلز یا بتن باشند تا زمانی که به رنگ سفید درآمده باشند فرقی با یکدیگر ندارند.ساختمان های میر تمایل به ایستادن در محیطشان و شناساندن خود به اطراف تا فرم ها،رنگ ها و بافت های آن را واضح و مشهود سازند.

 

 

x9219lntab87s4d4kxbu.jpg Atheneum

 

poj1vk3ydmbzcafm6kt.jpg

modern white beach house

 

ریچارد می یر بخاطر معماری و طرحهایش در تمام جهان شناخته شده و قابل احترام است.کمیسیونهای ارشد در ایالات متحده و اروپا شامل: کاخ دادگستری، تالارهای شهر، موزه ها، headquarterهای یکی شده، خانه سازی و اقامتگاههای شخصی را دریافت نموده. در میان اکثر پروژه های مشهورش، Getty Center در لس آنجلس، High Museum of Art در آتلانتا، جورجیا؛ موزه هنرهای تزئینی فرانکفورت آلمان، Canal + Television Headquarters در پاریس و موزۀ هنرهای معاصر بارسلونا در اسپانیا به چشم می خورند.

خانه ی داگلاس

 

vddv57hfgzqk31e1i01.jpgخانه داگلاس

 

خانه ی داگلاس نمونه ی کاملی برای روشن ساختن این مطالب است،این خانه با غرور میان درختان همیشه سبز و بر روی زمینی پرشیب و رو به مغرب در ساحل دریاچه ی میشیگان قزاز گرفته است و حضور آن ساحل را تغییر شکل داده و به آن مقیاس و شکوه می بخشد.خانه باعث می شود که محیطی طبیعی اطراف به عنوان موضوعی انسانی مطرح شود.در نگاه اول،خانه موضوعی تا حدی پیچیده به نظر می رسد،نمای رو به دریاچه با خطوط متقاطعی شبیه نقاشی های موندریان پوشیده شده است،فقط با این تفا,ت که سیاه نبوده و سفید می باشد و نیز رنگ خالصی در این میان به چشم نمی خورد.یک جفت دودکش فلزی که به طور هنرمندانه ای،غیر هم محور قرار گرفته اند،نقطه ی کانونی ترکیب بندی هستند و مانند میله ی راس کلیسا یا برج ساعت یک عمارت شهری به نظر می رسند.تراس های بازی در انتهای جنوبی خانه و بر روی سقف وجود دارند و اکثر فضاهایی که باز نیستند با شیشه محصور شده اند،هر چیزی دیگری از مصالح سفید مسطحی پوشیده شده است که در بررسی نزدیک تری،پوشش های چوبی می باشند که عمودی قرار گرفته،رنگ شده،جلا داده شده و اتصالاتشان از دید پنهان شده است.

 

 

155mw8dhx5i79qvjtcu1.jpg

 

 

loannv8cqg7lrzyo9mxp.jpg

 

 

 

دیاگرام اصلی خانه به اندازه ی کافی ساده است، یک مکعب سه طبقه که در روی سکویی تو پر قرار گرفته و در مقطع به دو قسمت.یکی خصوصی،شامل محدوده ی اتاق خواب ها که رو به شیب هستند و دیگری عمومی که در برگیرنده ی زون نشیمن است و رو به دریاچه دارد،تقسیم شده است.این دیوار تقسیم کننده ی فضا صفحه ای ساده است که از پایین تا بالا کشیده شده و دارای نورگیر سقفی بزرگی در بالا و پنجره های افقی می باشد که برای دید از کریدور اتاق خواب ها به نشیمن آن را سوراخ کرده اند.

 

 

lyanr9jysj6t8talk0c.jpg

 

 

khyv7z47q7wr95ny2pry.jpgدیاگرام

 

 

 

در قسمت عمومی خانه،قسمت هایی از کف برای ایجاد فضاهایی به ارتفاع دو یا سه طبقه حذف شده اند و ارتباط میان اتاق های محصور و تراس های باز،با تغییر مکان دیوارهای بیرونی غیرباربر در هر تراز تغییر داده شده است.گاهی اوقات این برش ها و جا به جایی ها از فرم هایی منحنی تبعیت می کنند که یادآور فرم های خاص در ویلاهای لوکوربوزیه هستند.به یاد می آوریم که میر عضوی از گروه پنج معمار نیویورک می باشد که در دهه ی 1960 با شاهکار هایی از مدرنیست ابتدایی،مجددا مورد توجه قرار گرفت و میر فرم های آن ها و نه مصالح و سیاست های آرمان شهری شان را منبع الهام خود قرار داده بود.

 

 

swab537u5j6clkh2o4c.jpg

نشیمن دو طبقه

 

u07jwvqsfdsg71tp2zt3.jpgنشیمن دو طبقه

utdzcgd80lonfpisdim.jpg

نمای رو به دریا

 

o33jpqp0f13as474cx9.jpgنمای رو به دریا

utns9xqhnl1c9w12pd55.jpg

ورودی خانه در تراز سقف و از طریق پلی طولانی از فضای پارکینگی است که در دل شیب کنده شده است.یک پلکان ساده با دو بازو در گوشه ی شمال شرقی خانه ،تمام تراز ها را با یکدیگر مرتبط می سازد.پله ی خارجی دیگری با بیرون زدگی به سمت دریاچه،تراس ها در کنج مقابل به یکدیگر مرتبط می سازد.از پایین ترین پاگرد این پله می توان با نردبانی که در صخره ی طبیعی پای ساختمان نصب شده است به مسیری پیاده دسترسی پیدا کرد که به ساحل راه دارد.

 

 

h7yjn5t8a132z66u2zmk.jpgورودی به خانه از طریق پل

i39lxtu49pmikow7cbmf.jpg

 

 

hamwja0ba5gc0a1lttqg.jpg

 

 

ywtx1xv9uk2amiwdsakp.jpg

تراس مشرف به ناهارخوری

 

0h1ktkotjmxl99f26fb.jpg

 

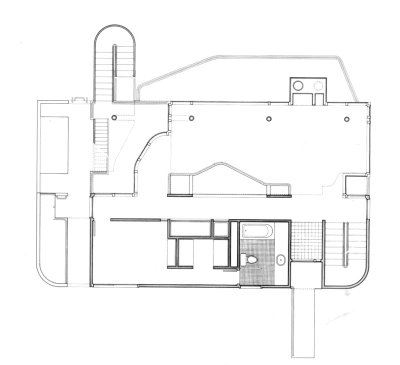
پلان طبقه همکف

np9c1rytmkjz2j9ubjr.jpg

پلان طبقه اول

 

9tlvqe5jz1mndwb54xjc.jpg

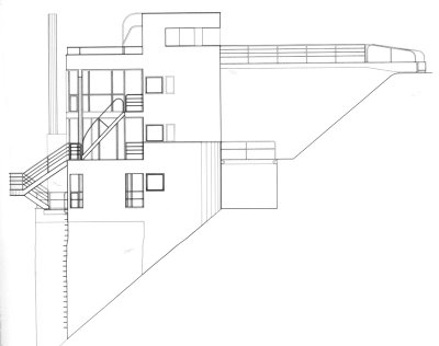
نمای غربی

 

d82umvi074giugxzrja.jpg

نمای شمالی

 

 

 

 

 

 

ریچارد می یر برترین افتخارات موجود در معماری را دریافت کرده است:

-در ۱۹۸۹ موسسۀ سلطنتی معماران بریتانیا مدال طلای سلطنتی را به او تقدیم کرد

- در۱۹۹۲ دولت فرانسه امتیاز ویژۀ Officier de l’Ordre des Arts et desLettres را به او اعطا کرد.

- Deutscher Architekture Preis را در ۱۹۹۳دریافت کرد .

- در ۱۹۹۵ فرد منتخب آکادمی علوم و هنر آمریکا می شود.

- در ۱۹۹۷ مدال طلای AIA را در تشخیص موفقیتی ابدی در هنرها از موسسۀ معماری آمریکا به خوبی Praemium Imperiale از دولت ژاپنی دریافت کرد.

- در سال ۱۹۸۴ جایزۀ Pritzker را بخاطر بالاترین امتیاز در زمینۀ تفکر صحیح در معماری دریافت کرد؛ او جوانترین دریافت کنندۀ این جایزه در تاریخ Pritzker Prize بود. در همان سال می یر از نظر هیئت داوران برای طراحی ۱ میلیارد دلاری Getty Center در لس آنجلس- کالیفرنیا، معمار منتخب شناخته شد.

او مقالات متعددی در سراسر جهان ارائه داده است و در موارد بیشماری از اعضای هیئت داوران مسابقات مختلف بوده است. کتابهای زیادی تالیف نموده و موضوع بسیاری از کتابها، ویژه نامه ها، روزنامه ها و مقالات بیشماری در مجلات بوده است.

علاوه بر عضویت در هیئت مدیرۀ Cooper Hewitt National DesignMuseum و American Academy در رم همچنین عضو آکادمی هنر و علوم آمریکا، آکادمی معماری بلژیک و فرانسه، Bund Deutscher Architekten و آکادمی هنر و ادبیات آمریکا نیز می باشد؛ به واسطۀ اینکه جایزۀ Brunner در معماری را در ۱۹۷۶دریافت کرد

می یر از سال ۱۹۵۶ در Cooper Union، دانشگاه Princeton، موسسۀ Pratt، دانشگاه هاروارد، دانشگاه Yale و UCLA آموزش دیده است. او کلاس Frank T. Rhodes (استاد دانشگاه در دانشگاه Cornell (را بدست می گیرد

او هم چنین عضو موسسۀ معماران آمریکاست که نشان افتخار New York Chapter را در ۱۹۸۰ و مدال طلا از Los Angeles Chapter را در ۱۹۹۸ دریافت کرد. جوایز متعدد طراحی اش شامل:

۲۹ نشان افتخار AIA بین المللی و ۵۳ جایزۀ طراحی AIA نیویورک.

آقای می یر مدرک معماری اش را در دانشگاه Cornell دریافت نمود و درجات افتخاری از دانشگاه Naples، موسسۀ تکنولوژی نیوجرسی، مدرسۀ جدید پژوهشهای اجتماعی، موسسۀ Pratt و دانشگاه بخارست.

 

 

51z9sez002tzdymez6p.jpg

برای مشاهده این محتوا لطفاً ثبت نام کنید یا وارد شوید.

  • Like 24
  • پاسخ 41
  • ایجاد شد
  • آخرین پاسخ

بهترین ارسال کنندگان این موضوع

بهترین ارسال کنندگان این موضوع

ارسال شده در

باب دوم

معمار:پیتر آیزنمن

معماری:خانه ی شش

 

17xabcbm0wlaujvpy3b8.jpg

پیتر ایزنمن یک معمار ویک معلم میباشد پيتر آيزنمن در ۱۱ اگوست سال ۱۹۳۲ در نيویورك، ايالت نيوجرسي به دنيا آمد. او مدرك ليسانس معماري خود را از دانشگاه كرنل، مدرك فوق ليسانس خود را از دانشگاه كلمبيا و دكتراي خود را ازدانشگاه كمبريج دريافت كرد

به وی یک دكتراي افتخاري هنرهای زيبا از طرف دانشگاايلينويزشیکاگو اهدا گردیده است.در سال 1967وی انستیتو نیویورک را برای دانشجویان معماری وشهر سازی تاسیس کرد پیترایزنمن ساختما نها را با دو معيار مي سنجد يكي اينكه چه مدت در تعلق به حال باقي مي مانند و ديگر اينكه چه مدت در تاريخ خودشان را حفظ مي كنند او معتقد است كه: بعضي از ساختمانهاي كنوني بودن خود را از دست ميدهند و هرگز جزئي از تاريخ نمي شوند . ساختمانها مي توانند 50 تا 100سال تعلق به حال داشته باشند.او در حال حاضر تنها مبحثي را كه در دانشگاه تدرس مي كند مر بوط به پالاديو است. در كار پالديو چيزي است كه او شيفته آن است وآن اختراع تيپولوژي است. اختراع( تيپولوژي اجتماعي و فرم ساختماني) كه با ديگر كارهاي زمانه اش در يك رديف قرار نمي گيرند و بايد اقرار كرد كه ما هنوز مشغول ساختن ويلاهاي پالاديويي هستيم و اين موضوع آيزنمن رابرانگیخته که پست مدرن نیسمها پالادیو را به خاطر اینکه جایی در اصول فکری انها ندارد سرکوب کرده اند و پالاديو را در حاشيه گذاشته اند وگمانه میزنیم که وجه اشتراک پالادیو وایزنمن در این است که هر دو به منتقدانشان ارتباطشان با تاریخ قطع شده است.در سال(۱۹۸۰)پس ازسالها تدريس و نوشتن كتاب و نوشتن تئوري هاي قابل قبول ،كار حرفه اي خود را در زمينه ي طراحي و ساختن آغاز كرد كه شامل خانه هايي با مقياس بزرگ و پروژه هاي شهري و نيز فعاليتهايي در زمينه ي آموزش دانشگاهي و يك سري خانه هاي شخصي بود.

 

b55ohaj0uiqteqwhgj5t.jpg

 

Memorial to the Murdered Jews of Europe, Berlin, Peter Eisenman1997-2004,

bdm3dzl8r0hmiwbuyqr6.jpg

 

1vxo9z20jil5vk66e6u1.jpg

 

خانه ی شش

 

7zhxacplmha1n1liifr.jpg

 

در مورد اینکه خانه ی شش صولا می تواند یک خانه و محلی برای زندگی باشد تردید وجود دارد.این خانه نمایانگر نقطه ی اوج مرحله ی اول حرفه پیتر آیزنمن است،مرحله ای که او در آن معماری مفهومی کاملی را ارائه داد. خانه های ابتدایی او از چیزی ترکیب شده بودند که وی رسمی و جهانی می نامید.عبارتی که به خودی خود معنایی نداشته و با کانسپت های عادی مانند زمینه و عملکرد،کاری نداشتند ولی با این حال به طریقی ذاتا معماری بودند.مطابق نظرات آیزنمن،خانه ی شش در نگرشی به صورت خاتمه یافتن یک روند،حتی یک شی یا موضوع محسوب نمی شود،بلکه تظاهر کالبدی و ثبت یک روند است،این روند نوعی بازی است که در آن ترکیبی از این جهان های رسمی تغییر شکل یافته و با یک سلسله حرکات ناشی از قوانینی نانوشته،پیچیدگی یافته اند.سطوح مستطیلی ،وید های مکعبی و عناصر خطی (که آن ها را دیوار،اتاق و ستون خطاب نمی کنیم) گام به گام جابه جا شده،تقسیم شده،تکثیر شده،از هم تفریق شده،دوران یافته و کشیده شده اند،و این عمل تا جایی ادامه یافته است که معمار بداند این روند به اندازه ی کافی پخته شده است و در این نقطه است که ترکیب بندی به دست آمده ،خانه نامیده می شود.

 

9qfm4e18rjd8vjoi591.jpg

 

بازی خطوط و حجم ها

 

o7gt65i6rpyhbj3coyqf.jpg

 

ix9vv8k85krabl4oryd9.jpg

 

0tbk1ml3msz6r463ioc.jpg

اکنون در این محل طراحی شده،باید شخصی زندگی کند،سوزان و دیک فرانک اهل نیویورک یک تاریخ دان هنر و یک عکاس،این خانه را یک کلبه ی مخصوص تعطیلات آخر هفته قلمداد کردند.آن ها تجاربی جالب و گاهی مضحک را در کتابی به تالیف سوزان فرانک به نام خانه ی شش اثر پیتر آیزنمن،پاسخ کارفرما منتشر شده به سال 1994 بیان کردند.

با نگاهی به طرح اولین اسکیس ارائه شده،مشخص می شود که خانواده ی فرانک اساسا با اهداف هنرمندانه ی آیزنمن موافق بودند.آن ها نقطه ی کانونی خانه را که تقاطع دو پلکان بود پذیرفته و حتی از آن محفوظ شده بودند.یکی از پله ها که به رنگ سبز بود،پله ای عادی بود که دسترسی به طبقه ی اول را به روشی معمول فراهم می نمود،پله ای دیگر در زاویه ی قائمه با آن و به رنگ قرمز از طبقه ی اول تا بام کشیده شده بود ولی بلااستفاده بود،چرا که برعکس تعبیه شده بود.خانواده ی فرانک از اینکه آیزنمن تنها یک اتاق خواب کوچک برای این خانه طراحی کرده و فضای نشیمن همکف را در ارتفاع دو طبقه طراحی کرده بود رضایت چندانی نداشتند،چرا که این،هدر دادن فضا بود و نشیمن دو طبقه باید حذف می شد،آبزنمن با اکراه این مسئله را پذیرفت و این فقدان را با حذف قسمت هایی از کف در کنار پلکان جبران کرد،به گونه ای که ارتباط بصری میان این دو تراز حفظ شود،او تاکید بر این داشت که اتاق خواب جدید ایجاد شده در بالای پذیرایی ،یک گشودگی در کف خود داشته باشد.جالب است که خانواده ی فرانک با این امر موافقت کردند و تختخواب دو نفره ی اتاق خواب را با دو تخت یک نفره،برای حفظ خلوص ایده ی طراحی عوض کردند.آن ها با وجود اینکه اصرار به وجود فضا برای یک میز نهارخوری شش نفره داشتند مجبور به قبول یک ستون ناخوانده که به ناچار،یک میهمانی اضافی شام بود گردیدند.در ساخت این خانه از برخی نکات عملی ساختمان سازی غفلت شده است.سازه ی اصلی ساختمان،یک قاب چوبی استاندارد امریکایی است که با تخته چندلا پوشیده شده و اندودکاری گردیده است.جزئیات ساختمانی ارائه شده توسط آیزنمن چیزی بالاتر از حالت بهینه بود و پیمانکار آمادگی برای چنین پیچیدگی اتصالات را نداشت و در نتیجه نازک کاری ترک برداشته،سقف چکه کرد و چوب شروع به پوسیدن نمود.خانواده ی فرانک هنگامی که شروع به بازسازی خانه به منظور خشک کردن فضاهای داخل نمودند متهم به نخریب اثر هنری شدند،با وجود این بر خلاف تمامی محاکماتی که باید تحمل می کردند،به خانه وفادار باقی مانده و از کیفیت های خاص آن لذت بردند،مخلوطی از نور دلچسب روز که از ترکیب پنجره ها،نورگیرهای سقفی و پانل های نیمه شفاف به نام کالوال به داخل فضا راه می یافت،دیدهای جذاب داخلی و نیز فرم بیرونی بسیار زیبا.

 

4f2l1qrcwpw3sf1mx04.jpg

 

fsp6muvnspzwkby6jvg.jpg

 

سازه ی اصلی ساختمان،یک قاب چوبی استاندارد امریکایی است که با تخته چندلا پوشیده شده و اندودکاری گردیده است

 

jc3x3h2zcfe9dkk7anny.jpg

 

asblzdf6jsxprfmus.jpg

 

w52zyslo9vbq59ch51dm.jpg

 

kn8wijbxbvbx5b4qyt7z.jpg

 

w4m7oh4sdl07x2fmssvg.jpg

 

fszsapxddbssa75ofa.jpg

 

fusku0d92rw4t8y6xfuc.jpg

 

نمای شرقی

 

p3b15uvqjrkv08ud022y.jpg

 

نمای غربی

q695yomrwgze8pz7noh.jpg

 

نمای شمالی

 

xo46nace0qtvxs1n19n.jpg

 

نمای جنوبی

 

fu664wp1htopdt69rluy.jpg

 

پلان همکف

 

f5axgkglx9o6xajj464m.jpg

 

پلان طبقه اول

 

fp8ldvpy0s2h7p9tb7dm.jpg

 

oak4wyzdhm7ucsj07c6x.jpg

 

 

در سال (۱۹۸۵)، آقاي آيزنمن جايزه ي (شيرسنگي) را براي پروژه ي رومئوژوليت خود در سومين بينال معماري در ونيز دريافت كرد. در بينال پنجم هم او يكي از دو معماري بود كه به عنوان نماينده ي ايالات متحده شركت داشت و پروژه هاي ارائه شده توسط ايشان در موزه ها وگالري هاي سر تاسر دنيا نمايش داده شد. در ضمن تا سال (۱۹۸۲)به عنوان بنيانگذار و مدير(انستيتو معماري و شهرسازي) بوده و به عنوان منبع تفكر و انديشه براي نقد معماري به شمار مي آمد.آيزنمن تعداد زيادي جايزه دريافت كرد بورس تحصيلي گوين هايم (۱۹۷۶)، جايزه ي( برانئر) از آكادمي هنر وادبيات و جايزه ي بين المللي براي هنر،جايزه ي افتخاري از انستيتو معماري آمريكا به خاطر مركزي در اهايو (۱۹۸۹)، جايزه ي بين المللي براي طراحي شركت مركزي( كوزميئي سانگيو) در توكيوي ژاپن(۱۹۹۱) نقطه شروع آيزنمن آيين افلاطوني است.نخست صورت ناب وذهني وكامل بود كه ازطريق هبوط پيوسته و متواتر به واقعيت نزديك مي شد. تفكر آيزنمن غيرديني است و چنين تفكري در شرايط امروزي اين احساس را به دست می دهدكه كاملا از اين گونه مسائل (مسائل دینی) جداست.معماري آيزنمن مي كوشد تا در سايه تحريك تخيل و تصور و پذيرش نا متعارفها از دام ماليخوليا بگريزد به اين ترتيب كه اينها را به عنوان عناصري مثبت در ساختن مكان جديدی براي لا مكانها يا مامني كه در آن معمار اراده فرماتيو خود را باز شناسد تلقي ميكند. اين محصول مصنوعي مكان بنا برهمه آن دلايل پاسخ مثبت اوست به لامكاني وبه ماليخوليايي فقدان وازدست دادنهايي كه پيوسته دركمين وهمراه با اين لا مكاني هاست.در كارهاي اخير او نشان از توهم ذهني وجود ندارد. حتي از كمترين و دقيقترين نشانه اي از، خود گول زني نيزوجود ندارد چرا كه هنر مدرن از تبار(آيزنمن و بودلر) آگاهانه و هشيارانه مسخ شدگي غير واقعيت رامي پذيرد.استراتژي نهفته در غوطه وري عميق تحليلي درهندسه كه پايه طرحهاي او را مي سازد هرگز نبايد به عنوان بازي!(صرف فرم) برداشت شود ودر وراي اين هندسه ها كه پيوستگي ابعاد خود را تكثير ميكنند و يا مدولاسيونهايي را كاهش و افزايش مي دهند.در(فراكتال) شكفتگي و سرشاري وجود دارد كه بدان وسيله گريز از متعارفها، ساختار حفاظتي اشراقي خود را پي مي ريزد.آيزنمن معمار فرمهاي مكعبي و سري خانه هاي 1 تا 10 به سمتي پيش مي رود كه مسئله مكان در پيش زمينه قرار گرفته است و با اين حال او كاري به ديگران ندارد وی با روح نوستالژيك هوشمندانه و نبوغ آساي خود خيال مي كند كه مي تواند مكان را در تسلط خويش در آورد و معماري خويش را بر آن بنا نهد.چنين به نظر مي رسد كه معماري آيزنمن درسالهاي اخيربرموقعيت تبعيدي اش همچنان پاي مي فشارد اين معماري اعم ازاينكه در شهرها ساخته شود يا در محيط هاي دانشگاهي ويا درتوابع وحومه هاي شهري، در آنچه كه خلق مي كند، ريشه ندارد به عبارت ديگرنه تنها ازتداوم منطق دروني با تمام براهين و مظامين قومي و تاريخي كه ظاهرا بايد نقطه عزيمتشان از توپوگرافي وخاطره ها كشف شود ناشي نمي شود بلكه برعكس نخستين وظيفه عبارت است از دريافت و شناخت اين غريبگي و غيبت مناسبات سمپاتيك بين معماري و مكاني كه اين معماري در آن ساخته مي شود.از زمان كانت به اين سوزيبايي شناسي مدرن با دوگانگي مواجه بوده كه معماري روحاني نتيجه شكست در رويا رويي با مشكل فرم مفروض است. معماري مورد علاقه آيزنمن معماري پالاديو(لوكوربوزيه – ترايني –مورتي)كاملا عكس اين معماري است، مقاوم دربرابرزيبايي شناسي روحاني و كوشا درجهت حفظ و موجوديت فرم هوگو فريد ريش در تفسير خود بر كتاب( "فلسفه كمپوزيسيون"اثر ادگار آلن پو) به نكته اي بر مي خورد كه تمام تازگي شعر آلن پو در آن است. طرح پيشنهادي احساس شاعرانه كلاسيكي به پيش زمينه مي دهد. آنچه كه در نتيجه ظاهر مي شود عين فرم و در حقيقت جوهر شعر است و آنچه كه هدف آن جوهر به نظر مي آيد در حقيقت حاصل فعاليت شاعرانه است. معماري اخير آيزنمن نيز همين روال را طي ميكند معني و دلالت اوليه كه بايستي از راه زبان فرمال به بيان درآيد وجود ندارد .‍‍ روش آیزنمن در عمل معماري، كاملا عكس درك كلاسيك گرته برداري و اصل تقليد به مثابه پايه هاي اساسي كار معماري است. تقليدي در كار نيست نه از آلونكي ابتدايي و نه از نظام طبيعت ونه از منابع عظيم زندگي مدرن اجتماعي، هيچ نشاني نيز از درك معماري مبتني بر تكميل مدلهاي الگويي يا درسهاي تاريخي وجود ندارد.شايد در عصر حاضر معمار ديگري نباشد كه چنين آشكارا از تمام مفاهيم تكاملي زيبايي شناسي معماري و پايه هاي تاريخي آن فاصله گرفته باشد و معماري او با كلماتي بي بديل از بي نظمي جهان مدرن، ضعف عمل انساني و ناتواني و فتور دانش ما و از محيط سخن مي گويد. اين خوداثراست كه به زبان سخن مي گشايد، اما اين سخن قصه گويي به روال رايج نيست، كه اين خانه شبيه فلان است و اين مكان مثل بهمان! منتهاي معماري او خود به عنوان مفهوم اين مكانها و ثبات ساختاري و حقيقت هندسه، در برداشتي كه بر تاكيد ها و نفي ها و بر شك و ابهام استوار است پرسش بر انگيز هستند. اما معماري او بعد تاويلي نيز دارد به گونه اي كه تفسير يك عمل به معني اجراي آن است درست مثل پيانيستي كه متن نوشته شده موسيقي را مي نوازد شرط تاويلي معماري آيزنمن در توليد و ساخت و بيان زمان و فضا شرط التزامي است.

 

 

8zdno0knmjh5ye8w7ep.jpg

 

برای مشاهده این محتوا لطفاً ثبت نام کنید یا وارد شوید.

  • Like 19
ارسال شده در

باب سوم

معمار:'گریت ریتولد

معماری:خانه ی شرودر

 

p5n1ojoj98uycchao3fq.jpg

(Dutch, 1888-1964)

 

جهانی را تصور کنید که تنها صور موجو آن،خطوط و صفحات شناور هستند،همگی در زاویه ی قائمه بوده و تنها رنگ های موجود،سیاه،سفید،قرمز،آبی و زرد هستند،به عبارت دیگر یک نقاشی سه بعدی وسیع توسط موندریان نقاش معروف آلمانی سبک کوبیسم و نئوپلاتیسیسم خانهی شرودر نمونه ی کوچکی از این جهان است،یک قطعه از شهر یکپارچه ی آینده که در آن زندگی و هنر نهایتا یکی شده اند.این تصور گروه دو استیل از نقاشان پیشرو و طراحانی بود که پس از جنگ جهانی اول در هلند کار می کردند.اعضای این گروه تئو ون دویسبورگ، جی جی پی اود، رابرت ونت هوف و البته پیت موندریان بودند.

گریت ریتولد همکار طراحی خانه ی شرودر،در سال 1919 به عضویت گروه دو استیل در آمد.او اساسا طراح مبلمان بود و در سال قبل از این طراحی،یک مبل راحتی چوبی بنیادگرا طراحی کرده بود که رضایت بخش نبود.این مبل راحتی،رنگ نشده بود،اما زمانی در اوایل دهه ی 1920 با طرح رنگی از موندریان با نام مستعار صندلی آبی - قرمز به دنیای هنر معرفی شد.

 

 

pelpq1jixwrodejnr72.jpg

Red Blue Chair

 

i5how8r0mm37ee376vq.jpg

Housing Block Erasmuslaan 9 Utrecht The Netherlands Gerrit Rietveld 1931

 

 

خانه ی شرودر

 

ibfwhibgraxdmwzdzkrp.jpg

 

ریتولد به غیر از طراحی مبلمان،تعداد کمی مغازه و فضاهای داخلی خانه های آپارتمانی را طراحی کرده بود،ولی خانه ی شرودر اولین ساختمان کامل او بود.کارفرمای این طرح تروس شرودر یک دارو ساز تجربی،اما با روحیه ای خلاق و ذاتا دوست دار هنر بود،هنگامی که همسرش (که وکیل بود) در گذشت،تروس شرودر تصمیم به آغاز زندگی جدیدی در خانه ی جدید با سه فرزند جوان خود گرفت.احتمالا ریتولد در آن زمان روابطی عاطفی با وی برقرار کرده بود.در غیر اینصورت،این روابط در هنگام مشارکت در طراحی خانه به وجود آمده بود.زمین پروژه کاملا معمولی بود،یک قطعه ی باقیمانده ی ، در انتهای ردیف خانه های تراسی آجری،اما در حومه ی شهر بود و و دید و منظر مناسبی به اطراف داشت،این منظر اکنون توسط شاهراهی مسدود شده است.

خانه ی شرودر اگرچه دارای دیواری مشترک با آخرین خانه از سری خانه های تراسی است،کاملا به همسایه ی خود بی توجه است،گویی پیام ساختمان این است که آینده فرا رسیده و گذشته خارج از موضوع بحث است.این طرح نه تنها متشکل از دیوارها و سقف ها،بلکه صفحات مستقیم انتزاعی (آبستره)، در فرم های عمودی یا افقی و به رنگ سفید یا خاکستری می باشد.این صفحات چنان که ممکن است تصور شود از بتن نبوده،بلکه از آجر و چوب پرداختی ساخته شده اند.

 

 

fecdbu0iol5r9b0r59.jpg

 

 

tchym1xwgub9pmbc6uk.jpg

 

 

gthyfflfkbfy70tt2jc.jpg

 

 

y34g0r3gx742dp0wrut.jpg

 

 

j2o4n03vmbu6fmipxe9v.jpg

 

 

صفحات به نظر شناور می رسند،خصوصا جلوی بالکن رو به جنوب شرقی و سقفی در بالای کنج شرقی که کاملا پوشیده از شیشه است.گویا عناصر خطی مانند جرزها،بندکشی ها،قاب در و پنجره و ستون های فلزی،به طور بارزی رنگ شده اند (سیاه،قرمز و زرد) تا نشان دهنده ی ساقه هایی باشند که صفحات ساختمان از آن بالا آمده اند،پنجره ها پوسته هایی از شیشه هستند که میان صفحات کشیده شده اند.قاب های لولایی تنها در دو حالت می توانند تنظیم شوند،باز یا بسته به صورت قائم

 

 

0rf9dbmg383jrg929mr5.jpg

 

 

bncqm796wcju4f4ldk5.jpg

 

 

mba0oz93mm7fcxmxz8q.jpg

 

 

773okvjml7xyr4kjlub.jpg

 

 

0uvw6uusk775b70xz2ul.jpg

 

 

yqecsiqyt3kd7lc2nr3.jpg

 

 

kq6fhllpvxy8bbwb98s6.jpg

 

 

ma8beha9kxa0352p0a5w.jpg

 

 

assp872te2ebcbshgvia.jpg

 

 

 

هیج تمایزی میان فضاهای داخلی و خارجی وجود ندارد.صفحات و خطوط قسمت های خارجی،مانند فضاهای داخلی ساختمان،سطوح خالص رنگ شده ای هستند که هیچ پرده یا فرشی در کنار آن ها وجود ندارد.مبلمانی که اکثر آن توکار طراحی شده است با همان زبان رسمی سخن می گوید.گنجه ها دو برابر تیغه های جداکننده هستند،میزها ادامه ی طاقچه ی پنجره ها بوده و تخت ها تشک هایی مسطح و جعبه مانند هستند.پلان در طبقه ی پایین،کاملا مطابق آداب و رسوم است و با دیوارهای باربری که شکل دهنده ی اتاق هایی متمایز طاحی شده است،اما در طبقه ی اول یک سیستم مبتکرانه از پارتیشن های لغزنده،فضا را به نشیمن روزانه و یا به مکانی برای تفریح و سرگرمی تبدیل می کند.

 

 

x83d9k6op8g653iag44f.jpg

 

 

64zt4iowy5z05z4iraas.jpg

 

 

jdiw0dpgvqf8zu30jt98.jpg

 

 

itzddql65hvs2fb87vm.jpg

 

 

rhumud76sv4fcgp61ai.jpg

 

 

 

این پروژه اثری هنری محسوب می شود اما به عنوان یک خانه نیز به خوبی عمل می کند و تروس شرودر تا مرگ خود در سال 1985 در آن زندگی کرد.هم اکنون این ساختمان هم به عنوان یک بنا و هم به عنوان تصویری نمادین و خاطره ای هنری و در خشان جلوه می کند.این تصور دیری نپایید و پایان آن در سال 1924 آشکار شد،هنگامی که موندریان با ون دویسبورگ به دلیل اینکه جرات کرده بود خطوط اریب در نقاشی هایش به کار ببرد اختلاف نظر پیدا کرد.

 

 

mxtafvfr7snfaxnzltk1.jpg

 

 

9q4fg2zwa9e4eqresjgy.jpg

 

 

ru6lupmyeqbk3v0jf0hp.jpg

 

 

dq0bo26r7hggw6b71qwp.jpg

 

 

zw18h9ka6gflpx8p8c4l.jpg

 

 

oz05ulkm3b7l7fg9jxb.jpg

 

8ksrrw6f4qi5kawd6lzi.jpg

 

j4mfh89vajjnce3mo59a.jpg

 

l0ktxaem6w9kou192wzd.jpg

 

7nhzysbr58jym0ht3fy.jpg

 

w1kgdgbqtxqcldahoe6b.jpg

 

ya68lf2e0gzbvmwmm6fp.jpg

 

kdbm8twv5r6qme7upyqx.jpg

 

qtib0ze0ho5unrvhvt.jpg

 

 

ci61om5sq9cav6q4ue0z.jpg

 

r5906yfw65xa6cgqp3id.jpg

 

yl1uziycls0ggjrcdouf.jpg

 

mq0azq0jh1da27is8dx8.jpg

  • Like 14
ارسال شده در

باب چهارم

معمار:مایکل گریوز

معماری:خانه ی هنسلمن

 

lyvtq84gweg5y2l5i531.jpg

 

مایکل گریوز طلایه دار معماری و طراحی؛ متولد 1934 ایندیاناپولیس، امریکا.

دریافت کننده بیش از 140 جایزه معتبر و تقدیر رسمی در رمینه معماری، طراحی داخلی و طراحی صنعتی از سران مملکتی، سازمانهای حرفه ای معماری همچون مؤسسه معماران امریکا AIA، مجامع طراحی، سازمانهای تجاری، نشریات و دانشگاهها. او بعنوان یک معمار، طراح و استاد دانشگاه مطرح است و دارای 11 دکتری افتخاری.

در دانشگاه سینسیناتی اوهایو در دوره ای تحصیل کرد که متضمن تجربه عملی با Carl A. Strauss and Associates بود.

تحصیلاتش را در هاروارد تکمیل کرد (1959) و با George Nelson معمار و طراح مشغول به کار شد. به اعتبار بورسیه ای از American Academy دو سال را در رم گذراند و بعد از بازگشتش (1962) در دانشگاه پرینستون ِ نیوجرسی – همانجاکه تا سال 1972 پروفسور معماری بود- به تدریس پرداخت.

در 1964 مهارت شخصی اش را دریافت و در 1967 خانه هانسلمن در را فورت واین ِ ایندیانا ساخت.

 

fjv8t07yauzx9hh3efb6.jpg

Walt Disney World Dolphin Resort Hotel Florida (1990) by Michael Graves

 

 

مایکل گریوز در اواخر دهه ی 1960 به عنوان عضوی از گروهی به نام پنج نفر نیویورک با همکاری آیزنمن ، گواتمی ، هیدوک و میر توجه بسیاری را به خود جلب کرد.این گروه ، جمعی تا حدی مجازی بود که برای جلب اذهان عمومی تشکیل شده بود ، اما اعضا آن برخوردی همسان با معماری مدرن داشتند ، خصوصا دارای علاقه ای وافر به مدرنیسم پیوریست لوکوربوزیه همراه با بی اعتنایی کامل به ایده آل های ذاتی سوسیالیستی در سبک مدرن بودند.

گریوز و همکارانش علاقه به فرم و فضا و نه آینده ی جامعه بودند.خانه های آن ها که به تفصیل در کتاب پنج معمار در سال 1975 انتشار یافت ، ظاهرا شبیه خانه های دهه ی 1920 و 1930 لوکوربوزیه بود ، به جز ساختمان هایی که مصالح غالبشان فلز و چوب به جای بتن مسلح و بلوک با اندودکاری بود.خانه ی هنسلمن اگرچه در ایندیانا ساخته شد، اما نمونه ای بارز از آداب و رسوم نیویودک می باشد.

 

 

 

 

خانه ی هنسلمن

 

 

dt441c5aacaf4tgmqcx2.jpg

 

 

خانه ی هنسلمن از آنجا که ارائه از سبک هندسی ابتدایی می باشد، هم فیگوراتیو (نمایش تمثیلی فرم ها) و هم آبستره (انتزاعی) می باشد.تشخیص اینکه کدام یک از این قواعد بر دیگری چیره است دشوار است ، اگرچه این سوال با نگاهی به جهت گیری حرفه ای آینده ی گریوز اهمیت بیشتری می یابد.قطعا قسمتی از ترکیب بندی ، آبستره است چرا که به صورت فیزیکی وجود ندارد.از نظر تئوری فرم خانه نزدیک به دو مکعب است ، اما فقط یکی از مکعب ها ساخته شده است.حضور مکعب دیگر با جانمایی پله های ورودی ، دورتر از مکعب ساخته شده و در انتهای پلی طولانی مشخص شده است.

 

 

htjh3wk63cv3g4fel49v.jpg

 

 

aegyguiit6lffsb480e.jpg

 

 

 

 

hb3moln1bpbqv2hzsfg.jpg

 

 

 

طرح اصلی شامل یک اتاق کار کوچک در یک سمت پل و یک قاب فلزی لاغر بود که نشان دهنده ی مکعب ساخته نشده بودند، ولی این عناصر ساخته نشدند.ورودی در طبقه ی اول قرار دارد که طبقه ی اصلی ساختمان بوده وشامل نشیمن،ناهارخوری و آشپزخانه است،پایین پله ها با چهار اتاق خواب و یک اتاق بازی ، محدوده ی کودکان می باشد.یک پله ی مجزا به اتاق والدین و اتاق مطالعه در طبقه بالا ختم می شود.پلان یک مربع کامل می باشد که از نظر سازه ای توسط چهار ستون داخلی به 9 مربع کوچک تر تقسیم شده است و این چهار ستون گاهی با دیوارها یکی شده اند.

 

b0p348miz9qsvxto6f.jpg

 

xeii9kcs80a0dswgpfbb.jpg

 

cl93pbnvovssgjqs5pp0.png

 

cqcjm4uhi9nh7fujjv94.gif

 

qpo5nlh56y32xsr4ej7a.jpg

 

در ویلای استین دومانزی لوکوربوزیه یک قاب سازه ای کلاسیک و عادی را با حذف قسمت هایی از دیوارها و کف ها و ترکیب با عناصر انحنادار نامتقارن ، به حالتی مدرن تبدیل کرد.گریوز نیز همین کار را کرد و با کنده کاری در گوشه ی جنوبی آفتاب گیر در مکعب طرح ، فضاهایی دو پهلو به صورت خارجی - داخلی ایجاد کرد، مانند تراس سقفی غیر معمول در طبقه ی بالا که مانند اتاق های عادی دارای دیوار و پنجره بوده و تنها سقف ندارد.این فضا دارای بالکنی مخصوص خود و مشرف به پل ورودی بوده و در سمت دیگر دارای دید به نشیمن می باشد.

 

d3p36h0n9p98h2tepos.gif

 

cjia9f109hi3qtoozwiu.gif

 

4gkyr5698noml6cnn01a.jpg

 

h8hvfahsycjat2bz45tj.jpg

 

280pkrmx3nvradaf3yd.gif

 

1zmo4nsqxsz2dsm8r1n6.gif

 

52b7yy9tf2zugunrwt.jpg

 

خانه ی هنسلمن ممکن است طرحی فرمالیست و ماخوذ از جاهای دیگر باشد،اما قطعا یک ترکیب بندی مدرن محسوب می شود.

هیچ کس در سال 1967 پیش بینی نمی کرد که گریوز به زودی سبکی جدید بر خواهد گزید که انتزاعی بودن را نفی کرده و با ذوق و شوق فراوان ، از فرم های تزیینی استفاده خواهد کرد، در سال 1980 طرح ساختمان پورتلند او به عنوان نخستین نمونه از کلاسیسم پست مدرن شناخته شد.

 

 

5oe54zrtk1lcd90fc0f.jpg

 

 

Portland Building in Portland, Oregon (1982) by Michael Graves

 

 

 

 

پنج سال بعد او ساختمان هایی را برای والت دیسنی طراحی کرد که در آن طرح ستون هایی به شکل زن و یا هفت کوتوله ی سحرآمیز بر روی سنتوری ساختمان ها طراحی شده بود.

 

 

 

h8hdn9vc9cqcjay2k2fd.jpg

Team Disney Building, Michael Graves, Burbank, 1987.

 

 

 

 

ahisszf8xedtgfszx3.jpg

 

 

 

 

joobjb7ma6ji9rd1e0zv.jpg

 

 

 

 

2k7xpycfne2d0shcu71.jpg

 

 

 

 

 

جوایز حرفه ای و شخصی:

-American Institute of Architects

2001 Gold Medal

-NJ-AIA special recognition award, 1982

-Inducted as a Fellow, 1979

-1999 National Medal of Arts Conferred by President Clinton

-American Academy of Arts and Letters Inducted as a Member, 1991

-New Jersey Governor's Pride Awards Walt Whitman Creative Arts Award 1991

- University of Cincinnati

Alumni Association

William Howard Taft Medal, 1998

- GQ Magazine

Man of the Year, 1997

- Design Alliance

Most significant contribution to

the design industry, 2000

-American Academy of Achievement

Golden Plate Award, 1986

American Academy in Rome -

Centennial Prize, 1996

-Rome Prize, 1960-1962

Arnold W. Brunner Fellowship, 1980-

Christopher Columbus Fellowship Soc. -

2001 $50,000 Frank Annunzio Award

Manitoga, Russel Wright Center -

First Russel Wright Award, 2000

-New Jersey Center for Visual Arts

Arts Person of the Year

2000

Interiors Magazine -

Hall of Fame, 1991

Designer of the Year, 1981

House Beautiful Magazine -

“Giants of Design” award, 2000

-Euster Merchandise Mart

Outstanding leadership in architecture

and design, 1983

-Boston University

Silver Spoon Award, 1984

جوایز معماری و طراحی داخلی:

American Institute of Architects

10 National Honor Awards

2001 Gold Medal

AIA and American Library Association

Award of Excellence, 2001

Progressive Architecture Magazine

13 design awards

Interiors Magazine

3 design awards

Designer of the Year, Hall of Fame, 1991

American Sculpture Society

Henry Hering Medal, 1986

N.J. Business & Industry Association

Firm Award for Achievement, 1990

Good Neighbor Award

Master Builders’ Association Award, 2000

Friends of The Hague Citation for Improvement to the City, 1998

Fukuoka Urban Beautification Award

2 awards

American Concrete Institute

Merit Award, 1996

AIA-New Jersey, other state chapters

Over 60 design awards

Special career recognition award, 1982

Chicago Athenaeum

2 American Architecture Awards

Metropolitan Home Magazine

Design 100 Award, 1990

Architectural Digest

AD 100 Best Architects and Designers

3 5-year listings

Downtown New Jersey, Inc.

Urban design award, 1990

U.S. Environmental Protection Agency

U.S. Department of Energy

Energy Star Award, 1999

D.C. Building Congress Award, 2000

Fukuoka Building Contractor’s Society Award, 1995

Japanese Society of Commercial Space

Designers Design Award, 1994

Architectural Precast Institute Award

for Design Excellence, 1995

جوایز طراحی محصولات و گرافیک:

Design Alliance

Most significant contribution to

the design industry, 2000

Industrial Designers Society of America

IDEA Award

2 awards

Design Zentrum, Nordrhein Westfalen

Red Dot award for design quality

2000

Resources Council

2 design awards

Philadelphia Museum of Art

COLLAB Award, 1995

American Federation of Arts

Graphic design award, 1990

Manitoga, Russel Wright Center

Russel Wright Award

Inaugural award, 2000

Chicago Athenaeum

Good Design Award

8 awards

International Furnishings

& Design Association

33rd Annual Trailblazing Award, 2000

Institute of Business Designers

3 design awards

Print Magazine

Casebook

 

 

 

 

 

 

 

 

  • Like 12
ارسال شده در

باب پنجم

معمار:آلبرتو کمپو بیزا

معماری:خانه ی گاسپار

 

des3rndx0rwlzj0um4iv.jpg

 

آلبرتو کمپو بیزا یک پیوریست (سبک هنری اوایل قرن بیستم با رد کوبیسم و تاکید بر خلوص احجام هندسی) است اما نه به روش لوکوربوزیه،نقاشی های پیوریست کوربوزیه ،موضوعات متداولی مانند مبز ،کتاب و بطری هستند.ساختمان های او نیز به همین ترتیب وسایل روزمره ی زندگی را از لوازم آشپزخانه گرفته تا اتومبیل مورد توجه قرار داده و در خود جای می دهند.ممکن است تزئینات سنتی از بین رفته باشند اما زندگی ادامه دارد.پیوریسم کمپو بیزا به ترتیبی دیگر است،ساختمان های او هیچ توجه ای به زندگی روزمره ندارند و حتی به محیط اطراف و ساختمان های همجوار بی اعتنا هستند.

 

xnh3url9br9st7t52ifd.jpg

 

MA Andalucia’s Museum of Memory

 

 

3msi3yoxi6qw4h6tep1w.jpg

 

 

 

0pyh6oy6osx6yt0l7b1c.jpg

 

Casa Moliner by Alberto Campo Baeza

bw4z1eyuwubmkpebdqmk.jpg

 

5cvwtqvuskoie8yg1kv.jpg

 

آنچه برای کمپو بیزا اهمیت دارد،مسایل غیر مادی هستند که همه جا حاضر بوده و اجتناب ناپذیرند،یعنی نیروی جاذبه ی زمین،نور،فضا و زمان.او در کتابش به نام la idea construide می نویسد:نیروی گرانش فضا را می سازد،نور نیز زمان را ساخته و به آن معنا می بخشد.مسایل اساسی مورد توجه معماری ،چگونگی کنترل جاذبه و چگونگی رساندن نور است.ممکن است این مطالب را سخنانی عمیق یا مسائلی بدیهی بپنداریم اما این گفته،حداقل ،فضیلت ساده بودن را داراست،مانند شعار دیگر کمپو بیزا که بر پایه ی نظرات میس ون در رو بنا شده است: رسیدن به بیشترین ها با کمترین ها.

 

 

1tbjwid5j2uqzag5hpgo.jpg

 

 

 

 

Olnick Spanu House by Alberto Campo Baeza

 

e43nzli0gbjr5kvfkx2.jpg

 

8dk6rbctmixgmj305j.jpg

 

w1rf6qk8b8pwitj9gqek.jpg

 

7uvvd4xpdubhgpqy6gn.jpg

 

 

 

خانه ی گاسپار

 

1l1krvri5olwgs5uzgu.jpg

 

خانه ی گاسپار،تبلور کالبدی کامل این اصول است.این خانه کاملا درون گرا است و هرگونه تماسی با دنیای با دنیای خارج،توسط دیواری به ارتفاع 3.5 متر مسدود شده است،اگر خانه در مرکز یک شهر قرار داشت تعجبی نداشت،اما سایت این پروژه در یک باغ پرتقال واقع شده و دید های آن (به طور بالقوه) درختان و کشتزارهای اطراف هستند،این محیط از آن دسته محیط هایی نیست که مردم از آن گریزانند.خوشبختانه کارفرمای این طرح نیز به محرمیت خانه بیش از هر چیزی دیگری اهمیت می داد و از این رو دز تطابق با شعور معماری کمپو بیزا بود.

 

ij4nw7z5wdwpp57gisxg.jpg

 

f7p390yww8pk8ywxy3gp.jpg

 

l33xd3e9zq4mafp0hh.jpg

 

tkjgs5ttmw3j95hz1b8s.jpg

 

بیگانگی خانه از محیط اطراف آن،با هندسه ی آبستره (انتزاعی) آن تشدید شده است،دیوار 3.5 متری،محدوده ای با تناسبات مربع کامل به وجود می آورد که شبیه یک تندیس هندسی افلاطونی آمده از بهشت می باشد.این مربع با دو دیوار دیگر 3.5 متری به سه نوار مسائی تقسیم شده است که تنها نوار مرکزی مسقف است.دو دیوار کم ارتفاع تر،مربع را در جهت دیگر تقسیم بندی کرده اند که این بار به صورت نا برابر و با تناسبات 1/2/1 می باشد،از این رو دیوارهای تقسیم کننده،شکل صلیبی را در این مربع پدید آورده اند.

سقف قسمت مستطیلی محل تقاطع دیوارها ،تا 4.5 متر بالا آورده شده و نشیمن اصلی خانه را پدید آورده است.دو اتاق خواب،یک آشپزخانه و یک حمام،قسمت های با سقف کوتاه تر را در هر دو قسمت خانه اشغال کرده اند و هر یک از اتاق ها به جز حمام،به پاسیوی خصوصی خودشان در یک کنج خانه باز می شوند،پاسیوی کنار حمام تبدیل به پارکینگ شده است،این نوع تقسیم بندی،دو پاسیوی بزرگ مستطیل را دز شرق و غرب نشیمن ایجاد می کند.

 

 

o3s4c90xin2u7y8kufab.jpg

 

qhq8e0yf4atxc4eo0k5y.jpg

 

lpzglqf83adtts2jhqz4.jpg

 

ooexn3v6iw6vhgznenn.jpg

 

d46d1ymccrgxdfvkg8jx.jpg

 

این گونه تقسیم بندی به عنوان یک پلان،کاملا منطقی بوده و به خوبی کار می کند،اما به نظر می رسد که تقارن سخت آن بیشتر از یک بازی هندسی به وجود آمده است تا از بررسی استفاده ی انسان.اگرچه خانه به هیچ وجه از جاذبه های احساسی تهی نیست،کمپو بیزا احساس فضای خالص را با سفید کردن همه چیز و مخفی نگه داشتن تمام دیتیل های ساختمانی تقویت کرده است،به عنوان مثال چهار پنجره ی نشیمن،همگی تک صفحات شیشه اای هستند که بدون قابی در گشودگی ساده و مربع شکلی کار گذاشته شده اند.قرار دادن پنجره ها در گوشه های پذیرایی، به خاطر اینکه دیوارهای پاسیو از شیشه عبور کرده و تبدیل به دیوارهای فضای نشیمن شوند هنرنمایی دیگر طراح است.

اما هدف از تمامی این ساده سازی ها،تمرکز حواس بر روی نور است،در خانه های دیگر کمپو بیزا مانند خانه ی تورگانو در سال 1988 از نور مستقیم آفتاب برای روح بخشیدن به صفحات و یکپارچه کردن فضاها استفاده شده است.اینجا تقریبا تمامی نورها،از دیوارها و کف سازی پاسیوها منعکس شده و بازها بازتابانیده می شود.نورپردازی خانه به طور مداوم در طول روز تغییر می کند،اما همیشه لطیف و نافذ و کمب مرموز است،چنانکه گویا متعلق به این جهان نیست.

 

 

knl8c3gdlb0m83psvamn.jpg

 

 

 

 

o6ukl1wmfl6q0o7qlvf.jpg

 

 

 

 

2nawr60qlf4nndu9ghu.jpg

 

 

 

 

gd4691ckql1047qw8tzr.jpg

 

 

 

 

u69ad2ruz0iwq5n8pxca.jpg

 

yv1ducf3cdvxrybb4n.jpg

 

 

 

zmbfskn0mkuyfy1km6.jpg

 

برای مشاهده این محتوا لطفاً ثبت نام کنید یا وارد شوید.

 

 

 

 

  • Like 11
ارسال شده در

باب ششم

معمار:کنستانتین ملنیکوف

معماری:خانه ملنیکوف

 

3l3lj2z8u3642f8s9m1a.jpg

 

کنستانتین 1890-1974 یک معمار و نقاش روسی بود.

او یک هنرمند مستقل بود که به قواعد یک سبک خاص و یا گروه های هنری محدود نمی شد.

 

کنستانتین فرزند چهارم خانواده و یک گیاه خوار بود.

او در خانواده ای فقیر رشد کرد.خانواده ای که روستا زاده بودند.او به واسطه آشنایی با شخصیتی با نفوذ وارد نظام آموزشی شد و در رشته ی نقاشی و معماری تحصیل کرد.اغلب کارهای او در فاصله ی 10 سال از دهه 20 تا 30 انجام شد.و بعد بنا بر دلایلی دیگر کار نکرد و به آموزش نقاشی پرداخت.

 

6vpujdmtaqu7oj5d1qhm.jpg

 

The Rusakov Workers' Club. Architect Konstantin Melnikov, 1927-29 years

 

x7ea8jhsbeb22jc9cwd0.jpg

Burevestnik Factory Club, architect Konstantin Melnikov 1927-29 years

 

 

 

خانه ی ملنیکوف

 

724436wf3xa24c3tq.jpg

 

 

خانه ای که کنستانتین ملنیکف برای خود و خانواده اش در خیابان مسکونی معمولی در مسکو ساخت،به عنوان اثری غیرمعمول و عجیب تلقی می شود.این طرح بیشتر شبیه یک کلیسا یا افلاک نماست تا یک خانه و منتقدین می پندارند که استوانه های سوراخ دار درهم ادغام شده با پنجره های لوزی شکل آن ،معنای مرموزی دارند.ملینکوف طراح پاویلیون شوروی،در نمایشگاه هنرهای دکوراتیو سال 1925 پاریس عقاید عجیبی داشت،به عنوان مثال در مورد خواب و معماری خواب.اتاق خواب خانه ملینکوف،سه فرم مقبره ای شکل دارد که با گچ کاری نرمی حجاری شده اند و با آرایشی متقارن در زمین تعیبه گردیده اند.این سه فضا به عنوان تختخواب های والدین و دو فرزند به کار می روند که توسط جفت پارتیشن های کوتاه ثابتی پوشیده شده اند.این اتاق بیشتر شبیه صحنه ای از یک فیلم علمی - تخیلی می باشد.مبلمان دیگر در این طرح حذف شده است و لباس ها در رختکن اشتراکی طبقه ی همکف قرار دارند.

 

 

gbg63zm5sof04as1uphc.jpg

 

 

 

 

Burevestnik Factory Club, architect Konstantin Melnikov 1927-29 years

 

 

8rcmwmt9yqrnz7yjpc6k.jpg

 

jic059ih1nspjvf2o48q.jpg

 

m1amp8snjxb19c4b8.jpg

 

fl87y79z0zm6pq5k8iw.jpg

 

o22w34jwzocb8vmq82xh.jpg

 

اما از نگاهی دیگر،خانه کاملا معقول است.ملینکوف اجازه ساخت این بنا را به دلیل مجذوب شدن قدرت های مسکو در پتانسیل این طرح،به عنوان یک پیش الگو برای سبکی جدید به دست آورد.فرم طرح برخاسته از تجزیه و تحلیل منطقی خواص سازه ای مصالح غالب ساختمان،یعنی آجر باربر می باشد.استوانه، فرمی ایستاست که نیازی به پشت بند ندارد،همچنین فرم لوزی شکل گشودگی ها هنگامی پدید آمد که بازشوهای دیوار آجری از فرم قوس عای نگهدارنده ی بالا پنجره ها به جای نعل درگاه ها تبعیت کردند.بنابراین یک دیوار توپر تبدیل به قابی شبکه ای گردید که از آجر و ملات ساخته شده است.آجرها برش نخورده و به صورت کامل همراه با طرح بازشوهایشان با اندود ملات به یکدیگر چفت و بست شده اند.استوانهی سوراخ دار بدون اینکه تبدیل به وسیله ی دکوراتیو وسواس گونه ای گردد.سیستم دیوار باربر ارزان و قابل ساخت آسانی بود که کاربردهای زیادی داشت.سازه ی کف ها نیز به همان اندازه مبتکرانه است.پلانی به قطر 9 متر،تیرها و تیرک های معمولی را غیراقتصادی می ساخت،بنابراین ملینکوف از یک فریم تخم مرغی شکل ساخته شده از الوار چوبی لاغر با اتصال های نیم صلیبی استفاده کرد که با سقف ها و کف ها (با اتصالات کام و زبانه که در جهات مختلفی قزاز داشتند)مهار بندی شده و محکم نگهداشته می شدند.

 

 

 

خانه از نظر فضایی و در مقطع نیز مانند پلان مبتکرانه طراحی شده است.نشیمن با ارتفاع دو طبقه همکف که توسط پنجره ی بزرگ رو به خیابان کاملا روشن شده است در کنتراست با اتاق خوابی دارای بازشوهای لوزی شکل در همان طبقه در استوانه ی دیگر است.اتاق کار بالای اتاق خواب نیز دارای ارتفاع دو طبقه بوده و سه ردیف بازشوی لوزی شکل و یک گالری دارد که دسترسی به تراس روی سقف نشیمن را امکان پذیر می سازد.تراس دارای دید به به اتاق کار می باشد و اتاق کار به نوبه خود به نشیمن اشراف دارد و این امر تعادل را میان تداوم و استقلال فضاها ایجاد می کند.

 

6liz2qhx77wd3l2faqg.jpg

 

 

 

 

f67blifyoab62tqks6n8.png

 

 

 

 

illwzw0bftp8sixj82.jpg

 

 

 

 

y5ur4tx2idcxl7nn7hx4.jpg

 

 

 

 

4lsuph0ezgqd7r70n13g.jpg

 

 

 

 

 

برنامه ریزی برای سیرکولاسیون عمودی به نظر حل نشده و ناپخته می رسد.پله گردی که سطوح نشیمن و اتاق خواب را به یکدیگر مزتبط می سازد از طریق یک بازوی پله ی مستقیم به پایین تا هال ورودی خارج از مرکز ادامه می یابد و مسیر خود را به سمت بالا به صورت یک نردبان تا گالری و ترای مخفی ادامه می دهد.اما منطق پلان در دو پروژه ی دیگر برای خانه سازی کارگران که ملینکوف در سال تکمیل این ساختمان انجام داد،واضح تر می شود.آنچه که در این خانه،تنها یک دسترسی تک منظوره قلمداد می شود در این پروژه ها،تبدیل به یک ریتم عادی از مارپیچ ها و استوانه ها می گردد.

 

 

7bemyt2l67zlu5ue6x.jpg

 

 

 

 

gjtbztnmu7695pdtyzsx.jpg

 

 

 

 

0bns8eqv6np19u3kiyw.jpg

 

 

 

 

ytdsjawglyxpuoxfwnw5.jpg

 

 

 

 

7b74qgckdmw7am19vvgv.jpg

 

 

اما این پروژه ها هرگز ساخته نشده و این سیستم هیچ گاه در یک مقیاس بزرگ امتحان نشد.ده سال پس از ساخت خانه،ملینکوف مدرنیست،مجبور به حذف نقاشی ها از فضاهای مختلف ساختمان شد،چرا که طرفدارای از سازمان جدید معماری رئالیست-سوسیالیست (واقع نگر-جامهع گرا)را کنار گذاشته بود.او در دهه ی 1950،اعتبار از دست رفته ی خود را بازیافت و در زمان مرگش به سال 1974 هنوز در این خانه زندگی می کرد.

 

 

rhmh0tf7w45akmr8oqek.jpg

 

 

 

 

8iagm8lf8k9x4cyezso.jpg

 

 

 

 

a9amgf2jpw1e4718lab.jpg

 

 

 

 

2anpsjyp095qk0qe55a.jpg

 

 

 

 

gyrdb45govzar6ksbv1y.jpg

 

 

 

 

amed553lu4wiv5hshu8.jpg

 

efsv1lvei43uk8rb31hg.png

 

 

 

 

u379hvjl1z0ewvar5jb.png

 

 

 

 

233is1qgwm6sg3i6iri.jpg

 

 

 

 

063r03gbs2og7bc5ailq.jpg

 

 

 

 

برای مشاهده این محتوا لطفاً ثبت نام کنید یا وارد شوید.

  • Like 10
ارسال شده در

باب هفتم

معمار:جان لاتنر

معماری:اقامتگاه مالین

 

c8e05h2tfh2bm7jatyt5.jpg

 

جان ادوارد لاوتنر متولد ۱۹۱۱ در میشیگان، معمار آمریکایی تبار قرن بیستم بود.او را بخاطر طراحی ساختمانهای با طرحهای عصر فضایی در جنوب کالیفرنیا می‌شناسند.

جان لانتر اکثر عمر خود را در لس آنجلس گذراند و بیش از صد خانه در جنوب کالبفرنیا طراحی کرد،اگرچه وی علاقه ی چندانی به این نواحی نداشت.او دوران کارآموزی خود را نزد فرانک لوید رایت سپری کرد و پس از مدتی به یک معمار ارگانیک و نه معماری سطحی که تنها تصاویری می سازد تبدیل گشت.هالیوود نگاهی قابل توجه به اقامتگاه مالین داشته و از این خانه در فیلم های متعددی مانند فرشتگان چارلی و بدلکار استفاده شده است.

 

 

5n4gxvybcoxe3lgrjk.jpg

 

 

John Lautner’s Celebrated Homes

 

 

 

 

b8a5sthl3g3flgwlsbtv.jpg

 

 

 

 

3iz6e3g6xqftia13cbou.jpg

 

 

 

 

garcia house

 

 

 

 

 

 

 

 

 

 

 

 

 

 

 

 

 

اقامتگاه مالین

 

k6xjgtigo45hclo0q6ia.jpg

 

 

اقامتگاه مالین واقع در تپه های هالیوود به دلایلی نامعلوم گاهی به اسم شموسفر یا همان لایه ی بالایی اتمسفر نامیده می شود،نامی علمی که برای خانهی ای شبیه بشقاب پرنده مناسب است اگرچه این یک طرح تخیلی و مربوط به آینده نبست.کارفرمای این طرح که یک مهندس هواپیمایی جوان بود این نکته را دریافته بود که طرح این خانه باید طراحی عملی برای استقرار ساختمان در سایتی با شیب تند باشد.

رینر بنهام در کتاب خود به نام لس آنجلس،معماری چهار اقلیم تکنولوژی های مختلف ساخت زمین های ارزشمند اما مشکل برای ساخت دامنه ی تپه های شمال شهر را بررسی کرد.دو روش متعارف وجود داشت،یکی اینکه زمین می توانست به روش خاکبرداری و خاکریزی به صورت سکویی تخت درآید،یا اینکه خانه می توانست بر روی یک شبکه ی آزاد از تیر و ستون های فلزی،ارتفاع خود را تنظیم کند.

طرح اقامتگاه مالین هر دو روش را رد کره و به جای آن ها ساختمان را بر روی یک ستون عظیم بتنی بنا نهاده است،این ستون عمیقا در داخل زمین فرو رفته است.اما در عوض خط شیب صخره،آب های جاری روی تپه و حتی پوشش گیاهی آن،دست نخورده باقی مانده است.هزینه ی سلخت خانه با این روش،تقریبا نصف هزینه ی راه خل متداول با دیوارهای حائل و زه کشی های زیرزمینی بود.

 

 

cewwxvz3nkxez782ud23.jpg

 

 

 

 

medq2ftuq05v0ru0urz.jpg

 

 

 

 

pp56v9sjf0xzrkzyvnp.jpg

 

 

 

 

gpwe2n6ltbef314i4en8.jpg

 

 

 

 

jeoiepquamzzx4h6a1.jpg

 

 

 

خانه پلانی هشت گوش داشته و یک طبقه می باشد،کف خانه با دستک های قطری فولادی بر روی ستون مرکزی تکیه دارد.ستون بتنی مرکزی به جای اینکه تا سقف ادامه پیدا کند،در تراز کف خانه متوقف شده است.در مرکز سقف،جایی که باید ستون بتنی ادامه پیدا می یافت،یک نور سقفی دایره ای شکل،مرکز این پلان نسبتا عمیق را روشن می کند.سازه ی فوقانی از فولاد و چوب ساخته شده است.بتن می توانست از نظر معماری سازگارتز باشد اما سازه را سنگین می کرد و استفاده از آن در ناحیه ی زلزله خیز پرمخاطره بود.دستک های فولادی،انتهای تیرهای کف را که از ستون بتنی مرکزی منشعب شده اند با کمک تیرهای کششی محیط پلان مهار می کند.سازه ی سقف از قاب های پرتال خمیده ای از جنس چوب های چند لایه که از انتهای دستک های فولادی شروع شده و به دور رینگ نورگیر مرکزی ختم می شوند،تشکیل شده است.

بنابراین کل معماری داخلی این ساختمان ،فضایی بدون ستون و انعطاف پذیر است که نیمی از آن توسط پلان بازی از فضاهای آشپزخانه،ناهارخوری و نشیمن با شاه نشینی شومینه دار،همراه با فضایی برای نشستن در میان پلان و درست در زیر نور سقفی اشغال شده است.نیمه ی دیگر مانند تکه های یک کلوچه ،به اتاق خواب ها تخصیص داده شده است.برای بهبود تناسبات اتاق ها،اصلاحات کوچکی بر روی آن ها انجام شده است.رفتار سازه ای محیط پیرامون پلان،یعنی جایی که کف خانه در تقاطع با بشقاب سر و ته سقف خانه قرار می گیرد کاملا متفکرانه طراحی شده است.پنجره ها برای کاهش اثر دورانی کل فضا در میان قاب های پرتال،به داخل فضا حرکت کرده اند اما در یک مقطع ،پانلی شیشه ای،پایین تراز آستانه ی پنجره آورده شده است تا بتوان محل پارک اتومبیل را مشاهده کرد.

تنها سوالی که باقی می ماند،نحوه ی دسترسی به این ساختمان است.یک پل باریک از بالا،میان زمین طبیعی تا ورودی خانه در نزدیکی آشپزخانه کشیده شده است و این در جایی است که دیوار بیرونی برای شکل دادن یک بالکن عقب نشینی کرده است.بازدیدکنندگان از زیر ساختمان وارد یک آسانسور روباز می شوند که شیب زمین را با یک مسیر ریلی کوچک طی کرده و با عبور از زیر خانه به انتهای پل در سمت زمین طبیعی آن می رسد.

 

 

ydbmp7z0j4r233ojs672.jpg

 

sdmdwi5868n44fj1qz.jpg

 

p45j47ovkqk5rco41ko.jpg

 

exw22p56i26wsutw561.jpg

 

1o4e42kmc4l3u20avww2.jpg

 

pa0m95jgek9q3hu22bgy.jpg

 

q8megpq8vtxhklbqj1l.jpg

 

vt4wtgc17w0dk9a263.jpg

 

uylykvseoi57e4mp21c.jpg

 

1ltwllyygdpxriztd1za.jpg

 

k840grhrzc1h5nv2zom6.jpg

 

kds9zzskx5oiafdyimy.jpg

 

x4lrs6aig0bzf3dur8o.jpg

 

برای مشاهده این محتوا لطفاً ثبت نام کنید یا وارد شوید.

 

  • Like 13
ارسال شده در

باب هشتم

معمار:لودویگ میس وان درروهه

معماری:خانه فارنزوورت

 

lf5vh5n77t1c3h5j8rj.jpg

 

لودویگ میس در 27 مارس 1886 در شهر آخن آلمان به دنیا آمد. وی نام مادرش وان در روهه van der Rohes را بعدها به نامش افزود و گفت: هر کس که میس بگوید باید وان در روهه را نیز بگوید.

وی بعد از تحصیلات در مدرسه حرفه ای در رشته بنایی در سال 1901 به عنوان طراح تزئینات مشغول به کار شد. در سال 1905 به برلین رفت و در اداره ساختمان منطقه Rixdorf مشغول به کار شد و بعدها در دفاتر مختلف معماری کار کرد.

در کنار کار نیز وی به تحصیل در هنرستان هنر مشغول به تحصیل شد. از سال 1908 تا 1912 در دفتر معماری Peter Behrens کار کرد. در شروع دهه 20 طرح هایی برای ساختمان های بلند مرتبه با نمای شیشه ای و ایده هایی برای میادین مختلف شهر برلین داشت. طرح های وی برای ویلاهای شهری نیز به مرحله اجرا در آمد.

 

 

n1x95qiklexx6ry8fks.jpg

 

 

Mies van der Rohe's Pavillion, Barcelona

 

 

در سال 1926- 1927 او اولین مشاور و بعد مدیر هنری نمایشگاه ً آپارتمان ً که توسط ورک بوند Werkbund در شهر اشتوتگارت آلمان برقرار شده بود شد. در سال 1927 بمدت 10 سال با معمار داخلی بنام Lilly Reich همکارشد. در سال 1929 میس وان در روهه برای طراحی غرفه آلمان در نمایشگاه جهانی بارسلونا برگزیده شد و برای این نمایشگاه یک مبل چرمی نیز طراحی کرد.

 

 

 

خانه فارنزوورت

bk2andrqfd3rxmi3nhk.jpg

 

واضح است که میس ون در رو و کارفرمایش دکتر ادیت فارنزوورت روابطی رومانتیک داشتند و گهگاهی با همدیگر،سایت این پروژه را بازدید می کردند،داستان چنین ادامه می یابد که روزی میس از ادیت خواست تا بر روی ایوان بالا آمده ی خانه ی نیمه کاره بایستد تااینکه بتواند او را ببیند.ادیت از ایوان بالا رفته و لبخند می زند،میس می گوید:خوب شد،من فقط می خواستم مقیاس ساختمان را چک کنم.خانه بیشتر برای میس طراحی شده بود تا برای ادیت،چرا که فرصتی طلایی برای ساخت معماری ایده آلش فراهم کرده بود.یک ساختمان کامل و چکیده ی سبک خود او.تمامی شرایط مهیا بود،یک سایت بزرگ مسطح جنگلی،همراه یک رودخانه،یک توزیع برنامه ی مختصر و یک کارفرمای ثروتمند مجرد که می توانست بر وی تحکم کند.

 

 

 

 

70qywjo1nrv8bfv1omo.jpg

 

 

5ggx02puv4vmm6vxjgmb.jpg

 

 

j6lthtl6cgw54aw03fat.jpg

 

 

h5m2m9t7yyx2qmemfoz.jpg

 

 

mphxk6m6b3tl2rc61eo.jpg

 

 

خانه ی فارنزوورت،انتهای دورانی است که میس در آن کلیه ی امکانات پویای ترکیب بندی مدرن را تنها برای بازگشت به نقطه ی آغازش،با آرامش و رسمیت سبک نئوکلاسیک امتحان کرد.تقریبا تمامی ساختمان های بعدی میس،به صورت گونه هایی در زمینه ی طرح فارنزوورت دیده می شوند.عدم تقارنی سیال ومصالح متظاهر پاوویلیون بارسلونا و خانه ی تاگندات همگی کنار گذاشته شدند.از اینجا به بعد این قاب فولادی است که به عنوان نظام معماری کلاسیک حکم فرمایی می کند.سقف ها و کف ها،مستطیلی بوده و صفحات مسطح ظاهرا همانندی هستند که نه در بالا،بلکه میان چهار جفت ستون فولادی معمولی با مقطع H شکل قرار گرفته اند.کنسول هایی در هر انتهای ساختمان وجود دارند و صفخه ی کف ،1.5 متر بالاتر از زمین سیل خیز قرار گرفته است.یک دیوار شیشه ای با کمترین فریم،حدود دو سوم از فضای میان صفحات را محصور می کند و ایوانی باز در یک انتها باقی می گذارد.صفحه ی سومی کوچکتر اما دارای تناسبات دو صفخه ی دیگر،در تراز پایین به عنوان تراس ورودی تعبیع شده است.پله های عزیض و کم تعدادی،تراس را به محوطه و به ایوان مرتبط می سازند.داخل طرح یک ساختمان کوچکتر در داخل حجم کلی،فضاهای خدماتی را در بر گرفته است،یک آشپزخانه،دو حمام و یک اتاق تاسیسات،هیچ دیوار ثابت دیگری وجود ندارد.این توزیع برنامه ی مختصر،کل عملکردهای ساختمان را در بر می گیرد.هر چیز دیگر یک پیرایش محسوب می شود،به طور مثال عدم تقارن ظاهری ترکیب بندی کلی (ارتباط میان صفحه ی کف و دیوار شیشه ای محصور کننده یا ارتباط میان خانه و تراس) در بازدید های دقیق تر،تقارن های روی هم افتاده ی پیچیده ای در تزکیب با ستون ها را نشان می دهند.

 

yx2w0it0ndmnifh04ts5.jpg

 

otsjv4kyt0hu3ip3qecb.jpg

 

lc1t5uftewkxu4o60k.jpg

 

wcdjjdaebrjs6jkjs9ku.jpg

 

swkjnbkuaa3cmnjzd2vy.jpg

 

در نگاه به جزییات ساختمانی،می بینیم که جرزها و نازک ترین زوارهای فولادی،قطعات بزرگ شیشه ای را به مربع های کاملی تبدیل می کنند،همچنین مشاهده می شود که تمام کف ها در داخل و خارج از بنا ،با یک سنگ تراورتن سفید خاص سنگفرش شده است و همچنین درمی یابیم که دیوارهای چوبی داخلی در هسته ی خدماتی،از سقف کمی پایین تر آمده اند تا وحدت فضایی نشیمن حفظ شود.

به گفته ی شخص میس،این خانه حقیقا یک ساختمان بی نقص است،اما بسیار بیش از هزینه ی تخمین زده شده برای آن،هزینه در برداشت و زندگی در داخل آن کمی دشوار بود.در زمستان گرمایش کفی،باعث میعان بخار در کفمی شد و در تایستان،داخل بنا به شدت گرم بود و استفاده از توری در ایوان به خاطر پشه ها اجتناب پذیر بود که شفافیت کل طرح را از بین می برد.

 

a2j7nkqxith4fxrfrpuk.jpg

 

rtak047svxev7ngl6xuf.jpg

 

evi97kb7csw0e6mq0yar.jpg

 

kt5u47qhwjoox8v3sa2o.jpg

 

lt5prmtys7y1m7kjxpv.jpg

 

bckm6b0n6s35tcie3rl6.jpg

 

8bihdbjs7ostf6e6vi4v.jpg

 

3wmntoc5dhe6p6o9up1.jpg

 

uzfyvfu1npyd36j7f.jpg

 

3l7t5ibpiv78s0jb3cd0.jpg

 

f5nq777wwnbybnd316c6.jpg

 

5qtekcrryk6smbigtziu.jpg

 

6j076m0cbl3nax5tuere.jpg

 

yzg4pil5raluqfo2tig.jpg

 

hu0yzem22i11p9v62lab.jpg

 

xdnkfqgoyfbu7t8yrvp0.jpg

 

wylm9uqile70qmt5g83u.jpg

 

wylm9uqile70qmt5g83u.jpg

 

fs9lg0l84hfjtz5hhz.jpg

 

884izfo083tdfvgai7f.jpg

 

dcu01uy76b995xajdlnw.jpg

 

fqdkw28m5izgaf7yh4v4.jpg

 

izylms1p53d4994i6.jpg

 

kymikptrqarn72jr6m1.gif

 

ufziegswmf4q3wvigw1o.jpg

 

نهایتا ادیت فارنزوورت خود را مغبون احساس کرد و صورت حساب میس را پرداخت ننموده او را به دادگاه کشاند و کل داستان با ناراحتی طرفین به پایان رسید.

 

 

 

وی در سالهای 1930 تا 1933 به عنوان آخرین مدیر باوهاوس در دسائو و برلین بود. در سال 1938 به امریکا مهاجرت کرد و تا سال 1958 مدیر انستیتو تکنولوژی الینویز Illinois Institute of Technology بود و یک دفتر معماری در شیکاگو نیز تأسیس کرد.

وی طراحی ساختمان های بسیاری را به عهده داشت که در معماری دهه بیست تأثیرگذار بود. از طرح های مشهورش Lake-Shore-Drive-Appartments در سال 1952، Crown Hall در سال 1956 در شیکاگو و Seagram Bilding در سال 1958 در نیویورک و گالری ملی در شهر برلین در سال 1968 بود. وی در 17 آگوست 1969 در شیکاگو از دنیا رفت.

 

 

 

ijodlt5y2zooswus1hob.jpg

 

 

برای مشاهده این محتوا لطفاً ثبت نام کنید یا وارد شوید.

 

  • Like 9
ارسال شده در

باب نهم

معمار:فیلیپ جانسون

معماری:خانه شیشه ای

 

3a4sdrcqxc2s1n1tc2in.jpg

 

فیلیپ کورتلیو جانسون زاده ۸ ژوئیه ۱۹۰۶ در

برای مشاهده این محتوا لطفاً ثبت نام کنید یا وارد شوید.
،
برای مشاهده این محتوا لطفاً ثبت نام کنید یا وارد شوید.
، و درگذشته ۲۵ ژانویه ۲۰۰۵، معمار برجستهٔ
برای مشاهده این محتوا لطفاً ثبت نام کنید یا وارد شوید.
بود.

وی در سال ۱۹۳۰ کرسی سازمان معماری و نیز طراحی در

برای مشاهده این محتوا لطفاً ثبت نام کنید یا وارد شوید.
در شهر
برای مشاهده این محتوا لطفاً ثبت نام کنید یا وارد شوید.
را از آن خود کرد. در سال ۱۹۷۸ در زمانی که هیأت امنا آن موزه بود، از طرف
برای مشاهده این محتوا لطفاً ثبت نام کنید یا وارد شوید.
به دریافت مدال طلا نائل گردید. و نهایتا در سال ۱۹۷۹
برای مشاهده این محتوا لطفاً ثبت نام کنید یا وارد شوید.
را از آن خود کرد.

او فارغ التحصیل مدرسه طراحی

برای مشاهده این محتوا لطفاً ثبت نام کنید یا وارد شوید.
بود. وقتی جانسون د ژانویه سال ۲۰۰۵ از دنیا رفت،
برای مشاهده این محتوا لطفاً ثبت نام کنید یا وارد شوید.
که در تمام طول دوران زندگیش از دوستان نزدیکش بود نیز چند ماه پس از مرگ وی در ۱۲ ژوئن همان سال از دنیا رفت.

جانسون در

برای مشاهده این محتوا لطفاً ثبت نام کنید یا وارد شوید.
،
برای مشاهده این محتوا لطفاً ثبت نام کنید یا وارد شوید.
بدنیا آمد. وی از نژاد خانواده جانبین (جانسون) از
برای مشاهده این محتوا لطفاً ثبت نام کنید یا وارد شوید.
بود. اجداد وی که از اولین طراحان نقشه شهر نیو آمستردام برای پیتر اِستیو وسنات بودند. او در مدرسه
برای مشاهده این محتوا لطفاً ثبت نام کنید یا وارد شوید.
در
برای مشاهده این محتوا لطفاً ثبت نام کنید یا وارد شوید.
برای مشاهده این محتوا لطفاً ثبت نام کنید یا وارد شوید.
شرکت کرد و در
برای مشاهده این محتوا لطفاً ثبت نام کنید یا وارد شوید.
بعنوان یک شاگرد تازه‌وارد کارش را روی
برای مشاهده این محتوا لطفاً ثبت نام کنید یا وارد شوید.
و
برای مشاهده این محتوا لطفاً ثبت نام کنید یا وارد شوید.
بویژه فلسفه
برای مشاهده این محتوا لطفاً ثبت نام کنید یا وارد شوید.
متمرکز نمود. جانسون بخاطر چند سفر به
برای مشاهده این محتوا لطفاً ثبت نام کنید یا وارد شوید.
در تحصیلاتش وقفه انداخت. از وقتی که شروع به تحصیل کرد این سفرها به تناوب ادامه داشت. او از
برای مشاهده این محتوا لطفاً ثبت نام کنید یا وارد شوید.
،
برای مشاهده این محتوا لطفاً ثبت نام کنید یا وارد شوید.
و سایر یادبودهای تاریخی دیدن کرد که همین کار باعث شد که وی بیش از پیش مجذوب
برای مشاهده این محتوا لطفاً ثبت نام کنید یا وارد شوید.
شود.

در سال ۱۹۲۸ جانسون با

برای مشاهده این محتوا لطفاً ثبت نام کنید یا وارد شوید.
برای مشاهده این محتوا لطفاً ثبت نام کنید یا وارد شوید.
ملاقات کرد. وی در زمان طراحی
برای مشاهده این محتوا لطفاً ثبت نام کنید یا وارد شوید.
برای مشاهده این محتوا لطفاً ثبت نام کنید یا وارد شوید.
برای
برای مشاهده این محتوا لطفاً ثبت نام کنید یا وارد شوید.
بین‌المللی در
برای مشاهده این محتوا لطفاً ثبت نام کنید یا وارد شوید.
در سال ۱۹۲۹ شرکت داشت. این ملاقات باعث الهام بخشی به جانسون شد و پایه‌های ارتباط صمیمانه کاری و رقابتی در تمام طول زندگی را بنا نهاد. در برگشت از
برای مشاهده این محتوا لطفاً ثبت نام کنید یا وارد شوید.
، جانسون تبدیل به یک مبلغ این معماری جدید شده بود. تور مسافرتی
برای مشاهده این محتوا لطفاً ثبت نام کنید یا وارد شوید.
را که با دوستانش
برای مشاهده این محتوا لطفاً ثبت نام کنید یا وارد شوید.
،
برای مشاهده این محتوا لطفاً ثبت نام کنید یا وارد شوید.
می‌رفت به طور جامع و فراگیری بر آزمایش روی جدیدترین و دست اول‌ترین روند معماری بود. سه گروه از کشفیات آنها بعنوان نقطه عطفی است که نشان دهنده
برای مشاهده این محتوا لطفاً ثبت نام کنید یا وارد شوید.
است . نمایش معماران محوری چون
برای مشاهده این محتوا لطفاً ثبت نام کنید یا وارد شوید.
،
برای مشاهده این محتوا لطفاً ثبت نام کنید یا وارد شوید.
و
برای مشاهده این محتوا لطفاً ثبت نام کنید یا وارد شوید.
از دهه ۲۰ و ۳۰ میلادی تاثیرات خود را تدریجاً بر آمریکاییان گذاشت.

در سال ۱۹۳۰ جانسون جزء هواداران

برای مشاهده این محتوا لطفاً ثبت نام کنید یا وارد شوید.
شد و عقاید
برای مشاهده این محتوا لطفاً ثبت نام کنید یا وارد شوید.
خود را به چاپ رساند. وی سالها بعد گفت که من هیچ گونه عذری برای این کار احمقانه‌ام ندارم .... نمی‌دانم که چگونه باید کفاره گناهم را پس دهم.

در کتابی که جانسون و هیچکاک از نویسندگان مشترک آن بودند به بحث در خصوص شیوه جدید و مدرنی می‌پردازد که از سه اصل رسمی تابعیت می‌کند :

 

  1. تأکید بیشتر بر حجم معماری باشد تا جرم
  2. رد تقارن
  3. رد تزئینات کار بردی

در تعریف حرکت از دید منتقدان بعنوان یک شیوه با خصوصیتها و ویژگی

برای مشاهده این محتوا لطفاً ثبت نام کنید یا وارد شوید.
بیان شده‌است و آنرا در زمینه
برای مشاهده این محتوا لطفاً ثبت نام کنید یا وارد شوید.
و
برای مشاهده این محتوا لطفاً ثبت نام کنید یا وارد شوید.
کم اهمیت جلوه داده‌اند که بسیاری از کارورهای
برای مشاهده این محتوا لطفاً ثبت نام کنید یا وارد شوید.
نیز در آن سهیم هستند.

جانسون بعنوان یک هوادار از

برای مشاهده این محتوا لطفاً ثبت نام کنید یا وارد شوید.
به کارش ادامه داد و از
برای مشاهده این محتوا لطفاً ثبت نام کنید یا وارد شوید.
همانند یک دانش آموز بسیار خوب استفاده می‌کرد. وی اولین بازدید
برای مشاهده این محتوا لطفاً ثبت نام کنید یا وارد شوید.
از ایالت متحده را در سال ۱۹۳۵ را تنظیم کرد و سپس به آوردن
برای مشاهده این محتوا لطفاً ثبت نام کنید یا وارد شوید.
و نیز
برای مشاهده این محتوا لطفاً ثبت نام کنید یا وارد شوید.
بعنوان مهاجران سیاسی به ایالات متحده پرداخت.

 

 

 

in4l2y2k1o4d2jyxw.jpg

 

 

 

آخرین کار جانسون برای یکی امیرنشینان کشورهای خلیج فارس

 

 

 

 

oe6u75a5st6yy1b1tevd.jpg

ساختمان پست و تلگراف

 

 

 

خانه ی شیشه ای

j4jo8hvx07mr5hagb08.jpg

 

 

طرح خانه ی جانسون معمولا با خانه ی فارنزوورت اثر میس ون در رو مقایسه می شود، فیلیپ جانسون یکی از دوستان و طرفداران میس بود و مطمئنا با طرح خانه ی فارنزوورت آشنایی داشت، اگرچه خانه ی خودش زودتر از آن به اتمام رسیده بود.

این دو خانه ،علی رغم تشابهات واضح ،دارای تفاوت هایی اساسی در کانسپت خود هستند،در حالی که خانه ی فارنزوورت،ترکیبی از پلان های شناور است،خانهی جانسون،مکعبی ریشه دوانده در خاک می باشد.عنصر مشخصه ی آن نه شیشه هایی که ساختمان را احاطه کرده،بلکه یک استوانه ی آجری،شامل شومینه و حمام است که از یک کف آجری برخاسته و به داخل سقف نفوذ می کنئ.این فرم عمودی قوی ،همچون دیرکی در داخل سایت فرو رفته و توجه بیننده را به دید و منظر اطراف آن جلب می کند.در رابطه با این موضوع ،خانه بیشتر مدیون فرانک لوید رایت می باشد تا میس ون در رو.جانسون این طرح را به یک مکعب (اردوگاه)تشبیه کرده،یعنی آتش و سکویی روی زمین که از آنجا می توان با آسودگی طبیعت را مشاهده کرد.

 

jsuh1lc1pytvfn5mfs07.jpg

 

rq6sn6pktwqoikdmeyf9.jpg

 

4d7ey1i4tpb3c335wry5.jpg

 

rn8dy4zkmavfqf9u4h.jpg

 

اگر این خانه یک کمپ باشد،مطمئنا نوع کاملا متمدنی از آن است.جانسون در سال 1949 یک چهره ی کاملا موثر در معماری شناخته می شد،چرا که قبل از آن،نمایشگاه سبک بین المللی را در سال 1932 در نیویورک سازماندهی کرده بود،اما او یک دوستدار متمول غیرحرفه ای هنر بود و به تازگی از مدرسه ی معماری هاروارد فارغ التحصیل شده بود،بنابراین طرح خانه ی جانسون باید هم نشانه ای از ورود او به عنوان یک معمار حرفه ای به شغلش می داشت و هم یک خانه ی راحت برای شخصی خوش ذوق محسوب می شد.این کمپ با کارهای هنری جالب توجه آراسته شده و شامل تابلوی مراسم تدفین فوشن اثر نیکولاس پوسین در یک قاب فلزی بی پیرایه،صندلی های بارسلونی کلاسیک اثر میس و گنجه های زیبایی،ساخته شده از چوب درخت گردو برای تقسیم فضا می باشد.

 

29lomiukybt35reie8s.jpg

 

 

sfioxp7p475s0yziax1.jpg

 

0a3tp9lyrylkzr10s4rr.jpg

 

fz3dfnrfednx2qctaqi7.jpg

 

و شاید مهم تر از این ها این باشد که سکوی جناقی آجری زمین،از داخل گرم شده و دیوارهای شیشه ای،ساکنین را از باد و برف نیوانگلند محفوظ می دارند.در خانه ی فارنزوورت،سازه حرف اول را می زند،فولادهایی با مقطع H نقش ستون هایی کلاسیک را ایفا می کنند،اما در خانه ی جانسون ستون های فولادی تنها قسمتی از قاب نگهدارنده ی شیشه هستند.جزئیات ساختمانی ،مرتب و به سبک میس هستند اما معنای سازه ای ندارند.چهار در یک لایه که هر کدام در وسط دیواری قرار دارند،به عنوان هواکش محسوب شده و خانه را حتی در گرم ترین روزها خنک نگه می دارند.

خانه ی شیشه ای از یک جهت،تنها نیمه از یک خانه است.میهمانان در یک سازه ی دیگر جای داده می شوند که مدلی منفی از این ساختمان و به صورتی آجری و سخت است.این خانه ی آجری در همان زمان ساخته شد،اما از نظر سبک طراحی به دوران دیگری تعلق دارد،حجمی سه طبقه که داخل آن،یک سازه ی پوسته مانند از گنبد کم عمق وجود دارد و با قوس های نرم و ستون های ظریف ترکیب شده است،صبحانه خوری موجود در خانه ی لندن اثر جان سوان یک منبع الهام تصدیق شده برای این طرح است.با توجه به این مسئله از کارهای بعدی پست مدرن جانسون،مانند برج T&AT در نیویورک کمتر شگفت زده می شویم.

 

 

33q0ytlw8594kvpl9bji.jpg

 

 

zjm9s5818dhpv7kklh9u.jpg

 

 

h9fsv9m5blz5bc7o3bu.jpg

 

 

xmrpl0zkj67mnx537mmo.jpg

 

 

oqjong2foqp54kjmcup.jpg

 

 

osn2qybkec57ngzgfrgu.jpg

 

 

qcig89g6ic7majc5t.jpg

 

 

خانه ی میهمان،فرم ساده تری از خانه ی شیشه ای است،بنابراین تبدیل به یک نمایشگاه می گردد،مانند یک معبد کلاسیک در باغی بریتانیایی و خوش منظره.قرار گرفتن این طرح بر روی یک شیب تند،باعث شده تا برخی آن را به پارتنون یک آکروپلیس کوچک تشبیه کنند.مقایسه هایی مانند این،توسط شخص جانسون نیز به سهولت تصدیق شده اند.او در سال های بعد،زمین های بیشتری را در اطراف سایت پروژه خریداری نمود و آن را از 2 هکتار به 16 هکتار گسترش داد و خانه های متعدد دیگری ساخت که برخی مانند کارگاه ساخته شده در سال 1980،عملکرد گرا بوده برخی مانند قصر کوتوله ی اویل ،برای نگاه کردن از دریاچه ی پایین دست شیب طراحی شده اند.

 

 

mcbrgqhexxgrcw8jqe.jpg

 

 

  • Like 9
ارسال شده در

لینک زیر مربوط به فیلمی کوتاه با زمان 55 ثانیه است که کانسپت اصلی کار رو نشون میده....

وقت زیادی نمیگیره دانلودش رو توصیه میکنم...مخصوصا برای بچه هایی که برای نمونه مشابه میخوان از فیلم با زمان کوتاه استفاده کنن...:flowerysmile:

برای مشاهده این محتوا لطفاً ثبت نام کنید یا وارد شوید.

  • Like 8
ارسال شده در

باب دهم

معمار:هری سایدلر

معماری:خانه رز سایدلر

 

st0l68jsfjwof0mnwp1p.jpg

 

متولد وین در سال 1923 بود و از بریتانیا و کانادابه دانشگاه هاروارد رفته بود و زیر نظر والتر گروپیوس اموزش معماری دیده بود .او با فارغ التحصیلی در سال 1945 شغلی در دفتر کار مارسل بروئر درنیویورک اختیار کرد و بر روی خانه های متعددی شامل کلبه ی چیمبرلینو خانه شخصی بروئر کار کرد. وی تبدیل به یک پیرو علاقه مند استادان خود گردید و هنگامی که نزد والدینش در سیدنی امد خانه ای را به سبک بروئر برایشان طراحی کرد و طرح این خانه کپی دقیق خانه ای است که سایدلرهمراه با اردی تامسون همگامی که در نیویورک بود طراحی کرد وخانه رز سایدلر فقط به خاطر واقع شد نش در خاک استرالیا یک خانه استرالیایی محسوب می شود.

 

 

y5a1e61tjti9eetquhil.jpg

 

The Berman House by Harry Seidler

 

 

unllolmqpakz2yzf3ps6.jpg

 

 

 

 

 

 

خانه ی رز سایدلر

 

aatwzlc0f1dhuwfcup.jpg

 

جایزه ی معماری برجسته ی سر جان سولمان که به خانه ی رز سایدلر در سال 1951 تعلق گرفت،نشان دهنده ی پذیرش مدرنیسم باهاوس،در معماری استرالیا بود.

خانه ی رز سایدلر از هر جهت،یک کالای وارداتی خارجی بود.هری سایدلر خود به تازگی وارد این کشور شده بود،او که متولد وین در سال 1923 بود،از بریتانیا و کانادا به دانشگاه هاروارد رفته و زیر نظر والتر گروپیوس،آموزش معماری دیده بود.او با فارغ التحصیلی در سال 1945 شغلی در دفتر کار مارسل بروئر در نیویورک اختیار کرد و بر روی خانه های متعددی ،شامل کابه ی چیمبرلین و خانه ی شخصی بروئر در نیوکینان در کانتیکات کار کرد.وی تبدیل به یک پیرو علاقه مند استادان خود گردید و هنگامی که نزد والدینش در سیدنی آمد،خانه ای را به سبک بروئر برایشان طراحی کرد،طرح این خانه،کپی دقیق خانه ای است که سایدلر همراه با آر دی تامسون هنگامی که در نیویورک بود طراحی کرد.خانه ی رز سایدلر که در حومه ی شهر سیدنی،به نام تورامورا واقع شده است،فقط به خاطر واقع شدنش در خاک استرالیا ، یک خانه ی استرالیایی محسوب می شود.

 

 

5x92owtc4nccre4tcoi.jpg

 

 

hgtwebk1fzfogqf535.jpg

 

 

iptgki2vednvczc68s.jpg

 

 

oxl5317b9vapilfe9dxo.jpg

 

 

طرح این خانه یک مکعب نمونه ی بروئر است که از زمین رشد کرده و به اطراف کنسول شده است،خانه دارای پلان U شکل ،همراه با اتاق خواب هایی در یک بال و فضاهای نشیمن،در بال دیگر می باشد که توسط یک فضای خانوادگی چند منظوره و تراسی باز از یکدیگر جدا شده اند،تراسی که بیشتر شبیه قسمتی از مکعب کلی طرح می باشد و بیشتر مانند یک اتاق به نظر می رسد.

علی رغم این حقیقت که خانه،طرحی دست دوم دارد،یکی از نکته های جالب آن،ارتباط میان خانه و زمین آن می باشد.یک شیب تند رو به شمال،که دید های وسیعی بر فراز دره ی جنگلی دارد،کنده شده و با دیوارهای حائلی از سنگ طبیعی که مانند لنگرهایی ساختمان را به زمین اطراف آن پیوند می دهند حفاظت شده است.

 

 

awja15es8l2miyfcuzb9.jpg

 

 

r0kvogug9dqa9wc7l0h.jpg

 

 

u7oi8qwd9x85r9du4qf.jpg

 

 

ttr2zdtxmh6hjvecp15u.jpg

 

 

f26wara07szjnjfl0cfu.jpg

 

 

مکعب اصلی ساختمان ،بر روی این سکو با ارتفاع یک طبقه روی زمین قرار می گیرد و دارای یک پارکینگ ،یک اتاق کار و هال ورودی کوچکی می باشد که در پای طرح کنده کاری شده است.یک پله ی مستقیم ساده ،از هال ورودی برخاسته و به میان طبقه ی اول،در همجواری یک وید کوچک پشت یک تراس چوبی،منتهی می شود.کمی جلوتر وسیله ی مورد علاقه ی بروئر قرار دارد،یک شومینه ی سنگی مستقل،همراه با دودکش که نشیمن و ناهارخوری را از یکدیگر جدا می کند.از سمت چپ اتاق خانواده و آشپزخانه،می توان به تراز بالایی کناره ی محوطه وارد شد.

 

 

snydbammqlb68utr7u0.jpg

 

 

v0ryf4v4e81jt67k5twv.jpg

 

 

uovbjf0l5u02gmmfl2.jpg

 

 

r53mbcq33raznx37s3ij.jpg

 

 

8tvqp0sigk9s5ycgab9.jpg

 

 

sv0vpl82chnx3irtzr3g.jpg

 

 

5g9efk1i3zsagnhg1ky4.jpg

 

 

badnyibdalisv0tsnq4.jpg

 

 

2de21vcqyvryta2g12j.jpg

 

 

wvgia0oskqg5rup1ilrv.jpg

 

 

سایدلر زبان اولیه ی معماری را از بروئر آموخت،اما از اشتباهات استاداش نیز پند گرفت.خانه ی ساخته شده در نیوکینان به دلیل طول بیشتر از حد کنسول های چوبی دچار ریزش شد.خانه ی رز سایدلر نیز دارای دیوارهای چوبی می باشد،اما آن ها بر روی یک کف بتنی مسلح قرار گرفته اند که توسط دیوارهای بتنی و ستون های فولادی باریک وگرد حفاطت می شوند.تیرهای کنسول شده ی بتنی،تراسی را تعریف می کنند که از آن یک رمپ طولانی چوبی ،تا جلوخان طرح پایین می رود.نماهای جعبه ی ساختمان،آزادانه ترکیب بندی شده اند تا با فضاهای پشتی سنخیت داشته باشند،در این نماها پانل ها شیشه ای مرتفع با صفحات چوبی ترکیب شده و هر از چندگاهی توسط پنجره های معمولی سوراخ شده اند.یک نقاشی دیواری آبستره که توسط معمار طرح کشیده شده است،یکی از دیوارهای اتاق تراسی طرح را می پوشاند.

 

 

ljknx4bpdv6xvljznff2.jpg

 

 

r6db5aecfoq1m0u6by0.jpg

 

 

ig7qs7bb60bpttzlxjm.jpg

 

 

9sxs8qhwek4hncvikutp.jpg

 

 

kiaesw1rfstbssy99c.jpg

 

 

 

 

 

 

qinnskcqzm6p5wmwg7m.jpg

 

برای مشاهده این محتوا لطفاً ثبت نام کنید یا وارد شوید.
/

  • Like 5
ارسال شده در

باب یازدهم

معمار:ریچارد نوترا

معماری:خانه ی سلامت

 

ofz9p078vtcvh9dd6wv.jpg

 

ریچارد نوترا در تاریخ 8 آوریل سال 1892 متولد شد. او در خانواده ای ثروتمند که هر دو یهودی بودند متولد شد. پدر یهودی مجارستانی او ساموئل (سال 1844 ، 1920) مالک ریخته گری فلز بود ، و مادرش، الیزابت بتی گلاسر (1851، - 1905). ریچارد دارای 2 برادر که به ایالات متحده آمریکا مهاجرت کرد، و یک خواهر دارد که در وین ازدواج کرد.

او تا 1910 به در وین حضور داشتد ، و او تحت آموزش های اولیه آدولف لوس در دانشگاه وین انجام شد.

صرف نظر از اندازه پروژه، در مقایسه با دیگر معماران مشتاق بود دید هنری خود را بر مشتری تحمیل. معماری داخلی او ترکیبی از هنر ، چشم انداز و آسایش عملی بود.

ریچارد نوترا درووپرتال، آلمان ، در تاریخ 16 آوریل1970درگذشت.

دیون پسرنترادفتردریاچهنقره ایوخود و پدررابهعنوان" معماری ریچارد و دیوننوترا " نگه داشته است.

 

 

phnjup3n6h9kj6oa0bk.jpg

 

The Gettysburg Cyclorama and Visitor's Center in 1962. Richard Neutra

 

 

 

 

خانه ی سلامت

 

u68sdr17nqj6oiri1t.jpg

 

زندگی سلامت موضوع اصلی مدرنیسم در دهه ی 1920 بود،معماری سفید رنگ جدید،ضیافتی از هوای تازه،نور آفتاب و فضایی برای جسم انسان آزاد شده بود.فیلیپ لاول،پیشرو زندگی سلامت و پزشکی از نیویورک بود که از راه ترویج ورزش های مفرح،گیاه خواری و آفتاب گرفتن معروف شده بود.همسر او لی مدیر یک مهد کودک بود.لاول مقاله هایی در مورد زیبایی و سلامت در مجله ی لس آنجلس تایمز منتشر می کرد و هر از چندگاهی نکاتی در مورد ساخت خانه های سلامت مطرح می نمود.هنگامی که وی آغاز به ساخت یک خانه ی بزرگ برای خانواده اش در هالیوود هیلز نمود،این امر به طور اجتناب پذیری تبدیل به نمایشی از ایده های او گردید.خانواده ی لاول پیش از این،رادولف شیندلر را برای طراحی خانه ای در نیوپورت بیچ به خدمت گرفته بود.آن ها برای ساخت خانه ی جدیدشان به یک مهاجر اتریشی دیگر،یعنی دوست شیندلر و شریک سابق او ریچارد نوترا روی آوردند.

 

 

4zse1za138y99z4snrg.jpg

 

 

cy1vwhk2xvf73afd5bkz.jpg

 

 

j7868hc444zd0al71e.jpg

 

 

xtf5fxv9y0vs6dffkq.jpg

 

 

ve73fiobura5qzh4cyi.jpg

 

 

1q6p5t0utoh28ibaablq.jpg

 

 

gl0j2xdtzjkbkktzyvd.jpg

 

 

2ejjaemner3j0fgkies.jpg

 

 

wykc9lf2wfs2peaxg9t.jpg

 

 

nm1mtk8dpy1zthkcrwec.jpg

 

 

نتیجه ی این قضیه ی خانه ای بود که برترین ساختمان های آوان گارد (پیشرو سبک هنری)اروپا را به رقابت می طلبید،به طور نمونه از آنجاییکه ویلاهای لوکوربوزیه فرم های آبستره (انتزاعی) و پلان های باز خود را از مصالح شلوغی مانند بتن درجا و آجرکاری معمولی به دست می آوردند،خانه سلامت از قطعات فلزی دقیق ساخت کارخانه اجرا شد.این ساختمان یک قاب سبک با ستون های محیطی ،در فواصلی نزدیک به اندازه ی دو برابر جرزهای میان پنجره های با قاب فلزی دارد.سقف ها و کف ها توسط خرپاهای مشبک نگه داشته شده اند،از قطعات مشبک در طرح خانه ی ایمز نیز بیست سال پس از تاریخ ساخت خانه استفاده شد.دیوارهای مات این ساختمان ساخته شده از بتنی هستند که به شبکه ی فلزی پاشیده شده اند و این تکنیکی است که لوکوربوزیه نیز در آن زمان ها در حال تجربه آن بود.

فرم خانه به اندازه ی تکنولوژی ساخت آن پیشرفته بود.آنچه که در سال 1928 جدید به نظر می رسید،هندسه ی تفریقی این ساختمان بود.با نگاهی از جنوب غربی به ساختمان،مستطیل ساده ی سقف،یک تصور اجمالی از جعبه ای سه طبقه به وجود می آورد که در دامنه ی تپه کنده شده است.مقاطع دیوارهای بیرونی در این شکل کلی عقب نشینی کرده و سقف ها و کف های بالای خود را ظاهرا بدون مهاربندی باقی گذارنده اند.از نظر سازه ای این طرح نه متوسط کنسول کردن کف ها،بلکه به وسیله آویختن آن ها از تیرهای سقفی کنسول شده اجرا شده است.در پایین ترین تراز،تو رفتگی عمیقی،یک تراس و نیمی از استخر شنا را به خود اختصاص می دهد اما این جا،سازه ی نگهدارنده تبدیل به یک کولوناد زیبا می شود.

نوارهاب بتن سفید از جعبه بیرون زده،به دامنه ی تپه می رسند و تبدیل به دیوارهای حائل منحنی شکلی می گردند که خانه را به مهد کودک لی در مجاورت خود پیوند می دهد.

 

 

d2cz8t3le059cs875f08.jpg

 

 

32kh5i1tc76tzbs8zknc.jpg

 

 

wmw4pdtu4zefxre1elto.jpg

 

 

jcm0klov1xdwej9y13i3.jpg

 

 

hmchaatz6njuycefrl84.jpg

 

 

ورودی اصلی در بالاترین طبقه قرار دارد که دربرگیرنده ی اتاق خواب ها می باشد.خوابیدن در هوای آزاد،قسمت مهمی از ایده ی طراحی خانهی سلامت لاول می باشد،از این رو هر اتاق خواب دارای ایوان مجاور حائل داری،با دیدد و منظر وسیع به شهر لس آنجلس در سمت جنوب و منظر طبیعی گریفیس پارک در سمت شمال می باشد.از هال ورودی،یک پلکان وسیع به یک نشیمن کشیده ی باریک،در سمت پایین منتهی می شود.کتابخانه و ناهارخوری که در مجاورت نشیمن اصلی قرار دارند،با یک شومینه ی روستایی طراحی شده اند که احتمالا تاثیر یکی از معلمان نوترا یعنی فرانک لوید رایت می باشد،اما در این محیطی کلینیکی و شبیه انستیتو کمی نامتجانس به نظر می رسد.پلکان ساختمان که محصور نشده است،در فضای رو به جنوب مرتفعی که با دیوارهای شیشه ای پوشیده شده است جای گرفته و یکی از فضا آن را در ستون روزنامه اش چاپ کرد و جمعیت زیادی برای بازدید آن سرازیر شدند.بسیاری به دلیل شخصیت ناسازگار او،از بازدید خانه محروم شدند.اما معماران محلی از آن الگو گرفتند و مدرنیسم کالیفرنیا قدمی دیگر به جلو برداشت.

 

 

 

 

 

  • Like 7
ارسال شده در

فایل کد خانه ی سلامت برای آشنایی بیشتر ضمیمه این پست شده است.

برای مشاهده این محتوا لطفاً ثبت نام کنید یا وارد شوید.

  • Like 7
ارسال شده در

باب دوازدهم

معمار:بروس گاف

معماری:خانه ی باوینگر

 

939qvprdgghyz9qak1ph.jpg

 

بروس آلونزو گاف متولد ۱۹۰۴، معمار آمریکایی بود. او در

برای مشاهده این محتوا لطفاً ثبت نام کنید یا وارد شوید.
به تدریس پرداخت، و پیرو سبکهای «ارگانیک» متعلق به معمارانی چون
برای مشاهده این محتوا لطفاً ثبت نام کنید یا وارد شوید.
بود.یک معمار آمریکایی متمایز بود و اغلب طراح طرح های پرزرق و برق برای خانه ها و ساختمان های مختلف در اوکلاهاما و جاهای دیگر بود.متولد آلتون، کانزاس و در کودکی نابغه ای بود.او در سن دوازده سالگی شاگرد راش، راش و تلسا در اوکلاهما بود. او در ۱۹۸۲ درگذشت. آرامگاه گاف با نمادی توسط گرانت یکی از دانش آموزان او طراحی شده است.

 

 

1v7q40zaf2330l2enr.jpg

 

 

نماد طراحی شده بر روی آرامگاه گاف

 

 

 

 

 

4skzkqaeys685t699tso.jpg

 

 

 

 

(hopewell baptist church)

 

 

 

 

hs4pi3k4g0iuxoax1in0.jpg

 

 

 

 

ylt58uw14qahsy6qhnpm.jpg

 

 

 

 

struckus house

 

 

 

 

mdm2u4nsg4gkrzs81wo.jpg

 

 

 

 

 

 

 

 

 

 

 

 

خانه ی باوینگر

 

1i2rsdyke6jispn32nem.jpg

 

در مورد خانه ی باوینگر چیزی که مورد قبول همه ی افراد باشد،وجود ندارد،این خانه حتی درون و بیرونی مجزا از یکدیگر ندارد.فضایی که توسط دیوار سنگی حلزونی شکل آن ایجاد شده است،از گشودگی نسبی تا محصور بودن نسبی ادامه می یابد.دیوار شیشه ای وجود دارد که به صورت فرضی فضای بیرون را از درون جدا می کتد،اما کف پوش سنگی در هر دو فضا از یک جنس می باشد،مجموعه ای با شکوه از پیچک ها و گیاهان رونده،بدون اینکه دخالتی در حرکت آنها ایجاد شود بین فضاهای داخلی و خارجی کشیده شده اند و هیچ تغییری نیز در سطح زمخت دیوارهایی از جنس سنگ لاشه،ایجاد نشده است.پس از گذر از قسمت از ورودی به یک آبگیر با ماهی های تزئینی می رسیم.سقف خانه به شکل پوست گرفته شده ی سیب می باشد و نه توسط دیوار،بلکه با کابل های کششی که ببه ستون فولادی مرکزی متصل هستند،نگه داشته می شود.هیچ پنجره ی متعارفی در ساختمان به چشم نمی خورد،نور طبیعی روز از طریق نوارهای سرتاسری شیشه ای مسان سقف و دیوار به داخل فضا راه می یابد.

 

 

b44ts6ssyzqyjs4yqp.jpg

 

vvt8kloaowc4dj334y1c.jpg

 

1gkxwii5r0jrztjub2.jpg

 

9y5fbyvmx41zajxzwbvl.jpg

 

 

 

در مرکز تنگ این فرم حلزونی شکل،جایی شبیه یک آشپزخانه ی متداول وجود دارد،اما اتاق خواب ها کجا هستند؟اتاق خواب ها در فضا مانند مجموعه ای از بشقاب های کوچک در حال پرواز معلق هستند.اگر شما بخواهید در بشقاب کوچکی که از سقف آویزان است بخوابید لباس ها و وسایل دیگرتان را چه می کنید؟جواب این است که آن ها را در کمدهای استوانه ای مجاور دوار که آن ها نیز از سقف آویزان شده اند می گذارید.این بشقاب های کوچک،نام های متعارفی مانند فضای خواب والدین یا فضای بازی کودکان بر روی پلان دارند و قسمت های فرو رفته ی خاصی در طبقه ی همکف،برای ناهارخوری ،اوقات فراغت یا استراحت تخصیص داده شده اند،اما آیا اهمیتی دارد که چه فعالیتی در کجا انجام می شود؟این یک محیط شبه طبیعی و یک زمین بازی پرهیجان و یا شاید تکه باغی از بهشت باشد که از قید هر چه که در این دنیا هست آزاد می باشد.

با تمام این اوصاف یک هندسه ی کنترل کننده در خانه ی باوینگر وجود دارد،فرم حلزونی،کاملا لگاریتمی است و هر یک از بشقاب های کوچک مغلق در فضا،دارای کمد گردان مخصوص به خود می باشند.همچنان که فرم حلزونی در داخل خود تنگ تر می شود،این بشقاب های کوچک معلق،همراه با اقمارشان (کمدها)به دیوار بیرونی نزدیک تر شده و نهایتا آن را شکسته و از آن بیرون می زنند.آخرین و بلندتربن بشقاب که تخصیص به فضای کارگاه یافته است تبدیل به استوانه ی بیرون زده ای شبیه برجک توپخانه ی یک قصر شده است.

 

 

ob4jbqq9au9u4j1sv9pg.jpg

 

 

 

 

rr9enw4lcg798m2jsy5.jpg

 

 

 

 

3h8he2b18bsr5j8ff46t.jpg

 

 

 

 

lwxvchrmwkjlo5h9sw1l.jpg

 

 

 

 

1gxs88y1qalzp3a9iy.jpg

 

 

 

ژان و نانسی باوینگر هنرمندان آموزش دیده در دانشگاه محلی نورمن در اوکلاهاما بودند،جایی که بروس گاف رئیس بخش معماری آن بود.آن ها کارفرمایانی عالی بودند چرا که برایشان اشکالی نداشت که ساخت خانه 5 سال به طول انجامید و خودشان اکثر کارهای آن را با کمک شاگردان گاف انجام دادند.هنگامی که ساخت خانه به پایان رسید،توجه انبوهی از بازدیدکنندگان کنجکتو را جلب کرد،که شامل معماران و ساکنین محلی بودند از این رو خانواده ی باوینگر،ورودیه ای به مبلغ یک دلار تعیین کرده و درصدی ار هزینه های ساخت را مجددا به دست آوردند و بیش از چهل سال در این خانه زندگی کردند.

 

 

q9smj8kohb44xm5mbp5f.jpg

 

 

 

 

78er6kssw5cy9w628y.jpg

 

 

 

 

dq5p00bodet211cpolc5.jpg

 

 

 

 

aikns7syquz9mbr4ml9q.jpg

 

 

 

 

 

 

 

n4f5156vywy563256iyo.jpg

 

 

 

 

55ixu98qmp1nbmhlrkuq.jpg

 

 

 

 

0s8feecngqa2ynsmgjir.jpg

 

 

 

 

33gjg0vj9qci9qqjto9r.jpg

 

 

 

 

h9x5tv17ers5qz47xmj.jpg

 

 

 

 

u625qy48axh2er3hn0lo.jpg

 

38otdrp4e98av96wxr2.jpg

 

4s4jvsuhddbtrx19yluj.jpg

 

j7sezcmloluknd0ykdle.jpg

 

z10qhntgxw7j33hxuhwf.jpg

 

yj1lenh2sw9soapcqrhl.jpg

 

v5v3e7iq72zel0awr38w.jpg

 

se18y9inn8ieii3o4vz6.jpg

 

72xw92keqx80mrx71ep.jpg

 

r2yxxihyhokea0po67py.jpg

 

fdy3tlbmv2hzr9rq9cy.jpg

 

بروس گاف یک معمار تجربی بود که به هر توع تفکر در مورد سبک های طراحی اعتنایی نداشت.او نگرش غریبی نسبت به زمان داشت و معتقد به تفکر نه در زمان گذشته و نه در آینده،بلکه تنها در چیزی بود که وی از آن به عنوان زمان حال مستمر یاد می کرد،بدین گونه،زمان ساخت برخی از ساختمان های او،به سختی تنها با دیدن جلوه ی بیرونی ساختمان قابل تشخیص بود و خانه باوینگر نمونه خوبی از این دست است.این خانه بازگشتی دوباره به طبیعت است اگرچه نگاهی به گذشته ندارد،با وجئ اینکه طرح این ساختمان نوعی خیال پردازی است،طرح کاملا آینده نگر نمی باشد.به عبارت دیگر خانه مانند معمارش ،مرهون کسی جز استاد و دوست قدیمی گاف یعنی فرانک لوید رایت نیست.

 

 

 

 

 

 

 

 

  • Like 7
ارسال شده در

باب سیزدهم

معمار:کورزیو مالاپارت،ادالبرتو لیبرا

معماری:خانه ی مالاپارت

 

zr0i4funb8p2wiyi1s.jpgکورزیو مالاپارت

 

کورزیو مالاپارت آشیانه ی تنهای خود واقع در دماغه ی صخره ای جزیره ی کاپری را چنین توصیف کرد:خانه ای شبیه خودم.از قرار معلوم او خود را تندیسی اسطوره ای،شاعر یا پادشاه تصور کرده است.در حقیقت وی یک روزنامه نگار و یک فعال سیاسی بود و آنقدر مهم بود که توسط فاشیست ها ،قبل از جنگ جهانی دوم و توسط ضد فاشیست ها،پس از جنگ زندانی شود.

مطمئنا مالاپرات یک قدیس نبود و به نظر می رسدکه خانه را حداقل با قسمتی از سرمایه ی یک روزنامه نگار نیکخواه،از روی فریب او به دست آوردهه باشد.او سایت پروژه را به دلیل اینکه از سوی دست اندرکاران جزیره ی کاپری اجازه ی ساخت نداشت،به قیمت کمی خریدار کرد و از نفود سیاسی خود برای از بین بردن محدودیت ساخت در این جزیره استفاده نمود.

 

rizgg8ku5qg8hpms8xa.jpg ادالبرتو لیبرا

 

مقیاس و سادگی،رموز قدرت این ساختمان هستند.به نظر می رسد این ساختمان که کمی بیش تر از مکعی عریان است،قسمتی بیرون زده از همان صخره ای است که بر روی آن قرار دارد،اگرچه مانند یک دژ بر ساحل دریا حکم فرمایی می کند.این طرح معمولا به معمار خردگرای اهل رم به نام ادالبرتو لیبرا نسبت داده می شود،اما طرح لیبرا چیزی بیش از یک نقطه ی آغاز نبود.این خود مالاپارت بود که با سازنده ی این طرح به نام آدولفو آمیترانو که شکل دهنده ی نهایی ساختمان بود و بارها و بارها در طول دوره ی چهار ساله ی ساخت آن را تغییر داده بود کار کرد.

 

از کارهای ادالبرتو لیبرا

5c378qeba78ms6sdj6l4.jpg

 

libera-tuscolano-edificio-linea

 

kq6icy35ol6nqlhu09.jpg

 

libera-tuscolano-edificio-ingresso

 

 

 

 

 

خانه ی مالاپارت

 

ahje1ownok6vcut3x.jpg

مهم ترین ویژگی این ساختمان،مجموعه پله های گوه شکلی می باشد که تا روی تراس سقفی در قسمت ساحلی بنا پیش رفته است و گویا اقتباس دقیقی از پله های مقابل کلیسای آنونزیاتا در لیپاری جزیره ای که مالاپارت در سال 1934 در آن زندانی بود می باشد.برای دوره ای کوتاه در طول ساخت،ورودی اصلی خانه از طریق شیاری در میان بازوهای پله،مانند یم ومیتوریوم در یک تئاتر رومی بود.این نوع آرایش دارای منطق عملکردی و فرمی قوی بود،اما نهایتا رد شد که شاید به دلیل احتمال جاری شدن سیل از آب دریا در هوای طوفانی بود.

 

8kztd5v9okhtkx4dkch.jpg

 

7qg9aqwdppro2x9g0azx.jpg

 

j3fvgxbae7t1helzusso.jpg

 

bym46fb7o4n2g1zrdhy3.jpg

 

ucp9df5u9zaswm3u4w.jpg

 

 

مسدود کردن ومیتوریوم (ورودی آمفی تئاتر) تاثیراتی مخرب بر روی پلان داشت،چرا که ورودی اصلی را در یک سمت به طبقه ی همکف منتهی می کرد و پلکان داخلی را در گوشه ا ی نامناسب به زور جای می داد.اطمینان از این بابت وجود دارد که مالاپارت یک آرایش متقارن را ترجیح می داد،مانند پلان سوئیت شخصی اش در انتهای دیگر ساختمان،همراه با حمام های دوقلو و کریدورهای T شکل آن.برداشتن ومیتوریوم ارتباط میان نشیمن اصلی و تراس سقفی را از بین برد و در بنای ساخته شده ی نهایی،ارتباط میان این دو فضا به صورت پیچ در پیچ و مجموعا با پایین رفتن از 16 پله و بالا آمدن از 48 پله صورت می گیرد،اما برای مالاپارت تصویر خانه(و در نتیجه تصویر شخص وی)مهم تر از حل پلانی موثر بود.مقطع دیوار بادشکن،در تراس بدون فرم و حفاظ آن،بارها قبل از رسیدن به پیچ و خم زیبای آن تغییر داده شد.فضاهای داخلی اکثرا کوچک و اتاق هایی جعبه مانند می باشند،به استثنای نشیمن اصلی که محوطه ای به ظاهر بیرونی و عظیم،شبیه آثار کلاسیک است که دارای یک مجسمه ی حجاری شده به نام دانزا اثر پریکل فازینی می باشد.پنجره های دل باز و خوش اندازهایی هومری از خلیج ناپل دارند.

 

1q2buha91e5cflhd0bd8.jpg

 

 

pc7ae9k7uur827cfgic.jpg

 

 

o7iq209evtj0t1j6oxcd.jpg

 

qwexsoh9d9vq6sr8zqt3.jpg

 

nzf2pskuaj4ab1xafeyr.jpg

 

 

 

 

این خانه برای اولین بار توجه اذهان عمومی را در سال 1963 یعنی 6 سال پس از فوت مالاپارت به خود جلب کرد،و آن هنگامی بود که ژان لوک گدار آن را به عنوان محل فیلم برداری فیلم خود به نام خفت با بازی بریژیت باردو انتخاب کرد.

 

j904rqxdhpk2oe5x50d1.jpg

 

f2t5r5qvaao8l5rfov0x.jpg

 

lho2hgogjy7z5vdt8ae.jpg

 

o0k8qsrax0x5by68z3oa.jpg

 

02jfp72jndc1t1qtikts.jpg

 

r8hgqsd1e9lntnyokref.jpg

 

eycwh3v262md08umes9z.jpg

 

111l3ip15stirhjpx2l.jpg

 

q5qhrehnjkq2e3u5c6j3.jpg

 

xxmy5xty9dpcemvjmd8.jpg

 

 

1gw7etzv1odtmdj7mzd.png

 

w48v613yyc1lxi8es9k3.jpg

 

mmli5xat2x7ienokfzy.jpg

 

c9p6nykztxiv0t9d4t8g.jpg

 

izrif02l6i2nfhwsqde7.jpg

 

 

jl2rmum16l7fg2vjnvkk.jpg

 

ef22t2me5phsepbrdhnr.jpg

 

te1g9bnz61ae94iklw.jpg

 

k20a7chf1ig2zgw23kbt.jpg

 

5sphz4tvvni22pdjwvu.jpg

 

 

tc9k8r9doc54v281wnsv.jpg

 

w7015x6lekt8ndfls4bi.jpg

 

kx9sf49vtgbe31kf62.jpg

 

sxh49w7aqz73e9x1x8tu.jpg

 

nssaw5uukh987up4dfxf.jpg

 

7u5ijtt82aepkc2z5tzj.jpg

  • Like 6
ارسال شده در

باب چهاردهم

معمار:فرانک لوید رایت

معماری:خانه جیکوبز

 

wbzguh8ltotnimo7tz1.jpg

 

در ۸ ژون ۱۸۶۷ در ریشلندسنتر ایالت ویسکانسین متولد شد. پدرش William Carey Wright و مادرش Anna Lloyd Jones بود.پسر یک کشیش و تعمید دهنده کلیسا بود. باباش مذهبی بوده و در کلیسا ارگ میزده و برای امرار معاش گاهی موعظه و گاهی موسیقی درس میداد. ۷-۸ تا بچه بودند.در ۱۸۸۱ وقتی رایت ۱۴ سالش بود بدر و مادرش جدا شدند و پدرش برای همیشه خانه را ترک کرد.نام اصلی او Frank Lincoln Wright بود که در این زمان به احترام خانواده مادرش نامش را از Lincoln به Lloyd تغییر داد!!...

به این ترتیب رایت تحت سرپرستی مادری قدرتمند که او را دوست می داشت و همیشه تحسینش می کرد در دشت هایی با صخره هایی تنها و زمینی سیاه و بهاری سبز به شکلی رمانتیک رشد کرد.

بعد از دو سال تحصیل در رشته مهندسی ساختمان در دانشگاه ویسکانسین بدون گرفتن مدرک دانشگاه را ترک کرد و برای کار به دفتر لایمن سیلزبی در شیکاگو رفت. دایی اش که در شیکاگو بوده او را به دفتر سلیوان و ادلر می برد و او به مدت ۵ سال (۱۸۸۸-۱۸۹۳) در دفتر سلیوان بود. رایت از سلیوان به عنوان استاد محبوب و از ادلر به نام کهن سرور بزرگ یاد می کند. در دفتر سلیوان خانه های مکتب شیکاگو طراحی می کردند اما رایت همان روز اول با افراد اتلیه دعواش میشه و سلیوان او را به اتاق جدایی می برد و او به طراحی خانه های ویلایی که الهام گرفته از کلبه های دهاتی زادگاهش بوده به جای ساختمان های مکتب شیکاگو می پردازد. در این زمان مکتب شیکاگو در شکفته ترین ایام خود بر جوانی رایت تاثیر گذاشت اما او دنبال کارهای این مکتب را نگرفت.

 

همان اول سلیوان با او قراردادی امضا می کند که تو تمام وقت مال منی و رایت بلافاصله مادرش و بر و بچه ها را به شهر می برد.بعد ها سلیوان رایت را به خاطر کار در بیرون از دفترش اخراج میکند.بعدها که سلیوان در اواخر عمرش ورشکست شده بود در خانه رایت زندگی میکرد و رایت هم احترام زیادی برای او قایل بوده.

 

y79vns2lxw4wgzxapioj.jpg

 

خانه ی روبی

 

 

 

 

خانه ی جیکوبز

 

ea8vrqyxyk7nxl35c4.jpg

 

 

فرانک لوید رایت در آخرین مرحله از زندگی حرفه ای خود،از اواخر دهه ی 1930 به بعد،26 خانه ی شخصی ارزان قیمت را که خانه های یوسونیان نامید،طراحی کرد.منشا این نام واضح نیست اما یوسونیا برای رایت،نوعی آرمان شهر محسوب می شد،شهری ایده آل که در آن هر خانواده در یک خانه ی ییلاقی مجزا زندگی می کرده و صاحب یک اتومبیل بودند.این امر ممکن است در واقعیت با ایالات متحده،چندان فرقی نداشته باشد اما یوسونیا کشوری بود که توسط فرانک لوید رایت طراحی شده بود.خانه ی جیکوبز بهتربن خانه ی آرمان شهری رایت و واضح ترین راه حل او برای مشکل خانه های کوچک است.

خانه ی آمریکایی حومه ی شهری،یک جعبه ی دو طبقه و معمولا مدلی از سبک سنتی مستعمراتی یا گونه ی اولیه کیپ کاد(شبه جزیرخ ای در ماساچوست)می باشد و با قرارگیری در مرکز سایت،باغ را تقسیم کرده و قسمت های غیرقابل استفاده را در کناره ها باقی می گذارد.خانه ی جیکوبز خانه ای متفاوت است:به شکل L یک طبقه و قرار گرفته در کنج سایت و پشت کرده به خیابان،تا اینکه بتواند باغچه ی خود را دست نخورده نگهدارد.به همین صورت معماری داخلی نیز مبتکرانه است.ده سال قبل از این تاریخ و پیش از رکود بازار،خانواده ی آقای جیکوبز که روزنامه نگار بود پیشخدمتی را به استخدام خود درآورند.آشپزخانه می توانست از انظار عمومی مخفی شود اما در سال 1938 تبدیل به محل استقرار مهم ترین شخص خانه یعنی بانوی خانواده ،خانم جیکوبز،گردید،در نتیجه این فضا،یک موقعیت مسلط در مرکز ثقل پلان،میان دو بال نشیمن و اتاق خواب به خود گرفت.ناهارخوری که قبلا فضایی تشریفاتی و مرکز توجه زندگی خانوادگی و سرگزمی ها بود ناپدید شد و عملکرد آن تبدیل به نشیمن غیر رسمی و آرامش بخشی گردید.

 

 

f7jhiu70lpxotpb1r2.jpg

 

 

7h2bvgrclmenfvbhupwg.jpg

 

 

44khmn2r4brfw96pxmpv.jpg

 

zg15tzvket8wcp5ruish.jpg

 

 

s53v94dlyu95ib8fww9g.jpg

 

 

رایت به طور غریزی به جای تقسیم کردن فضاها،خواستار یکی کردن آن ها بود،تا اینکه بتوانند آزادانه در داخل یکدیگر جریان داشته و تنها توسط شومینه ای آجری از هم جدا شوند.فرم سه بعدی خانه نیز یک تحول است:استفاده از یک سیستم ساختمانی به جای تطبیق با یک گونه ی استاندارد.اندازه ها توسط یک شبکه ی طراحی به فواصل 0.6 و 1.2 متر در عرض و 0.33 متر در طول کنترل می شود (استفاده از معماری سنتی ژاپنی در این کار واضح است.)سه گونه دیوار در این طرح وجود دارد،دیوارهای آجری ،درهای تمام شیشه ای با قاب های چوبی و پانل های خاصی از ورق های تخته چندلا در دو سمت خود،همراه با نوارهایی از چوب سفت و چوب نرم.سقف ها مسطح بوده و در دو تراز با پنجره های سرتاسری بام در میانشان طراحی شده اند،کف ها نیز به صورت صفحات بتن در جای ساده و بدون زیرزمین ستخته شده اند.گرمایش توسط لوله های آب گرمی که در کف طبقات کشیده شده اند انجام می شود که به نوبه ی خود نوعی ابتکار دیگر محسوب می شود.این طرح یک سیستم ساختمانی صنعتی نیست و رایت هیچ گاه تصور برپایی کارخانه ای برای تولید انبوه خانه های آرمان شهر خود را نداشت.اما این روش زمان طراحی را با تلفیق شبکه ی مدولار مرجع با گروهی از جزئیات ساختمانی استاندارد کاهش داده و یک نعادل اقتصادی میان کارهای چوبی و کارهای بنایی به وجود آورد.

 

 

ykgx7e0l1nyktp4iq2xy.jpg

 

 

ed2xdv7nd4if5dwc8af.jpg

 

oomo24vvskyge1qn6gs5.jpg

 

zijmhsy5sdxlubqpmmul.jpg

 

nkoywgn523bnxr28ouc.jpg

 

خانه های یوسونیا (مدینه ی فاضله ی رایت) تنها تا حدی کوچک و ارزان بودند و نه برای کارگران کارخانه بلکه برای کارفرمایانی از طبقه ی متوسط طراحی شده بودند که ارزش مادی و معنوی داشتن خانه ای را که رایت طراحی کرده می دانستند.با این حال رایت یکی از معدود معماران قرن بیستم بود که در سلیقه ی مردم تاثیر گذاشت.طرح های او معمولا در مجله های زنان و یا مجله های خانه سازی منتشر می شد.

پس از جنگ مشخصات خانه های آرمانی شهر رایت،شامل پلان باز،کمدهای توکار،تراس سقفی و محل پارک ماشین،تبدیل به سمبل عینی فرهنگ حومه ی شهری در آمریکا گردید.

 

 

 

kfui3qn8refcgxucp32h.jpg

 

 

mcaf57o3l0yytr6janx.jpg

 

 

28l6fe61ssuhct51oxp.jpg

 

 

 

 

  • Like 5
ارسال شده در

باب پانزدهم

معمار:لویی کان

معماری:خانه اشریک

 

rg62m1k9572yyt1qi79.jpg

 

لوئي کان در روسيه متولد شد در سال 1905 با خانواده اش به آمريکا مهاجرت مي کند . در بوزار تحصيل مي کند و بين سالهاي 57- 1947 در دانشگاه ييل تدريس مي نمايد . از سال 1950 تا 1951 به روم مي رود و روي معماري روم تحقيق مي کند و از سال 61-1957 شروع به تدريس در دانشگاه پنسيلوانيا مي کند .

 

زمان اجراي اولين ساختمان هاي کان به سال 1925 بر مي گردد ولي تا اواسط دهه 50 با اجراي چند اثر توجه آمريکا و جهان را به خود جلب مي کند . در آثار کان تجريبات معماري مدرن ، الهامات کلاسيسم يونان و معماري قرون وسطي ، معماري اسلامي و حتي آکادميسم قرن 19 اروپا را مي توان ديد . در کل مي توان گفت او در اکثريت کارها تحت تاثير مکتب بوزار بود و از همين روست که در کارهاي او يک نوع نگرشي به تاريخ است و به خاطر همين او را به پست مدرنهاي تاريخ گرا نزديک حس مي کنيم .

تعدادي از کارهاي او در حد پروژه باقي مانده است ، پروژه ها در بالاترين حد و با پيچيدگي تمام طراحي شده اند ولي در زمان اجرا ، فرم ها با انتخاب مصالح مناسب و غالبا طبيعي و سنتي ساده مي شوند . کان برخلاف استادان برجسته پيش از خود نه در پي توضيح است و نه اثبات نوشته ها ، و گفتارش با ابهام همراه است . در کارهاي لوئي کان کاربرد دقيق مصالح و بيان قواعد استفاده از مصالح و تنوع استفاده کردن از مصالح را مشاهده مي کنيم .

لوئي کان گفته است : " لوکوربوزيه معلم من بود ولي اين را خودش نمي دانست - تاثير از کارهاي بتن مسلح و عريان بودن ساختمان سنتي بودن در معماري مانند ساير موارد به اين معنا نيست که گذشته را دوباره تجديد کنيم ، بلکه بايد از آن و با امکانات معاصر استفاده کنيم . " " سبک متعلق به زمان است در حالي که جوهر هنرمند ابدي است . ارزش ساختمان با کيفيت فضاهاي معماري سنجيده مي شود . تکنولوژي شگفت انگيز است و بايد بخشي انگيزه حرفه اي ما شود . اگر يک ساختمان بتواند به تکنولوژي الهام دهد بي اندازه با ارزش است ."

 

 

h6ub11x9j0n9ep29b0g.jpg

 

موسسه زیست‌شناسی سالک در سن دیگو، اثر لوئی کان.

 

 

 

لوئي کان نخستين معمار آمريکائي روسي تبار بود که بعد از جنگ جهاني دوم برخاست و نيز اولين کسي بود که از مکتب جهاني " فرم تابع عملکرد است بريد . معماري کان نه در قالب معماري ارگانيک فرانک لويد رايت جاي مي گيرد و نه در قالب ديگر نهضت هاي معماري مدرن ، مثل مکتب معماري مدرن لوکوربوزيه و ميس وندروهه .

کان اغلب از فرم ، نور و روشنايي و از فضاهايي که عملکردي بر آنان متربت است ، صحبت مي داشت . درباره نور و روشنايي نوشته است که : نور و روشنايي حضور همه چيز را باعث مي شود . اجسام از نور مشتق مي شوند يا به تعبيري ديگر ، هر گاه نور مصرف شود جسم حاصل مي آيد . اجسام همان ها هستند که به سبب وجودشان سايه به وجود مي آيد و سايه به نور تعلق دارد . نور به جانب جسم حرکت مي کند و جسم به جانب نور و اين امر محيط و جو سازندگي را به وجود مي آورد . فرم به خود مي گويد : من بايد چيزي بسازم. در آثار کان همواره احساسي يکسان از قدمت و تازگي موجود بود . پژوهشي شديد براي تمام چيزهايي که در قبال سازندگي آدمي در تمام زمانها ، زيبا و منطقي بود . اين انديشه که گذشته در حال حاضر ريشه دارد و پژوهش بدنبال حقيقت در جمله اي موجز و شاعرانه از خود کان مستتر است " آينده همان امروز است . "

 

 

 

 

خانه ی اشریک

 

sjx0l6k7dk3zqxcu.jpg

لویی کان 20 خانه ی شخصی طراحی نمود اما تنها 9 عدد از آن ها ساخته شد،این تعداد پایین می تواند ناشی از تمایل وی بر بیشتر شدن هزینه ی کل ساخت نسبت به بودجه ی در نظر گرفته شده و یا رفتار او با کارفرمایانش (چنانکه گویا شاگردانش هستند)باشد و یقینا ناشی از بی میلی او در طراحی ساختمان های کوچک و بدون سود نبود.کان عاشق طراحی خانه های شخصی بود و از آن ها به عنوان بستری آزمایشی برای نمایش ایده های خود استفاده می کرد.

خانه ی اشریک که برای یک زن تنها،در حومه ی شمالی فیلادلفیا در سال 1961 ساخته شدجنبه هایی از سبک کامل شده ی کان را نشان می دهد.اولین نکته اینکه خانه حالتی نمادین داشته و وضعیت قائم آن نا حدی رسمی به نظر می رسد چنانکه گویا یک ساختمان عمومی می باشد تا یک خانه ی محلی.نکته ی دوم اینکه خانه کنترل شده و مکعبی شکل بوده و هیچ گسترشی از عناصر آن و یا بیرون آمدگی به جز دو دودکش متقارن در دو انتهای ساختمان مشهود نیست.فضاهای کان برخلاف فضاهای سیال پلان های باز مدرنیست،ذاتا ایستا هستند.اتاق های او فضاهایی ساکت و ساکن هستند که منتظر قرار گرفتن فعالیت های انسانی،مثلا یک گروه از دوستان در حال صحبت،یک وعده ی غذای مشترک و با یک فضای مطالعه ی شخصی می باشند و سومین نکته اینکه خانه به طور طبیعی روشن شده و تهویه می شود و به جای استفاده از وسایل مکانیکی و تجهیزات کنترل کیفیت فضاهای داخل،از فرم خود ساختمان استفاده می کند.خلاصه اینکه معماری کان،همان معماری در اصلاح سکوت و نور می باشد.

 

330dx4zfdkbsva3jgsc.jpg

 

322jok0swrhnr3n8hod.jpg

 

zrd5febzr4yembrd7tu.jpg

 

p5u7bjfzjrrrb232t6l.jpg

 

9vuvq83o42bqchhczdg8.jpg

 

cxexhg8sq6fvwkmnlmvi.jpg

 

0vks2732rf1d72zx3zy.jpg

 

a89xbyg0v0o11wvnvl1e.jpg

 

vl3fi0ieu2a6fm6j6g7.jpg

 

 

 

اگرچه کل خانه یک مکعب بزرگ می باشد،با نگاهی نزدیک تر به پلان،مشخص می شودکه طرح به چهار نوار تقسیم شده است که هر یک مستطیلی کنترل شده و با تناسبات خاص است،یک نوار خدماتی با آشپزخانه و رختشوی خانه در طبقه همکف و حمام ها در بالای آن،یک نوار ناهارخوری با اتاق خواب بالای آن،یک نوار سیرکولاسیون شامل پلکان و ورودی های مقابل و پشتی همراه با بالکن های پس نشسته در بالا و نهایتا یک نوار نشیمن در ارتفاع دو طبقه و در تناسبات دو مکعب،این نوارها در ایده ی اولیه ی طراحی می توانند به طرق مختلفی با یکدیگر ترکیب شوند،به عنوان مثال فضاهای نشیمن،ناهارخوری و اتاق خواب ها می توانند به عنوان بدنه ی اصلی خانه در نظر گرفته شوند که نوار خدماتی به یک طرف آن اضافه شده است.در تفکر دیگری می توان سه نوار دو طبقه ی ساختمان را به عنوان یک بال خدماتی برای یک فضای نشیمن اصلی در نظر گرفت.ابهام نماهای بیرونی ساختمان که گاهی نشانگر تقسیماتی میان این چهار نوار بوده و گاهی نمی باشد،به این گونه برداشت های متفائت از کلیت طرح قوت می بخشد.

 

 

x2i5lyu1tiz3q1jqvri.jpg

 

ep46hoh41q6crs37k35j.jpg

 

h2qbva3cac5gznhr0s.jpg

 

icz9rngz8khklorzgp5.jpg

 

brkpn1xy72ymo6mwoh3m.jpg

 

 

پنجره ها به طور متداول دارای سه عملکرد شامل ورود نور،تسهیل تهویه و تامین دید به بیرون می باشند.کان گونه های مختلفی از گشودگی ها را به عنوان کاربری های مختلفی طراحی کرد،مثلا در نشیمن خانه ی اشریک،تهویه از طریق دیافراگم های چوبی در دو سمت پنجره های شیشه ای تمام ارتفاع رو به جنوب و شرق تامین می شود.میزان نور این پنجره ها نه تنها توسط این دیافراگم ها،بلکه با تعادل نور پنجره های دیگر این اتاق،خصوصا پنجره ی مرتفعی در بالای قفسه کتاب در دیوار مقابل کنترل می شود.یک نوار باریک عمودی از پنجره ها در میان قفسه های کتاب،یک دید به بیرون از میان ورودی خانه ایجاد می کند.در دیوار کناری،پنجره ای بر روی شومینه قرار دراد که اکثر دید آن توسط یک دودکش بیرونی مستقل کور شده است.این دودکش شاید یک مدل مینیاتوری از دودکش آجری نمادین ساختمان تحقیقات پزشکی ریچارد باشد که در زمان طراحی این خانه،در فیلادلفیا در حال ساخت بود.

 

 

iu83let4kdn8ntao8q9q.jpg

 

 

gz4nuuqe744l071sb72.jpg

 

 

ega2t1ds6kbmv0bnp7bs.jpg

 

 

dydnnxs7xrqlzrvi1m7d.jpg

 

fj5zdgbnh6m72eqe24w9.jpg

 

gcf6k9n5hr6ba1gtzrc.jpg

 

ognq5ubp9ze8f313sr3.jpg

 

 

hznghxqupb6nve54c16u.jpg

 

 

pmro8t9e9mow18tbfspz.jpg

 

am66t7jh0nyn93cbwv.png

 

 

ltawhixo8r5puahm4iu.jpg

 

 

ezicm6afrf81q6o0w50v.jpg

 

lxy663ceiexrro4pyq1o.jpg

 

lkfgvkgkh1yeb3h7mn6.png

 

5yxnnx07jtbc8a1qgj4o.jpg

 

 

fcd0b74i205emgle7dc.jpg

 

 

o8c9r6o1a991h3v6wfn.jpg

 

 

معروفترين کار کان ساختمان آزمايشگاه - پژوهشگاه پزشکي ريچاردز است . تحت تاثير کارهاي رايت ، ميس وندروهه و لوکوربوزيه . تجزيه حجمهاي رايت ، سادگي ميس وندروهه ، تجزيه حجمهاي ساختمان به فرمهاي ساده اصلي هندسي مسطحه و به کار گيري مصالح به صورت عريان ، استفاده از بتن مسلح لوکوربوزيه ، در اصل ساختمان تا حدودي اکلکتيک است . تاثير بوزار استفاده از تکنولوژي زمان ، بتن مسلح است . مجلس ملي بنگلادش در داکا 1962 موسسه اداري در احمد آباد - هند - 1963 موزه ملي کيمبل 72-1966 بيمارستان مرکز ايوب در داکا 1963 گالري هنري دانشگاه يل 54-1950 بناي يادبود شش ميليون يهودي 69-1967 ساختمان آزمايشگاههاي پزشکي ديچاردز، پنسيلوانيا 61-1957 توسعه شهر سازي محله عباس آباد تهران با مشارکت کنزوتانگه ، پروژه Salk Institute Laboratory Building - California U.S.A(1959-65) Yale University Art Gallery ( 1951- 53) Kimbell Art Museum U.S.A ( 1966-72) Center For British Art Student Yale University ( 1969-74

لوئي كان يك ماه قبل از مرگش در تهران بود تا به همراه كنزو تانگه بر روي يك پروژه عظيم بينديشند(توسعه شهرسازي محله عباس آباد تهران).او به ايران آمده بود كه محيط را حس كند و احتياجات را قبل از آنكه دست به طرحي بزند،درك كند.

لوئي كان در ميان صحبتهايش گفته بود كه دلش مي خواهد ادعا كند كه در رگهايش مقداري خون ايراني جريان دارد، خوني كه از طرف نسل مادرش كه همجوار ايران در روسيه زندگي كرده است به او رسيده است.

لوئي كان نه در قالب معماري ارگانيك رايت جاي مي گيرد و نه در قالب معماري مدرن لوكوربوزيه و ميس، بلكه وي در پي آن بود كه معماري را، به راهي اساسي، براي خود دوباره تعريف كند.وي شخصيتي طوفاني و متكبر نداشت، يا به بياني ديگر بتهوون عالم معماري نبود و با سادگي فروتنانه اي سخن مي گفت و مي زيست...

 

 

 

 

 

 

 

 

 

 

  • Like 7
ارسال شده در

باب شانزدهم

معمار:اتور فجیولی

معماری:ویلا جیراسول

 

zsi0nra8jx6axvwj41j.jpg

 

اتور فجیولی ، 1884 سپتامبر 3 -- 1961 مارس 19) یک معمار ایتالیایی و طراح معروف که او را به واسطه ی آثارش در ورونا و همچنین طرحش برای جشنواره موسیقی اپرا می شناختند.

او در سال 1908 در پلی تکنیک میلان از رشته معماری فارغ التحصیل شد . در سال 1911 او به ورونا بازگشت و شروع به کار ونظارت بر آثارش کرد. در ورونا، شروع به ساخت بسیاری از ویلاهای زیبا کرد.تمایل به سبک نو در آثار او دیده می شود حتی یک نو قرون وسطی و نو.

 

s3d68s1p3fyhvpz444y3.jpg

 

پل پیروزی-ورونا

 

 

 

او در ورونا، در سال 1925 برنده مسابقه ملی برای ساخت پل پیروزی شد.

در سال های بعد، تا زمان مرگ او در سال 1961، مسئول پروژه های بسیاری را در ورونا بود.

 

 

 

 

 

 

 

ویلا جیراسول

 

upp89l9lf4nlvgo6y1f7.jpg

این ساختمان به دور خود می گردد!

جیراسول در زبان ایتالیایی به معنای گل آفتابگردان می باشد و ویلا جیراسول مانند یک گل آفتابگردان،روی خود را به سمت خورشید کرده و آن را در آسمان تعقیب می کند.صاحب و مخترع این ویلا آنجلو اینورنیزی یک مهندس ساختمان و مهندس دریانوردی بود.او که با کار در بندر جنوا ثروتی اندوخته بود،تصمیم به ساخت یک خانه ی ییلاقی در نزدیکی محل تولدش در شمال ورونا گرفت.

دره ی مارسلیس در آن زمان منطقه ی بکری از تاکستان ها،بیشه های زیتون و جنگل های بلوط و سرو بود.ایده ی رومانتیک خانه ی آفتابگردان به خوبی با محیط اطراف آن منطبق است،اگرچه اینورنیزی و همکارانش برای واقعیت بخشیدن به این تصور،مجبور به استفاده از تکنولوژی دنیایی دیگر بودند،دنیای حمل و نقل مکانیزه و مهندسی صنعتی،دنیایی که دو دهه ی قبل توسط فوتوریست ها (پیشروان جنبش هنری ایتالیا در سال 1909 با رد سنت گرایی و تکیه بر پویایی تکنولوژی مدرن و تحرک)تعریف شده بود.ویلا جیراسول در حقیقت بیشتر شبیه یک جرثقیل در حال حرکت یا یک پل گردان می باشد تا یک گل آفتابگردان.

 

 

l1txvudpfuo00l4c9bn.jpg

 

mzttqas9a76gbls3ucg.jpg

 

hsnx5yhugu01akv6ch.jpg

ابزارآلات چرخش ساختمان

 

c1t0mj5haujkd32odcdw.jpg

 

lhswaiv326fwscsiswoj.jpg

 

 

84d3mo4jyhq57paz120.jpg

 

zncgz3q4sudm966pknzl.jpg

 

ibxixsa8dnfp8js373vf.jpg

 

ky1i9i3duci9zrosvpsq.jpg

 

ioto8efvcybf6hojlj.jpg

 

 

ویلا به دو قسمت تقسیم شده است:قسمت پایینی،یک استوانه ی سه طبقه است که در دل دامنه ی تپه اجرا شده است.این خانه در نوع خود ،ساختمانی بزرگ با اتاق های متعدد چند عملکردی است و دارای کوشک بزرگی در بالای خود با دید به سمت دره می باشد.ساختمان دارای سازه ی بتن مسلح با اندودکاری بوده و به طور مبهمی با سبک کلاسیک نووسنتو تزیین شده است.اگرچه هدف اصلی از طرح این کوشک،تامین ایستایی کل ساختمان است،این قسمت دارای استعاراتی بوده و به صورت یک لایه ی کیک ،روی کیک کامل زیرین قرار گرفته است.یک سکوی ربع دایره بر روی خانه ی دو طبقه L شکلی ایستاده و کل قسمت بالایی بر روی پانزده واگن که بر روی ریل های دایره ای حرکت می کنند قرار گرفته است.دو عدد از واگن ها و ریل بیرونی،دارای موتورهای الکتریکی می باشند که قدرت یک دور چرخش ساختمان در زمان 9 ساعت را دارند.غیر عادی ترین قسمت این مکانیسم،محوری است که کل ساختمان به دور آن دوران می یابد،این محور متصل به لایه ی کیک بالایی و نه زیرین می باشد و به صورت یک استوانه که دربرگیرنده ی پله گردی حفره دار و یک آسانسور می باشد طراحی شده است.در پایین ترین قسمت ساختمان و در حفره ای تو رفته در زیرزمین،یک تکیه گاه بزرگ مرکزی چرخان تعبیه شده است.

 

z8knsqnq1vaw9xvzbtf.jpg

 

fb4ey79n1t1dls9wxdx.jpg

 

k8fqf6qpfcg0fel4o2s.jpg

 

3jpc4uz4ar59d5n33p4s.jpg

 

ldbvelctgaa8ag9pc5l.jpg

 

3kl59mb4g7ysbjze0mpu.jpg

ساختمان بعد از 9 ساعت چرخش خود را کامل می کند

 

f7tphcryegsoiy829x5q.jpg

 

ovh0wubw4zb6itv1hl.jpg

 

by4e7ewqfvpegmwlc8x.jpg

 

utlnbycj5shsuqmuu5a.jpg

 

 

lubfy2nkq4qvm129878f.jpeg

 

kdj7prgflnt4vhe6i5rf.jpg

 

jegpwtq6newxo7y0jdj.jpg

 

z3qccx0on4c7uw8rpqy.jpg

 

 

سازه ی خانه و محور چرخنده،یک خرپای ویریندل خارق العاده ی ساخته شده از بتنن مسلح به جای فولاد است.مفصل گودالی در قسمت بالا ،از سقف خانه بیرون زده و توسط فانوسی که دقیقا شبیه عدسی یک فانوس دریایی است پوشیده شده است.

از نظر معماری قسمت دوار از قسمت ثابت کاملا مجزا می باشد،یک ساختمان مدرن غیر قابل انعطاف که با پانل های آلومینیومی پوشیده شده و هیچ دیتیل کلاسیکی در آن دیده نمی شود.بالکن ها از گوشه ی ساختمان به بیرون کنسول شده اند،سایبان هایی شبیه تیرهای دروازه،فریم تراس های سقفی آن را تشکیل می دهند و دیافراگم های الکتریکی،نور پنجره های آن را کنترل می کنند.

 

 

k59bgr6ixn0xmx2titr.jpg

 

x212vno7uxouksnwrfyq.jpg

 

g2lav60a5hsyjem7n4h.jpg

 

kjjhnq7uvyhhawj90j5p.jpg

 

r052sl7id4msif5kraue.jpg

 

jqruswcv23zxqki5eneo.jpg

 

lmlzihit1r7977un3pa.jpg

 

vktsxbhkb4v1lvn1rkj.jpg

 

0i0t2t1fn6alj7ko5dom.jpg

 

yvrvr0wsirlgu3p3eae5.jpg

 

 

 

  • Like 4
ارسال شده در

باب هفدهم

معمار:شیگرو بن

معماری:خانه مبلمان

 

oq4ylwsdy76cngr8lzss.jpg

 

شیگرو بن غالبا با ساختمان های لایه ای خود شناخته می شود،مانند پاویلون ژاپن در نمایشگاه بین المللی هانوفر در سال 2000 که سازه ی اصلی آن یک پوسته ی مشبک انحنادار از لوله های نازک بود.او خانه های دیگر لایه ای،یک گالری هنری لایه ای و حتی یک کلیسای لایه ای را طراحی کرده است.در سال 1994 کمیسیون عالی پناهندگان در سازمان ملل متحد،کار طراحی پناهگاه هایی را پس از جنگ داخلی کشور روآندا به او واگذار کرد و در سال 1995 نیز خانه های اقامتی لایه ای او،قربانیان زلزله ی کوبه در ژاپن را در خود جای داد.

 

k6kdeix8ie0z2k5yng.jpg

 

پاویلون ژاپن در نمایشگاه بین المللی هانوفر در سال 2000

 

 

61zic9gqblc2lr1iz72e.jpg

 

طراحی پناهگاه هایی را پس از جنگ داخلی کشور روآندا در سال 1994

 

0x0ub0a46zfmqgyqhj5.jpg

 

نمونه ای از خانه های طراحی شده توسط او در ژاپنIn the Curtain Wall House, Shigeru Ban

 

 

 

 

خانه ی مبلمان

 

dfxsu5kyfhi61ytisvz9.jpg

 

ایده ی خانه ی مبلمان از ساختمان های لایه ای او نشات می گیرد.بن در سال 1991 پاویلیون مستقل کوچکی را به عنوان کتابخانه ی یک شاعر طراحی کرد که قاب سازه ای آن شبکه ای لوله های نازکی بود که با کابل های فولادی مهار شده بودند،قفسه های کتاب مستقل از قاب سازه ای بودند اما عایق بندی و هوابندی شده بودند تا دیوارهای خارجی ساختمان را شکل دهند.بن تشخیص داد که عناصر عمودی این قاب زائد هستند و سقف می تواند با تغییرات اندکی به وسیله این قفسه های کتاب نگهداشته شود.

 

rfk0hwzooy903q3sieg.jpg

 

jmmn97tlcdr37nbx9r2.jpg

 

mfky82l9qixcwj10dhdw.jpg

 

71hvymu7edwecclhe2l4.png

 

p5o56gml8i28ieav2bm2.jpg

 

 

خانه ی مبلمان اولیه،یک ترکیب بندی مینی مالیست با پلانی شبیه نقاشی های موندریان در یک قاب مربعی شکل است.تمامی پیش نیازهای فضایی اولیه برای یک خانه ی ژاپنی یک خوابه ی لوکس فراهم بود که همراه با یک اتاق تاتامی(حصیر سنتی ژاپنی) وتراسی با دید به کوه فوجی در دوردست،طراحی شده و میان یک سقف مسطح و یک کف مسطح،فشرده شده و با واحدهای انباری تقسیم بندی شده بود.

ایده ی استفاده از واحدهای انباری برای تقسیم فضا،فکری جدید نیست.اینجا هیچ دیواری با مصالح بنایی به طور عادی دیده نمی شود و تمامی جداکننده ها به صورت گنجه یا قفسه های کتاب هستند.درهای کشویی شیشه ای سرتاسری از کف تا سقف،حصار بیرونی ساختمان را تعریف می کنند،میان نشیمن و تراس،درها می توانند به صورت کشویی باز شوند تا به طور کامل محو گردند.قاب فلزی لاغری که در گوشه ای از تراس،سقف را نگه داشته است تنها عنصر سازه ای است که جزیی از مبلمان نمی باشد،اگرچه حتی این عنصر نیز دارای قفسه ای متصل به خود می باشد.واحدهای انباری از مصالح صفحه ای با روش آشنای بسته های مسطح استاندارد شده و به صورت پیش ساخته می باشند و تمامی آن ها دارای 1400 میلی متر ارتفاع،900 میلی متر عرض،در قفسه های کتاب دارای عمق 450 میلی متر و در گنجه ها دارای عمق 750 میلی متر هستند.همگی آن ها بر روی کفی از بتن مسطح قرار دارند که با تخته چند لا پوشیده شده و سقفی از تخته ها و تیرچه های چوبی را نگه داشته اند.اما همه چیز آن طور که به نظر می رسد نمی باشد، واحدهای داخلی برای داشتن تداوم سازه ای به یکدیگر پیچ شده اند،اما با قاب های چوبی 100 در 50 میلی متر نیز از پشت ثابت شده اند.در دیوارهای خارجی این قاب با عایق حرارتی در داخل پر شده و با صفحاتی از تخته چندلا پوشیده شده که پوشش نهایی دیوارها به آن ها متصل هستند.تخته چند لا خاصیت مهار بندی عرضی به سازه داده و برای مقاومت در برابر زلزله ضروری است،بنابراین این سازه تفاوت چندانی با قاب های چوبی با مقطع 2 رد 4 اینچ که در بسیاری از خانه های معمولی ژاپنی استفاده می شود،ندارد،بزرگترین مزیت کانسپت مبلمان این است که هر واحدی می تواند تنها توسط یک نفر در سایت جا به جا شود.این نوع طراحی،بیشتر یک روش جدید تفکر است تا یک تکنولوژی جدید.مرزهای میان سازه و مبلمان چه به صورت موقت و چه ثابت مجددا طراحی شده اند.

 

 

21l4075ykzjm0j4y63tz.jpg

 

pj9ticrh7jek4nl0ipgq.jpg

 

m6pkh9mcqx5oz01ij4.jpg

 

1lkznj8ym4dmaeykeg5.jpg

 

از آن زمان به بعد خانه های مبلمان متعدد دیگری نیز طراحی شده اند که یکی از آن ها مدلی دو طبقه از این گونه ساختمان هاست که قطعات سودمند جدیدی را مانند گنجه ی تهویه ی هوا و پلکانی که به عنوان انبار نیز کاربرد دارد به این سیستم اضافه می کند.

 

 

 

o82lrln3ntkupfxpw24i.jpeg

صندلی طراحی شده توسط شیگرو بن

 

v1u72lzr590o7qqjm6.jpg

 

1zn2p5z5ae1aw0icnmgp.jpg

 

dh99nati0zo60mo4wnow.jpg

 

 

 

برای مشاهده این محتوا لطفاً ثبت نام کنید یا وارد شوید.

 

 

  • Like 8
ارسال شده در

باب هجدهم

معمار: لودویک میس ون در رو

معماری:خانه تانگدات

 

ktb6f4nb7784hj4ia1y3.jpg

 

در پانزده سالگی در نزد معماران رنانیا به عنوان شاگرد مشغول به کار شد که خود آن دوران را مدرسه طراحی معماری می نامید و با تزیینات و تناسبات معماری کلاسیک آشنا شد. از سال 1910 در دفتر پیتر بهرنس که از معماران شهیر آلمان میباشد به مدت 3 سال مشغول به کار شد ، در این زمان دو اثر بیش از همه میس را تحت تاثیر قرارداد ، کارخانه توربین AEG که به شیوه نوین با فولاد طراحی شده و سفارت آلمان در پترزبورگ که بر اساس اصول کلاسیک طراحی شد.

میس سال 1913 دفتر کار شخصی خود را گشود و تا قبل از آغاز جنگ اول جهانی به سال 1914 چندین ویلا طراحی نمود که همگی از اصول معماری شینکل ( معمار آلمانی طرفدار اصول کلاسیک ) پیروی میکردند ، در زمان جنگ اول میس به عنوان سرباز اغلب در بالکان بود و پس از جنگ به طور مجدد در زمینه معماری فعالیت خود را ادامه داد . پایه اولیه آسمانخراش های امروزی به سال 1919 با طرح میس در مورد یک برج بیست طبقه فولادی که در جداره های خارجی آن از کف تا سف از شیشه پوشیده شده بود شکل گرفت ، وی در سال 1920 آسمانخراش دیگری را در سی طبقه طراحی نمود که تمام شیشه ای بوده و با ایجاد حیاط هایی شیشه ای در طبقات و بازی با نور بوسیله شیشه ، دارای لطافت خاصی گردید.طراحی این دو برج باعث گردید میس در زمره پایه گذاران معماری مدرن قرار گیرد.فولاد ، بتن و شیشه مصالح مود علاقه وی بود که واژه صداقت را در مورد آنها به کار می برد ، میس معتقد بود فولاد و بتن نماد قدرت بوده و شیشه پوسته ای درخشنده برای آنها است.در سال 1920 در انجمن Novomber Group که دارای گرایش های چپ بودند عضو شد و تا حدی نیز تحت تاثیر عقاید سیاسی آنان قرار گرفت. میس مدیر بخش معماری این انجمن گردید و آثار وی در زمینه آسمانخراش ها در نمایشگاه این گروه به معرض نمایش گذاشته شد. طرح میس در همین زمان برای ساختمان اداری با بتن و شیشه در هشت طبقه که دارای فرم مکعب مستطیل بوده و در نمای آن نوارهای افقی با بتن و شیشه طراحی شده که ساختمان را کاملا افقی نمایان میکرد ، این اثر بعد ها الگوی بسیاری از ساختمان ها گردید و حتی اریک مندلسون و برخی دیگر از معماران نامی از آن تاثیر گرفتند.

 

 

خانه ی تانگدات

 

kgfomlle3ryhjy75achy.jpg

منتقد معماری خانه ی تانگدات، به نام راجر گینزبرگر در سال 1931 چنین نوشته است، در زندگی معانی ژرف تری از نگاه کردن به دیوارهای رنگارنگ و جلای چوب های گران قیمت وجود دارد.او یکی از منتقین متعددی بود که به طرح هایی که بیشتر یک نمایشگاه مبلمان بودند تا یک خانه علاقه ای نداشت،چرا که فضای نشیمن منفرد بزرگ آن ها هیچ گونه انزوا وخلوتی نداشت و دیواری برای آویختن قاب عکس ها در دسترس نبود،اما گرت تاگندات و همسرش فریتز با این امر مخالف بودند،گرت یک روشنفکر و دنباله رو مارتین هایدگر فیلسوف بود و سادگی مطلق خانه را مایه ی وقار آن می دانست،به گفته ی او من همیشه یک خانه ی مدرن همراه با فضاهای وسیع و فرم های ساده و واضح خواسته ام.

 

i0x1w7p2ogtjtvs18wcz.jpg

 

mrl3dbxiu5m6toj8uka2.jpg

 

y7wvg79b5oaj7wvlrh48.jpeg

 

pax7z7pjcol15c7jz9.jpg

 

k4mwi4dwn6zhmp3zw7x.jpg

 

 

خانه در پلان و مقطع کمی پیچیده است،در ارتفاعی سه طبقه،در یک شیب تند،یک سایت رو به جنوب و با ورودی اصلی در بالاترین طبقه ،اما قلب خانه نشیمن ،اصلی آن ، در واقع در طبقه میانی است و هر عنصر دیگری در آن زائد می نماید.در این اتاق هیچ تغییراتی در ارتفاع و تراز ها وجود ندارد،تنها گستره ای ساده از لینولیوم (نوعی مشمع کف اتاق) سفید در تطابق با یقف مسطح گچ کاری شده ای به چشم می خورد.این فضا در قسمتهای جنوبی و شرقی توسط دیوار های شیشه ای مستقیم و یا با دید داخل این شیشه ها تعریف شده است (اولی یک دید وسیع بر فراز باغ قصر اسپیلبرگ واقع در تپه ی مقابل و دومی تصویری نزدیک تر از گیاهان خانگی در یک باغ زمستانی باریک)بنابراین اتاق نه با تصاویری از طبیعت ،بلکه با خود طبیعت زینت یافته است.خانه در قسمت های شمالی و غربی،با عقب نشینی ها و شاه نشین هایی که کاربری های مختلفی را تعریف می کنند،پیچیده تر شده است،یک عرصه ی ورودی،یک اتاق مطالعه،یک کتابخانه و فضایی برای پیانوی بزرگ.در میان اتاق دو شی غیر معمول،فضا را با دنبال کردن هدفی خاص تقسیم می کنند،یک پارتیشن چوبی نیم دایره ای که به دور میز ناهارخوری کشیده شده است و پرده هایی سخت از جنس سنگ مرمر که فضای باقیمانده را به طور خشنی به دو قسمت تقسیم می کنند.این ها همان دیوارهای رنگارنگ و جلای چوب های گرانبها بودند که گینزبرگر را آنچنان آشفته می ساختند.

 

gexr7f3h70vfswajxjy.jpg

 

9ffhwxp4fzur7wbob56f.jpg

 

dhzx6oi4usmnkt6aw7z.jpg

 

h4sfzdic27rouza4gb94.jpg

 

dt16t351c1kblf0aatx.jpg

 

ycdlcy10lql66ixpw79s.jpg

 

eqn0a8cv59pymof8h5sy.jpg

 

a0za1hpyl88x5qbq8i.jpg

 

9s4kqo447x9rvxzczmo.jpg

 

ojxsiz5l5eo6wlwvhme.jpg

 

 

سطوح منقوش این عناصر،احتمالا مدل هایی قدیمی از طبیعت زنده می باشند که از طریق پنجره ها قابل رویت است.همتایان این عناصر،در پاویلیون معروف بارسلونا که تقریبا در همان زمان طراحی شد،ستون های صلیبی شکل پوشیده شده با صفحات کرومی هستند که فضا را با یک شبکه ی مربعی تقسیم می کنند. این یک ساختمان با قاب فولادی می باشد اگرچه این قاب غالبا در پس گچ کاری و اندود ها پنهان شده است.

دو قسمت از دیوارهای شیشه ای رو به جنوب،هر یک به عرض 5 متر، می توانند توسط موتورهای الکتریکی در کف زمین فرو روند.بازشوها دقیقا به موازات صفحات چوبی و رنگارنگ قرار دارند،بنابراین آنچه در پلان شبیه فضایی انعطاف پذیر است در واقعیت به طور هوشیارانه ای به دو ناحیه ی مختلف توسط ستون ها،صفحات،مبلمان و قاب های پنجره ای تقسیم شده است که به طور متقارنی آرایش یافته اند.دری در انتهای غربی دیوار جنوبی به تراس سنگ فرش شده ای باز می شود که از آن بازوی پلکان عریضی به سمت باغ پایین می رود.

 

dt9g2vv7g0vjnp5ll396.jpg

 

p9yuvwt08jt9bfpvnbp.gif

 

8bqrzwzem3di4la6r5or.jpg

 

oddlfacu6ggtwyscwceg.jpg

 

0gl04k9k0ygl8zcsfw4b.jpg

 

qhsapmqinbfoo6of9l5s.jpg

 

 

zmvg5iq6i2hkb8hv0jq.jpg

 

m3lcaltft7nwp5yl6ces.jpg

 

005txckohzecsbc989f.jpg

 

tu1vf658e70rp0ukvhk.jpg

 

qw8cegvbiuwxatqlxv.jpg

 

k4i66ie1vezxxxiw2grj.jpg

 

 

 

ev5qxapo89jeq13ms2p.jpg

 

xh3lktrm251cs6acw8i1.jpg

 

 

 

هنگامی که خانه ساخته شد،یک درخت بید مجنون بزرگ در نزدیکی این پلکان و دقیقا مقابل فضای ناهارخوری قرار داشت،اکنون این درخت وجود ندارد اما در پلان های اصلی نشان داده شده و بدون شک قسمتی از طراحی بوده است،یعنی محور طبیعی جاندار کل ترکیب بندی.

خم اکنون از خانه ی تانگدات به عنوان یک بنای یادبود تاریخی و موزه حفاظت می شود.

 

 

x1q2j9dl6feyxa2sbga.jpg

 

 

vs2ibcwzqer8gz2b0uab.jpg

 

i4anzvxqlvx1260kdao.jpg

  • Like 9

×
×
  • اضافه کردن...