رفتن به مطلب

طراحی مجموعه ورزشی مادرید با متریال بتن سفید


ارسال های توصیه شده

ارسال شده در

Madrid%20sport%20complex%20(1).jpg

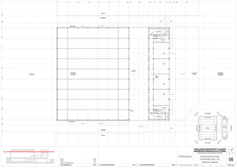
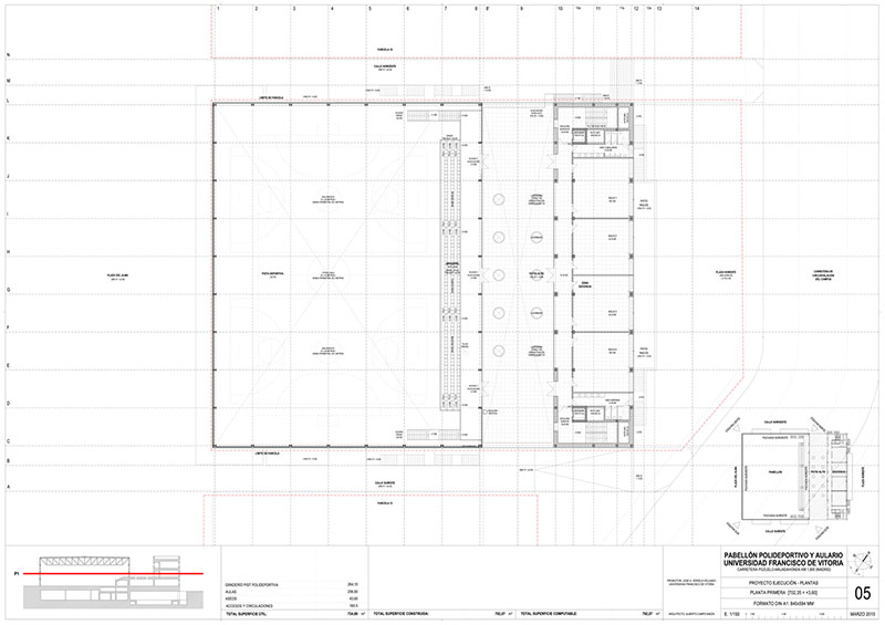
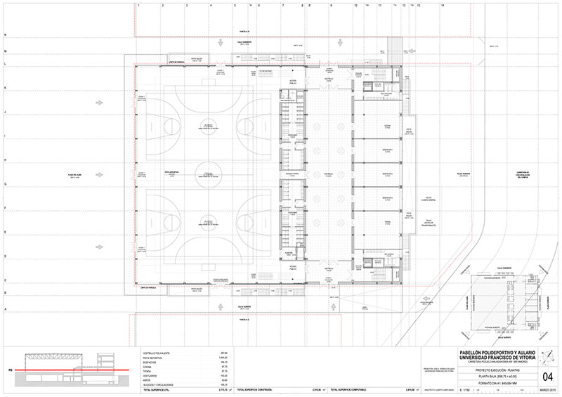
طراحی و ساخت مجموعه های ورزشی همیشه پزهزینه بوده اند. عموماً شیوه ساخت و سازه مجموعه های ورزشی به نحوی است که باید اقدامات ضروری در خصوص ترکیب بندی و سیرکلاسیون یک سالن چند منظوره صورت گیرد.این موارد مشکل ساز به دلیل تعبیه ضوابط و استانداردهای مجموعه های ورزشی و ریزفضاهای آن می باشد. آلبرتو کامپو بیزا یک مجموعه ورزشی چند منظوره در محوطه دانشگاه فرانسیسکو مادرید طراحی کرده که توسط متریال بتن سفید اجرا شده است. کانسپت مجموعه به نحوی است که حس سبک بودن و سادگی را به کاربران القا می کند. تعبیه نورگیرهای بزرگ و فضاهای باز در ساده ترین فرم به کاهش هزینه ها کمک کردند. چون فرم های ساده و سیرکولاسیون صحیح در طراحی داخلی از ایجاد سازه های پیچیده و اضافی کاسته است.

Madrid%20sport%20complex%20(2).jpg

مجموعه فوق شامل یک سالن چند منظوره به همراه استخر و کلاس های آموزشی است. تلفیق چند سالن کنار هم به ساختمان اجازه می دهد تا با دانشگاه به خوبی منطبق شود. با وجود سادگی کاربری ها و فرم مجموعه، طراحی نما و محوطه آن چشم همه را خیره می کند. سبک مینیمال مهم ترین نقش را در داخل و خارج ساختمان ایفا می کند. نمای شمالی دانشگاه عمدتاً از شیشه های گسترده و شفاف تشکیل شده که نور را آزاده به درون ساختمان وارد می کند، در صورتی که نمای جنوبی به کل از بتن سفید تشکیل شده. متریال ها به صورت پیوسته کنار هم قرار گرفتند و مجموعه ای از ساختارهای ظریف و سخت را ارائه کرده اند.

Madrid%20sport%20complex%20(3).jpg

Madrid%20sport%20complex%20(4).jpg

Madrid%20sport%20complex%20(5).jpg

Madrid%20sport%20complex%20(6).jpg

Madrid%20sport%20complex%20(7).jpg

Madrid%20sport%20complex%20(8).jpg

Madrid%20sport%20complex%20(9).jpg

Madrid%20sport%20complex%20(10).jpg

Madrid%20sport%20complex%20(11).jpg

Madrid%20sport%20complex%20(12).jpg

Madrid%20sport%20complex%20(13).jpg

Madrid%20sport%20complex%20(14).jpg

Madrid%20sport%20complex%20(15).jpgMadrid%20sport%20complex%20(16).jpg

Madrid%20sport%20complex%20(17).jpg

Madrid%20sport%20complex%20(18).jpg

×
×
  • اضافه کردن...